24小时咨询电话
027-82411111
当前位置 : 首页 > 户型解析 > 顶琇国际城 129㎡四居室美式温馨住宅户型解析
顶琇国际城 129㎡四居室美式温馨住宅户型解析 (6686官方版app)
发布时间 : 2022-03-05 18:03
查看数 : (6686官方版app)

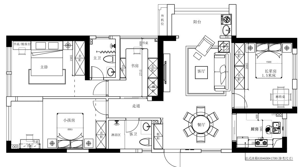
    案例简介:本案例的业主是一个三口之家,有一个六岁的宝宝,而父母也偶尔会过来聚一聚,因此业主们对于空间的设计要求是将空间进行再规划,满足多位家庭成员的居住需求,同时希望房屋动线设计合理 6686官方版app,并设计出足够的亲子互动空间,以保障孩子能够健康快乐的成长,基于此,设计师对空间进行了重新划分,同时融入清新明快的元素,强调空间童真氛围。


    户型解析:




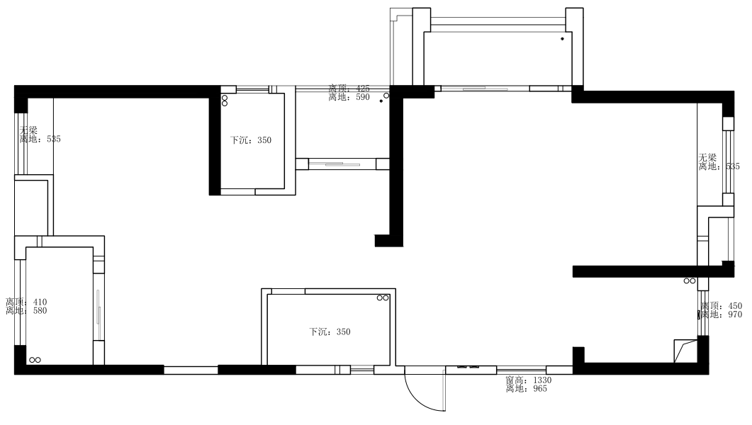
    顶琇国际城这套129㎡的四居室住宅原有的户型结构相对比较简单,并没有进行一定的功能区域划分,因此设计师需要根据业主的使用需求对空间进行规划设计 6686官方版app,同时再加以软装设计,来提升家居空间的品质感,为了满足业主的办公,阅读需求及孩子的学习需求,空间中特意打造出一块书房区域,同时借助大面积的开窗设计来提升环境舒适度。


    客厅:




    淡蓝色的墙面搭配上浅色暗纹的沙发,低调中又带有一抹淡淡的清新气息,木质桌子则与不易沙发之间形成碰撞 6686官方版app,提升了空间的立体感与质感。


    餐厅:



    餐厅区域位于客厅区域的延伸处,仅以简单的木质桌椅构成,强调实用性 6686官方版app


    卧室:



    素色条纹壁纸搭配上浅蓝色田园风窗帘 6686官方版app,清新典雅而又不失自然浪漫风情。


预约设计师
海量行家, 抢订6686注册设计服务
每日前20名申请用户, 获3D装修设计图
686官方版app - 推荐相关案例
6686注册获取同款设计方案
姓名*
楼盘*
电话*
*为了您的权益, 您的隐私将严格保密
预约成功
您已报名成功, 稍后会有客服人员联系您。 您的隐私将被严格保密。
关注二维码了解6686体育装修知识
6686登录我们 (6686官方版app)
澳华历程
6686官方版app - 官方微博
联系我们
"6686官方版app" 装修咨询电话 : 027-82411111
售后服务电话 : 027-82866788
"6686官方版app" 公司地址 : 6686平台市江岸区澳门路232号金冠大厦
6686登录我们 (6686官方版app)
友情链接 : (6686官方版app)
    66866686官方版app下载官方版-6686官方版app下载2025最新 页面版权所有 jingyu-design.cn

    算一算,您家装修需要花多少钱? (6686官方版app)

    知精准报价 避装修深坑

    "6686官方版app" 01/03

    选择您喜欢的风格

    • 现代轻奢

    • 现代美式

    • 北欧

    • 新中式

    • 欧式

    • 其他

    "6686官方版app" 算一算,您家装修要花多少钱?

    知精准报价 避装修深坑

    "6686官方版app" 02/03

    选择房屋面积区间

    • 80-100㎡
    • 100-140㎡
    • 140-200㎡
    • 200-300㎡
    • 300㎡以上

    "6686官方版app" 03/03

    您的户型

    • 两居室

    • 三居室

    • 四居室

    • 五居室

    • 六居室

    "6686官方版app" 算一算,您家装修要花多少钱?

    知精准报价 避装修深坑

    0%

    稍等片刻,您的报价正在生中......

    "6686官方版app" 算一算,您家装修要花多少钱?

    知精准报价 避装修深坑

    您的完整报价已经生成

    报名成功享抢订优惠名额

    每日仅限前10名用户