24小时咨询电话 (6686官方版app)
027-82411111
当前位置 : 首页 > 户型解析 > 九龙仓月玺 128㎡三居室现代轻奢格调住宅户型解析
6686官方版app - 九龙仓月玺 128㎡三居室现代轻奢格调住宅户型解析
发布时间 : 2022-03-05 17:51
查看数 : (6686官方版app)

    案例简介:本案例的主人公崇尚简约而又轻奢的现代格调生活,因此设计师对这套房屋进行规划设计的时候尽可能的选择了一些相对比较有质感而又不繁琐的元素,以营造一种简约而又不简单的轻奢高级感,色彩的选择上则是以简约洁净的浅色系色彩为主,点缀以少量亮色系色彩 6686官方版app,以强调柔和温馨家居氛围。


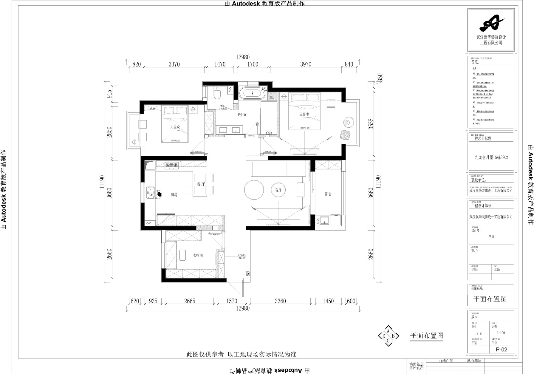
    户型解析:


微信图片_20200801155343.jpg


    九龙仓月玺的这套三居室房屋的建筑面积约为128㎡,整体原有户型结构即可满足业主使用需求,因此不再进行重新规划,为满足女主人的衣物规划,替换需求,设计师将其中一个小房间打造成衣帽间,再搭配以清新装饰点缀 6686官方版app,有效提升品质,整个家居空间的用色相对比较节俭素雅,满足业主审美需求。


    客厅:


客厅.jpg


    会客区选用了黑色木质桌子与橘色布艺沙发 6686官方版app,通过色彩的碰撞表达一种个性美,清新感十足的浅色挂画,则提升了空间的优雅氛围。


    厨房:


厨房.jpg

    设计师巧妙借助L形造型的橱柜进行空间软隔断,将整个厨房空间通过橱柜拐角变化进行分割,有效提升了空间的功能分界感 6686官方版app


    卧室:


卧室.jpg


    卧室区域通过不同浓度的蓝色进行软装,浅蓝色墙面搭配上深蓝色床具 6686官方版app,简约耐看而又不失整体协调美。


    卫生间:


卧室.jpg

    浅色墙面搭配上悬空台面设计就构成了整个卫生间 6686官方版app,而镜子则选用了没有经过任何装饰处理的原型裸镜,简约而又带有个性艺术感。


    阳台:


阳台.jpg

    阳台侧面小角落安装置物柜 6686官方版app,同时嵌入洗衣机,有效提升空间利用率。


预约设计师
海量行家, 抢订6686注册设计服务
每日前20名申请用户, 获3D装修设计图
推荐相关案例
6686注册获取同款设计方案
姓名*
楼盘*
电话*
*为了您的权益, 您的隐私将严格保密
预约成功
您已报名成功, 稍后会有客服人员联系您。 您的隐私将被严格保密。
关注二维码了解6686体育装修知识
6686登录我们 (6686官方版app)
"6686官方版app" 澳华历程
官方微博
"6686官方版app" 联系我们
装修咨询电话 : 027-82411111
售后服务电话 : 027-82866788 (6686官方版app)
公司地址 : 6686平台市江岸区澳门路232号金冠大厦
6686登录我们 (6686官方版app)
"6686官方版app" 友情链接 :
    66866686官方版app下载官方版-6686官方版app下载2025最新 页面版权所有 jingyu-design.cn

    算一算,您家装修需要花多少钱?

    知精准报价 避装修深坑

    01/03 (6686官方版app)

    选择您喜欢的风格

    • 现代轻奢

    • 现代美式

    • 北欧

    • 新中式

    • 欧式

    • 其他

    算一算,您家装修要花多少钱?

    知精准报价 避装修深坑

    02/03

    选择房屋面积区间

    • 80-100㎡
    • 100-140㎡
    • 140-200㎡
    • 200-300㎡
    • 300㎡以上

    686官方版app - 03/03

    您的户型

    • 两居室

    • 三居室

    • 四居室

    • 五居室

    • 六居室

    "6686官方版app" 算一算,您家装修要花多少钱?

    知精准报价 避装修深坑

    0%

    稍等片刻,您的报价正在生中......

    算一算,您家装修要花多少钱?

    知精准报价 避装修深坑

    您的完整报价已经生成

    报名成功享抢订优惠名额

    每日仅限前10名用户