"6686官方版app" 24小时咨询电话
027-82411111
当前位置 : 首页 > 户型解析 > 中建南湖壹号112㎡三居室新中式养老家居户型解析
中建南湖壹号112㎡三居室新中式养老家居户型解析
发布时间 : 2022-03-04 12:19
查看数 : 686官方版app -

    案例介绍:这套中建南湖壹号112㎡的新房是业主购置给老人退休养老使用,两位老人常住,周末或假期自己会带着孩子过来一起住,三房户型刚好可以满足这一需求,经过前期的沟通设计师了解到,二位老人不喜欢全实木家具,希望新中式风的新家里,以时尚简单的家具为主,色彩切勿沉重,对空间收纳有一定需求 6686官方版app


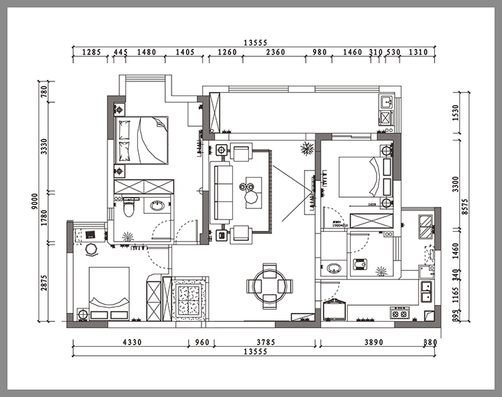
    户型解析


1.jpg


    户型方正,空间中柱子,横梁与排污管道较少,通风面多,居住理想,客厅与餐厅一体衔接,并与其中一个卧室使用同一个阳台 6686官方版app,空间通风因此变得更好,另外,在三个卧室中,其中两个卧室都带有卫生间,日常使用十分方便。


    玄关


2.jpg


    为缓解进门见厅的尴尬局面,玄关处设计了实体半隔断 6686官方版app,挂画装饰后观感非常棒,玄关柜采用嵌入式设计,立面干净,为玄关空间赢出6686体育活动空间。


    客厅


3.jpg


    客厅采用新中式天花设计,在线条的勾勒下及中式灯具的点缀下,进一步扩大了客厅的通透感,沙发部分依业主需求,使用了现代白色沙发,搭配木质茶几,电视地柜及新中式软装,令空间显得更加轻盈 6686官方版app


    卧室


4.jpg


    卧室背景墙采用对称的设计手法,中部通过时尚软装增加品质感 6686官方版app,白色与蓝色的床品搭配营造出满满的禅意感,呈现出古香古色的新中式氛围。


"6686官方版app"
6686官方版app - 预约设计师
海量行家, 抢订6686注册设计服务
每日前20名申请用户, 获3D装修设计图
推荐相关案例
6686注册获取同款设计方案 (6686官方版app)
姓名*
楼盘*
电话*
*为了您的权益, 您的隐私将严格保密
预约成功
您已报名成功, 稍后会有客服人员联系您。 您的隐私将被严格保密。
关注二维码了解6686体育装修知识
"6686官方版app" 6686登录我们
澳华历程 (6686官方版app)
官方微博
联系我们
装修咨询电话 : 027-82411111
售后服务电话 : 027-82866788
公司地址 : 6686平台市江岸区澳门路232号金冠大厦
6686登录我们 (6686官方版app)
友情链接 :
    66866686官方版app下载官方版-6686官方版app下载2025最新 页面版权所有 jingyu-design.cn

    "6686官方版app" 算一算,您家装修需要花多少钱?

    知精准报价 避装修深坑

    01/03

    选择您喜欢的风格

    • 现代轻奢

    • 现代美式

    • 北欧

    • 新中式

    • 欧式

    • 其他

    算一算,您家装修要花多少钱?

    知精准报价 避装修深坑

    02/03

    选择房屋面积区间

    • 80-100㎡
    • 100-140㎡
    • 140-200㎡
    • 200-300㎡
    • 300㎡以上

    "6686官方版app" 03/03

    您的户型

    • 两居室

    • 三居室

    • 四居室

    • 五居室

    • 六居室

    "6686官方版app" 算一算,您家装修要花多少钱?

    知精准报价 避装修深坑

    0%

    稍等片刻,您的报价正在生中......

    算一算,您家装修要花多少钱? (6686官方版app)

    知精准报价 避装修深坑

    您的完整报价已经生成

    6686官方版app - 报名成功享抢订优惠名额

    每日仅限前10名用户