24小时咨询电话
027-82411111
当前位置 : 首页 > 户型解析 > 广电兰亭荣荟 90㎡ 二居室现代简约个性小家户型解析
广电兰亭荣荟 90㎡ 二居室现代简约个性小家户型解析
发布时间 : 2022-03-03 11:59
查看数 : 686官方版app -

    案例简介:现在不少年轻的女孩子都会在婚前购置一套自己的房子,这不仅仅是生活品质的保障,也是个人能力的彰显,本案例的业主也同样不例外,作为一个年轻的95后都市白领,她有着自己对生活的领悟,且不喜欢过于花里胡哨的设计,设计师根据业主的喜好选择了简约装修风格 6686官方版app,同时将空间进行了再规划设计,满足家里来客人时的居住需求。


    户型解析:



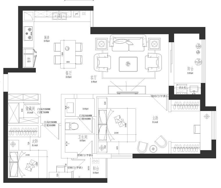
    广电兰亭荣荟的这套二居室住宅面积在90㎡左右,原有的户型结构细小角落较多 6686官方版app,加上原本房屋面积不大,因此需要对整体空间进行更加合理高效的利用,设计师在充分考虑业主使用需求的前提下,将次卧旁边的琐碎成一个迷你储物间,有效避免了空间的浪费,而开放式厨房的设计,则有效节省了室内空间的占用。


    客厅:



    带有磨砂质感的纯色壁纸搭配上质感柔软的布艺沙发,让整个会客区域洋溢着舒适温馨气息 6686官方版app


    餐厅:




    餐厅区域与开放式的厨房设计在一块区域 6686官方版app,有效节约了室内空间,而黑白配色的桌椅简约耐看搭配以花束,温馨而又不失情趣感。


    卧室:




    带有木质质感的地板贴纸,墙贴强调了空间的自然气息 6686官方版app,蓝色床具与灰色曲线沙发则让空间多一抹柔和明亮气息。


    卫生间:




    卫生间面积不大,因此整体选用素雅的色彩进行装饰 6686官方版app,避免从视觉上造成压迫感。


(6686官方版app)
6686官方版app - 预约设计师
海量行家, 抢订6686注册设计服务
每日前20名申请用户, 获3D装修设计图
6686注册获取同款设计方案
姓名*
楼盘*
电话*
*为了您的权益, 您的隐私将严格保密
预约成功
您已报名成功, 稍后会有客服人员联系您。 您的隐私将被严格保密。
关注二维码了解6686体育装修知识
6686登录我们 (6686官方版app)
澳华历程
"6686官方版app" 官方微博
联系我们
装修咨询电话 : 027-82411111
售后服务电话 : 027-82866788
"6686官方版app" 公司地址 : 6686平台市江岸区澳门路232号金冠大厦
6686官方版app - 6686登录我们
友情链接 :
    66866686官方版app下载官方版-6686官方版app下载2025最新 页面版权所有 jingyu-design.cn

    6686官方版app - 算一算,您家装修需要花多少钱?

    知精准报价 避装修深坑

    686官方版app - 686官方版app - 01/03

    选择您喜欢的风格

    • 现代轻奢

    • 现代美式

    • 北欧

    • 新中式

    • 欧式

    • 其他

    686官方版app - 算一算,您家装修要花多少钱?

    知精准报价 避装修深坑

    "6686官方版app" 02/03

    选择房屋面积区间

    • 80-100㎡
    • 100-140㎡
    • 140-200㎡
    • 200-300㎡
    • 300㎡以上

    "6686官方版app" 03/03

    您的户型

    • 两居室

    • 三居室

    • 四居室

    • 五居室

    • 六居室

    "6686官方版app" 算一算,您家装修要花多少钱?

    知精准报价 避装修深坑

    0%

    稍等片刻,您的报价正在生中......

    算一算,您家装修要花多少钱? (6686官方版app)

    知精准报价 避装修深坑

    您的完整报价已经生成

    "6686官方版app" 报名成功享抢订优惠名额

    每日仅限前10名用户