24小时咨询电话
027-82411111
当前位置 : 首页 > 户型解析 > 联发九都国际6期 123㎡二居室简欧风舒适小窝户型解析
"6686官方版app" 联发九都国际6期 123㎡二居室简欧风舒适小窝户型解析
"6686官方版app" 发布时间 : 2022-03-03 11:27
查看数 :

    案例简介:本案例的业主是一位独居的年轻女士 6686官方版app,作为一个新时代的都市丽人,她对家的理解是能够充分释放自己的心灵,不要过多繁琐的设计,而根据业主介绍,她一般自己一个人居住,父母偶尔会过来陪伴自己,因此设计师在进行本案例的规划设计时,为业主的家人预留出一个客房,而整体的装修风格选择了相对比较简约而又不失小资格调的简欧装修风格,搭配以少量装饰元素,简约而又耐看。


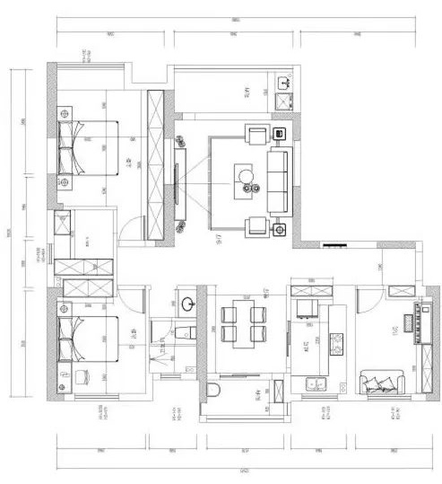
    户型解析:






    联发九都国际6期这套二居室住宅的面积为123㎡ 6686官方版app,整体的户型结构呈现“L”形,空间犄角少却格局合理,因此设计师的设计重点放在了功能的划分上,根据业主起居使用需求,空间左半部分被划分为休憩空间,中间则被规划为会客区域,左半侧则设计为做饭与就餐空间,整体动静分区合理,在无形之中提升了生活的品质。


    玄关:


玄关.jpg


    玄关处通过墙面材质的碰撞来营造丰富的结构感 6686官方版app,木质墙面与水泥墙面将整个墙面划分为几何形,简约耐看中透露着一抹个性气息。


    客厅:


客厅.jpg


    皮质沙发与大理石材质桌子之间通过材质的对比碰撞提升了空间的结构感与层次感 6686官方版app,简约艺术挂画则彰显了主人的独特品味。


    餐厅:


餐厅.jpg


    光泽感强的桌椅,墙面让就餐区域有了一抹流光溢彩的高级美 6686官方版app,华丽的吊灯与精美的挂画则赋予空间艺术美感。


    厨房:

厨房.jpg


    黑白的经典配色展示了厨房空间的现代美,质感清冷的暖色系瓷砖则透露着大气端庄 6686官方版app,各处小细节均体现着都市丽人对于高品质生活的追求。


6686官方版app - 预约设计师
海量行家, 抢订6686注册设计服务
每日前20名申请用户, 获3D装修设计图
"6686官方版app" 推荐相关案例
6686注册获取同款设计方案
姓名*
楼盘*
电话*
*为了您的权益, 您的隐私将严格保密
预约成功
您已报名成功, 稍后会有客服人员联系您。 您的隐私将被严格保密。
关注二维码了解6686体育装修知识
6686登录我们 (6686官方版app)
"6686官方版app" 澳华历程
官方微博
6686官方版app - 联系我们
"6686官方版app" 装修咨询电话 : 027-82411111
售后服务电话 : 027-82866788
公司地址 : 6686平台市江岸区澳门路232号金冠大厦 (6686官方版app)
6686登录我们
友情链接 :
    66866686官方版app下载官方版-6686官方版app下载2025最新 页面版权所有 jingyu-design.cn

    算一算,您家装修需要花多少钱?

    知精准报价 避装修深坑

    "6686官方版app" 01/03

    选择您喜欢的风格

    • 现代轻奢

    • 现代美式

    • 北欧

    • 新中式

    • 欧式

    • 其他

    算一算,您家装修要花多少钱?

    知精准报价 避装修深坑

    "6686官方版app" 02/03

    选择房屋面积区间

    • 80-100㎡
    • 100-140㎡
    • 140-200㎡
    • 200-300㎡
    • 300㎡以上

    03/03

    您的户型

    • 两居室

    • 三居室

    • 四居室

    • 五居室

    • 六居室

    算一算,您家装修要花多少钱?

    知精准报价 避装修深坑

    0%

    稍等片刻,您的报价正在生中......

    算一算,您家装修要花多少钱?

    知精准报价 避装修深坑

    "6686官方版app" 您的完整报价已经生成

    6686官方版app - 报名成功享抢订优惠名额

    每日仅限前10名用户