"6686官方版app" 24小时咨询电话
027-82411111
当前位置 : 首页 > 户型解析 > 融创澜岸 105平方米三居室中式典雅雅苑户型解析
6686官方版app - 融创澜岸 105平方米三居室中式典雅雅苑户型解析
发布时间 : 2022-03-03 12:06
"6686官方版app" 查看数 :

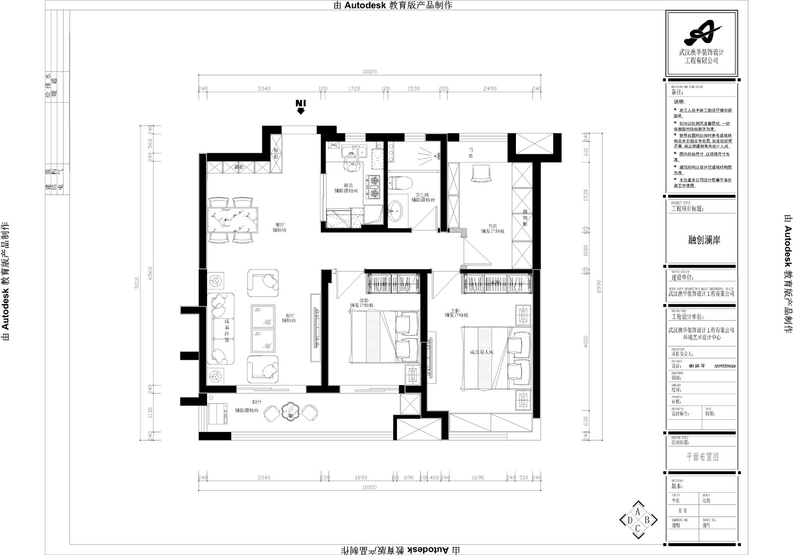
    案例解析:本案例的主人公刚刚退休,相比于各种时尚元素而言,她更加偏爱传统而又韵味感十足的中式元素,因此设计师在装修风格的挑选上选择了传统的中式风,同时融入一些现代化元素,这样能够在强调室内空间复古韵味的同时,还能够较好的满足现代人的起居使用需求,而空间划分上 6686官方版app,设计师则在考虑业主家人使用需求的前提下进行了再规划,以保障能够满足不同家庭成员的使用需求。


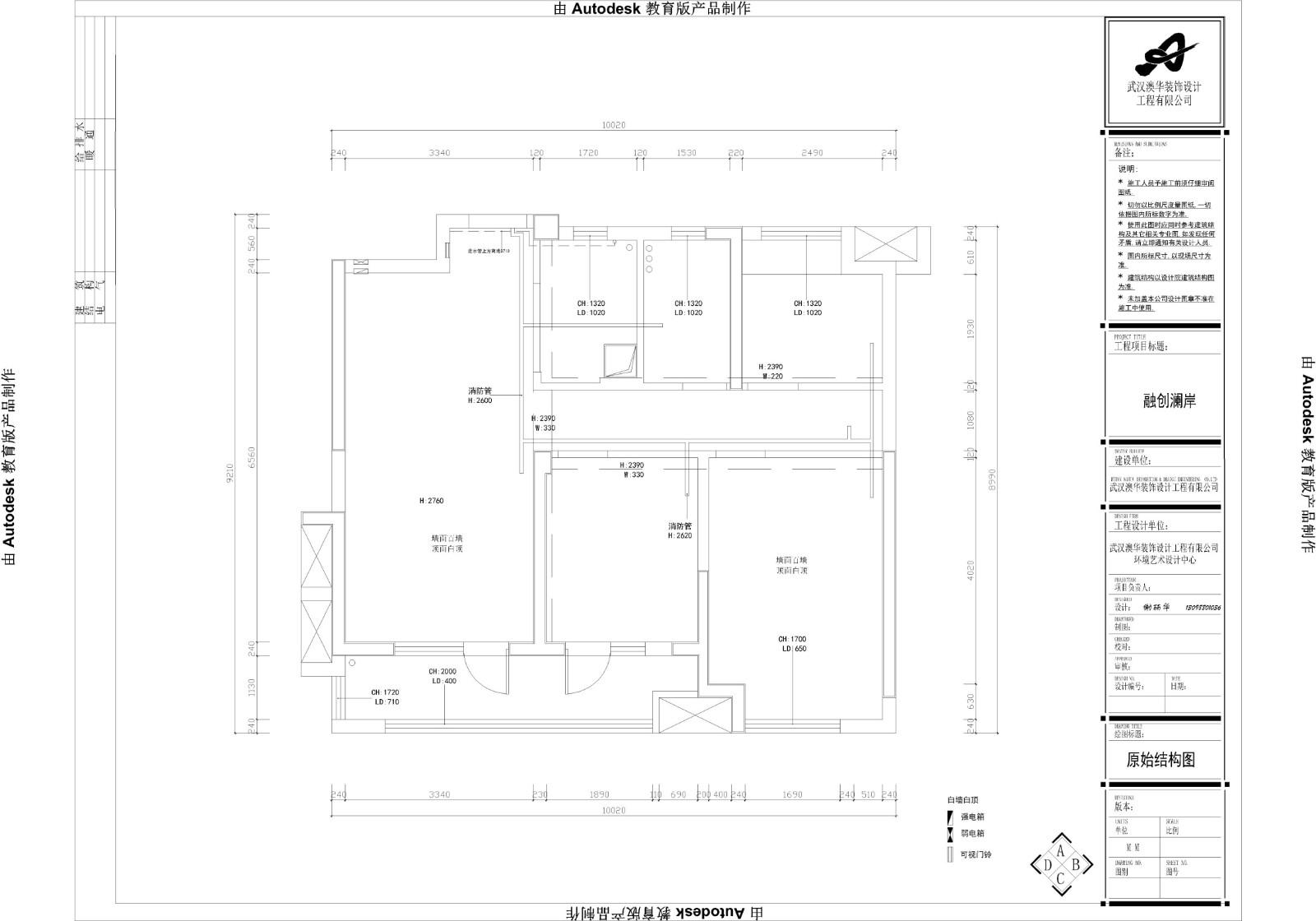
    户型解析:



    融创澜岸的这套105㎡的三居室主宰整体的户型结构相对比较平整,几乎没有太大的格局缺陷,因此空间设计难度不大,为了提升空间的实密度与美观度,设计师将玄关处设置了一定的遮挡 6686官方版app,避免室内景象直接映入来者眼前,同时,利用大面积落地窗设计,将室外的好风光进入室内,起到较好的室内装饰点缀效果。


    客厅:




    大理石打造的电视背景墙清新而又不失高贵感,搭配上对称式木质结构,平添一抹温厚柔和之美 6686官方版app


    餐厅:




    就餐区域被设置在入门玄关的拐角处 6686官方版app,有效避免了角落空间的浪费,同时借助一个木质储物柜起到视觉隔断的作用。


    厨房:


厨房1.jpg


    L形的设计保障了厨房空间的合理利用,有有效避免出现转身困难的情况 6686官方版app,深棕色木质储物柜与白色大理石台面的碰撞,则让空间层次感更为丰富。


    卧室:



    大面积蓝色碎花壁纸搭配上木质地板 6686官方版app,简约清新而又耐看。


    卫生间:

卫生间1.jpg

    大面积的浅色瓷砖从视觉上起到放大空间作用,玻璃滑门则让空间的不同功能区域得到更为明显的划分 6686官方版app


6686官方版app -
预约设计师 (6686官方版app)
海量行家, 抢订6686注册设计服务
每日前20名申请用户, 获3D装修设计图
6686注册获取同款设计方案
姓名*
楼盘*
电话*
*为了您的权益, 您的隐私将严格保密
预约成功 (6686官方版app)
您已报名成功, 稍后会有客服人员联系您。 您的隐私将被严格保密。
关注二维码了解6686体育装修知识
6686官方版app - 6686登录我们
澳华历程
6686官方版app - 官方微博
联系我们 (6686官方版app)
装修咨询电话 : 027-82411111
"6686官方版app" 售后服务电话 : 027-82866788
公司地址 : 6686平台市江岸区澳门路232号金冠大厦
6686登录我们 (6686官方版app)
友情链接 :
    66866686官方版app下载官方版-6686官方版app下载2025最新 页面版权所有 jingyu-design.cn

    算一算,您家装修需要花多少钱?

    知精准报价 避装修深坑

    01/03

    选择您喜欢的风格

    • 现代轻奢

    • 现代美式

    • 北欧

    • 新中式

    • 欧式

    • 其他

    算一算,您家装修要花多少钱?

    知精准报价 避装修深坑

    686官方版app - 02/03

    选择房屋面积区间

    • 80-100㎡
    • 100-140㎡
    • 140-200㎡
    • 200-300㎡
    • 300㎡以上

    03/03

    您的户型

    • 两居室

    • 三居室

    • 四居室

    • 五居室

    • 六居室

    算一算,您家装修要花多少钱?

    知精准报价 避装修深坑

    0%

    稍等片刻,您的报价正在生中......

    算一算,您家装修要花多少钱?

    知精准报价 避装修深坑

    您的完整报价已经生成

    报名成功享抢订优惠名额

    每日仅限前10名用户