24小时咨询电话 (6686官方版app)
027-82411111
当前位置 : 首页 > 户型解析 > 美联城仕114㎡三居室轻奢婚房户型解析
美联城仕114㎡三居室轻奢婚房户型解析
686官方版app - 发布时间 : 2022-03-01 10:26
查看数 : 686官方版app - 686官方版app -

    案例简介:


    这套房屋的业主是一对即将结婚的年轻人,他们希望能够拥有一所带有小资格调感而又不落俗套的轻奢婚房,而设计师在进行户型设计的时候,根据业主的审美与需求选择了较为稳妥的现代轻奢风,同时借助色彩的搭配,元素的碰撞来突出空间的精致感与个性化 6686官方版app,以更好满足这对即将结婚的新人的起居使用需求。


    户型解析:


1.jpg


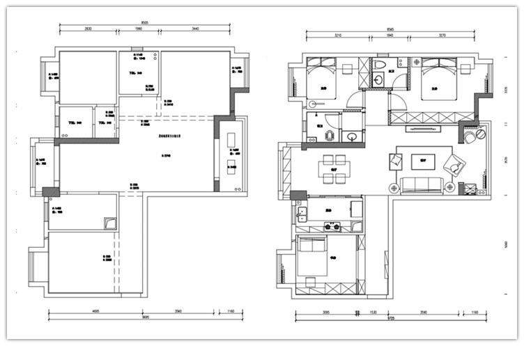
    这套位于美联城仕的三居室房屋面积在114㎡左右,空间结构相对并没有那么合理,因此设计师在进行规划设计时,将外部一块突出的区域打造为会客厅,通过户型的结构将会客区域与休憩空间巧妙分隔开来,同时根据业主需求,空间使用了较多的软隔断设计,以避免家居空间看起来呆板且局限,卧室处则选用了与墙面一致的色彩打造衣柜 6686官方版app,以避免过多的色彩造成空间压抑感。


    玄关:


2.jpg


3.jpg


    玄关区域面积并不大,因此设计师在对玄关处进行设计时并没有使用过多的元素 6686官方版app,而是利用色彩的碰撞来提升玄关区域的结构感,黑白入户式设计既能够节省一定空间,满足鞋子,衣物的收纳需求,也能够通过色彩来营造一种简约时尚氛围。


    客厅:


4.jpg


5.jpg


6.jpg


    客厅区域选用了相对比较大胆的用色,浅色系的墙面搭配上橘色的皮质沙发,一种不羁的只有洒脱感就油然而生 6686官方版app,背景墙处使用简单的墙面镶边处理,简约精致好看而又节约装修成本,可谓一举多得。


    餐厅:


QQ截图20220127173636.jpg


QQ截图20220220121654.jpg


    餐厅区域面积相对比较狭小,所以设计师选用了推拉门的软隔断设计,避免让原本就不大的就餐空间更显压抑,而大量的浅色元素 6686官方版app,如浅蓝色墙面,白色餐座椅则从视觉上起到扩大空间的作用。


    厨房:


图片1.jpg


微信图片_20220210151456.jpg


    为了提升空间利用率,厨房安置了较多的收纳区域,如悬挂式橱柜,收纳一体式的台面,以保障厨房空间得到更加合理充分的利用 6686官方版app,而空间上下两部分出橱柜则选用了黑白两种色彩,避免空间过于单调。


    卧室


微信图片_20220210151505.jpg


151627320137.jpg


151638180949.jpg


书房


151640430473.jpg


151640530289.jpg


    卫生间


151642110287.jpg


151642180718.jpg


    阳台


161200220125.jpg

(6686官方版app)
"6686官方版app"
预约设计师 (6686官方版app)
海量行家, 抢订6686注册设计服务
每日前20名申请用户, 获3D装修设计图
推荐相关案例
6686注册获取同款设计方案 (6686官方版app)
姓名*
楼盘*
电话*
*为了您的权益, 您的隐私将严格保密
预约成功 (6686官方版app)
您已报名成功, 稍后会有客服人员联系您。 您的隐私将被严格保密。
关注二维码了解6686体育装修知识
"6686官方版app" 联系我们
"6686官方版app" 装修咨询电话 : 027-82411111
售后服务电话 : 027-82866788
"6686官方版app" 公司地址 : 6686平台市江岸区澳门路232号金冠大厦
"6686官方版app" 6686登录我们
友情链接 :
    66866686官方版app下载官方版-6686官方版app下载2025最新 页面版权所有 jingyu-design.cn

    "6686官方版app" 算一算,您家装修需要花多少钱?

    知精准报价 避装修深坑

    01/03 (6686官方版app)

    选择您喜欢的风格

    • 现代轻奢

    • 现代美式

    • 北欧

    • 新中式

    • 欧式

    • 其他

    "6686官方版app" 算一算,您家装修要花多少钱?

    知精准报价 避装修深坑

    02/03

    选择房屋面积区间

    • 80-100㎡
    • 100-140㎡
    • 140-200㎡
    • 200-300㎡
    • 300㎡以上

    "6686官方版app" 03/03

    您的户型

    • 两居室

    • 三居室

    • 四居室

    • 五居室

    • 六居室

    算一算,您家装修要花多少钱?

    知精准报价 避装修深坑

    0%

    稍等片刻,您的报价正在生中......

    "6686官方版app" 算一算,您家装修要花多少钱?

    知精准报价 避装修深坑

    您的完整报价已经生成

    报名成功享抢订优惠名额 (6686官方版app)

    每日仅限前10名用户