6686官方版app - 24小时咨询电话
027-82411111
当前位置 : 首页 > 户型解析 > 广电兰亭珑府175㎡四居室新中式清新雅居户型解析
广电兰亭珑府175㎡四居室新中式清新雅居户型解析 (6686官方版app)
686官方版app - 发布时间 : 2022-03-01 10:38
"6686官方版app" 查看数 :

    案例简介:


    对于多子家庭来说,175㎡的房屋其实并不算大,因为需要预留出较多的休憩空间,且需要满足6686体育家庭成员的使用需求,再者 6686官方版app,业主所青睐的新中式装修风格对于空间的面积也有着一定的要求,因此该房屋的设计难点就在于如何将不够宽敞的房屋打造出新中式浑厚大气美,设计师在进行设计时,在空间的规划设计上做了一定的设计,以避免过多隔断破坏新中式风所特有的大气感与灵动美。


    户型解析:


1.jpg


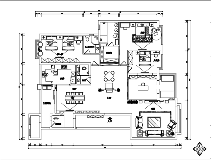
    广电兰亭珑府的这套175㎡的四居室房屋其实户型相对比较合理,并没有出现各种难以利用设计的角落,因此空间的设计重点将在如何满足多子家庭的起居使用需求与如何呈现新中式风的大气美 6686官方版app,设计师通过利用一些带有中式风情的元素进行空间装饰点缀,强调中式所特有的韵味美,同时利用多个嵌入式设计来提升空间的利用率,避免房屋看起来过于的压抑,局促。


    玄关:


2.jpg


    新中式的玄关6686体育强调的是一种韵味而非实用性,因此设计师在对玄关处进行设计的时候 6686官方版app,仅使用了一面不大的装饰墙,同时利用中式艺术画的点缀,来营造一种入门处即可观赏的优雅。


    客厅:


3.jpg


    客厅区域使用了非常经典的新中式配色 6686官方版app,大面积的灰色点缀上带有浑厚气息的深棕色木质材料,一种优雅的韵味之美展露无疑,蓝色的沙发则让空间多了一抹现代时尚气息。


    餐厅:


4.jpg


    餐厅空间则是借助材料本身的纹理进行空间装饰,大理石瓷砖的灰色暗纹,木质墙面的天然纹理 6686官方版app,都很好的会就餐区域注入了精致典雅美。


    卧室:


5.jpg


6.jpg


151627320137.jpg


    卧室使用了最为常见的中式设计手法——对称 6686官方版app,通过对称的床头设计来营造一种端庄典雅的氛围,复古的台灯则让空间的复古中式气息能够得到更好的体现。


    书房:


151638180949.jpg


    带有几何图形的艺术墙面搭配上简约的空间设计,为书房空间奠定了一股优雅宁静的氛围 6686官方版app,而色彩较为艳丽的灰蓝色地毯,则让空间多了一抹明媚的韵味。


    卫生间:


151640430473.jpg


    卫生间空间借助透明的玻璃进行干湿分离,以避免原本就不大的卫生间看起来过于压抑,一颗小小的橘色盆栽,则让卫生间更显清新典雅 6686官方版app


(6686官方版app)
"6686官方版app" 预约设计师
海量行家, 抢订6686注册设计服务
每日前20名申请用户, 获3D装修设计图
686官方版app - 推荐相关案例
"6686官方版app" 6686注册获取同款设计方案
姓名*
楼盘*
电话*
*为了您的权益, 您的隐私将严格保密
预约成功
您已报名成功, 稍后会有客服人员联系您。 您的隐私将被严格保密。
关注二维码了解6686体育装修知识
联系我们
"6686官方版app" 装修咨询电话 : 027-82411111
售后服务电话 : 027-82866788
公司地址 : 6686平台市江岸区澳门路232号金冠大厦
6686登录我们
友情链接 :
    66866686官方版app下载官方版-6686官方版app下载2025最新 页面版权所有 jingyu-design.cn

    算一算,您家装修需要花多少钱?

    知精准报价 避装修深坑

    01/03

    选择您喜欢的风格

    • 现代轻奢

    • 现代美式

    • 北欧

    • 新中式

    • 欧式

    • 其他

    6686官方版app - 算一算,您家装修要花多少钱?

    知精准报价 避装修深坑

    686官方版app - 02/03

    选择房屋面积区间

    • 80-100㎡
    • 100-140㎡
    • 140-200㎡
    • 200-300㎡
    • 300㎡以上

    686官方版app - 03/03

    您的户型

    • 两居室

    • 三居室

    • 四居室

    • 五居室

    • 六居室

    "6686官方版app" 算一算,您家装修要花多少钱?

    知精准报价 避装修深坑

    0%

    稍等片刻,您的报价正在生中......

    6686官方版app - 算一算,您家装修要花多少钱?

    知精准报价 避装修深坑

    "6686官方版app" 您的完整报价已经生成

    报名成功享抢订优惠名额 (6686官方版app)

    每日仅限前10名用户