"6686官方版app" 24小时咨询电话
027-82411111
当前位置 : 首页 > 户型解析 > 长源假日港湾290㎡三层轻奢别墅豪宅户型解析
长源假日港湾290㎡三层轻奢别墅豪宅户型解析 (6686官方版app)
686官方版app - 发布时间 : 2022-03-01 10:20
查看数 :

    案例简介:


    该别墅坐落为一位退休老人所有,坐落于相对比较成熟的商圈地段中,而业主希望设计师能够将别墅空间进行合理的规划设计,在满足自己与家人使用需求的前提下,追求一份静谧,舒适的自然气息,以便自己颐养天年 6686官方版app,因此设计师在对该空间进行规划设计的时候,以退休老人及其家人的需求为主设计思路,根据起居需求打造了书房,停车间等区域,以提升生活品质。


    户型解析:


1.jpg


2.jpg


3.jpg



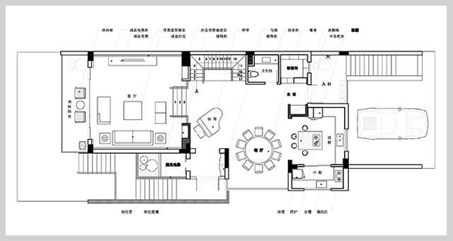
    这是一套位于长源假日港湾三层别墅,建筑面积约为290㎡,空间相对比较富足 6686官方版app,可供居住者自由分配,户型上,该别墅空间南北通透,整体结构相对比较方正,没有较多犄角空间,设计师在对该别墅进行设计时,充分考虑了业主的需求,将一层外部空间直接打通为停车区域,满足停车需求,同时,将会客区域与休憩区域设置于不同楼层,有效提升了居住私密性。


    客厅:


4.jpg


5.jpg


    客厅区域选用了相对比较清新明丽的色彩作为主基调色,以烘托现代轻奢的自然典雅气息,电视背景墙处大面积的大理石材质与白色木质门框相得益彰 6686官方版app,让简约之美展露无疑的同时更显和谐精致。


    餐厅:


6.jpg


    餐厅区域选用了经典的黑白配色,大面积的白色搭配上黑色餐桌椅,营造较强的视觉冲击效果,圆形凹显的吊顶设计搭配上低调简约的巨型吊灯 6686官方版app,则让轻奢的浪漫之美更好显露。


    厨房:


QQ截图20220127173636.jpg


    厨房区域以大面积瓷砖做装饰,通过瓷砖的珠光感来营造厨房的洁净舒适感,推拉门的半透明设计既可以起到分隔空间的作用,又能够让整个家居空间更显灵动通透 6686官方版app


    卧室:


QQ截图20220220121654.jpg


图片1.jpg


    精致的浮雕设计搭配上大面积的落地窗为卧室空间笼罩上一抹淡淡的华贵美,巨型吊灯 6686官方版app,精致的床头灯双灯设计则能够满足休憩者不同的灯光需求。


    书房:


微信图片_20220210151456.jpg


微信图片_20220210151505.jpg


    带有木材天然纹理的深棕色书柜,桌椅搭配上简约的绿植,一种浑厚端庄的大气之美呼之欲出,让整个书房空间更显肃静高级 6686官方版app


(6686官方版app)
"6686官方版app"
预约设计师
海量行家, 抢订6686注册设计服务
每日前20名申请用户, 获3D装修设计图
推荐相关案例
6686注册获取同款设计方案
姓名*
楼盘*
电话*
*为了您的权益, 您的隐私将严格保密
6686官方版app - 预约成功
您已报名成功, 稍后会有客服人员联系您。 您的隐私将被严格保密。
关注二维码了解6686体育装修知识
"6686官方版app" 6686登录我们
"6686官方版app" 澳华历程
官方微博
"6686官方版app" 客户服务
在线预约
滴滴专车
售后服务
联系我们 (6686官方版app)
"6686官方版app" 装修咨询电话 : 027-82411111
售后服务电话 : 027-82866788
6686官方版app - 公司地址 : 6686平台市江岸区澳门路232号金冠大厦
6686登录我们
6686官方版app - 友情链接 :
    66866686官方版app下载官方版-6686官方版app下载2025最新 页面版权所有 jingyu-design.cn

    算一算,您家装修需要花多少钱?

    知精准报价 避装修深坑 (6686官方版app)

    01/03

    选择您喜欢的风格 (6686官方版app)

    • 现代轻奢

    • 现代美式

    • 北欧

    • 新中式

    • 欧式

    • 其他

    "6686官方版app" 算一算,您家装修要花多少钱?

    知精准报价 避装修深坑

    02/03

    选择房屋面积区间

    • 80-100㎡
    • 100-140㎡
    • 140-200㎡
    • 200-300㎡
    • 300㎡以上

    "6686官方版app" 03/03

    您的户型

    • 两居室

    • 三居室

    • 四居室

    • 五居室

    • 六居室

    6686官方版app - 算一算,您家装修要花多少钱?

    知精准报价 避装修深坑

    0%

    稍等片刻,您的报价正在生中......

    算一算,您家装修要花多少钱?

    知精准报价 避装修深坑

    您的完整报价已经生成 (6686官方版app)

    报名成功享抢订优惠名额 (6686官方版app)

    每日仅限前10名用户