<kbd date-time="imq9xw"></kbd><del id="CIef4afx"></del>
24小时咨询电话
027-82411111
当前位置 : 首页 > 户型解析 > 中建南湖壹号112㎡三居室简欧典雅住宅户型解析
中建南湖壹号112㎡三居室简欧典雅住宅户型解析 (6686官方版app)
686官方版app - 发布时间 : 2022-03-01 10:08 (6686官方版app)
查看数 :

    案例简介:


    欧式风多使用于大户型房屋装修设计,因为该风格需使用到各类精雕细琢的装饰元素,如若空间面积较小,就会让房屋看起来过于压抑,而本案例的业主则偏爱欧式风,如何将112㎡的房屋打造出带有欧式贵族典雅气息的豪宅就是本次的设计难题 6686官方版app,而这次设计师则根据业主的喜好,选择了带有欧式风典雅复古美而又不会对空间体量要求过大的简欧风进行装饰,通过舍弃大量复杂的肌理与装饰来营造一种清新的欧式风情。


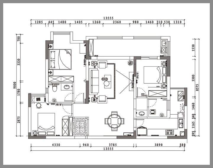
    户型解析:


1.jpg


    中建南湖壹号这套112㎡的三居室住宅户型相对比较紧凑,且原有格局没有较大缺陷,只是入户玄关的面积较小,难以起到该有的效果,因此设计师在设计时,选择保留原有的空间结构 6686官方版app,同时利用一些色彩,油画的元素来点缀入户玄关,以提升玄关区域的美感,同时,借助大面积的窗户将室外的阳光与景色引入室内,从视觉上起到扩大空间的作用,让整个家居空间更显高级韵味。


    玄关:


2.jpg


    为了让不大的玄关看起来更加的精致,设计师借助一面艺术半隔断墙进行装饰,避免室内景象直接映入来者眼中 6686官方版app,有效提升了空间的私密感与韵味感,而玄关侧面出的收纳柜设计,则有效提升了空间利用率。


    客厅:


3.jpg


    客厅区域保留了欧式风最为常见的用色,既经典暖黄色 6686官方版app,通过暖黄色与深棕色的搭配来营造一种浑厚而又温馨的复古典雅韵味,而家具则选择了造型相对比较简约且色彩素雅的白色沙发,以提升空间的大气感。


    卧室:


3.jpg


    卧室空间需强调宁静的氛围感 6686官方版app,因此设计师在对卧室区域进行设计的时候使用了光线相对比较柔和的灯具,以强调静谧感,而床头处的简约艺术挂件则让整个卧室空间多了一抹自然的气息美。


"6686官方版app"
预约设计师
海量行家, 抢订6686注册设计服务
每日前20名申请用户, 获3D装修设计图
推荐相关案例
6686官方版app - 6686注册获取同款设计方案
姓名*
楼盘*
电话*
*为了您的权益, 您的隐私将严格保密
预约成功
您已报名成功, 稍后会有客服人员联系您。 您的隐私将被严格保密。
关注二维码了解6686体育装修知识
6686官方版app - 联系我们
装修咨询电话 : 027-82411111
售后服务电话 : 027-82866788 (6686官方版app)
公司地址 : 6686平台市江岸区澳门路232号金冠大厦 (6686官方版app)
6686登录我们 (6686官方版app)
友情链接 :
    66866686官方版app下载官方版-6686官方版app下载2025最新 页面版权所有 jingyu-design.cn

    "6686官方版app" 算一算,您家装修需要花多少钱?

    知精准报价 避装修深坑

    01/03

    选择您喜欢的风格

    • 现代轻奢

    • 现代美式

    • 北欧

    • 新中式

    • 欧式

    • 其他

    686官方版app - 算一算,您家装修要花多少钱?

    知精准报价 避装修深坑

    02/03

    选择房屋面积区间

    • 80-100㎡
    • 100-140㎡
    • 140-200㎡
    • 200-300㎡
    • 300㎡以上

    03/03

    您的户型

    • 两居室

    • 三居室

    • 四居室

    • 五居室

    • 六居室

    "6686官方版app" 算一算,您家装修要花多少钱?

    知精准报价 避装修深坑

    0%

    稍等片刻,您的报价正在生中......

    "6686官方版app" 算一算,您家装修要花多少钱?

    知精准报价 避装修深坑

    您的完整报价已经生成

    报名成功享抢订优惠名额

    每日仅限前10名用户