"6686官方版app" 24小时咨询电话
027-82411111
当前位置 : 首页 > 6686官网网页版 > 谢丽华
找TA设计
经验丰富
DESIGNER
谢丽华 主任设计师
"6686官方版app" 从业时间 : 2003 作品数量 :7套
司 : 总部旗舰店
6686官方版app - 业主评价 :
    • 配色非常美
    • 功能设计
    • 设计娴熟
    • 有创意
    • 沟通愉快
    • 设计非常满意
    法式,美式,新中式,意式风,奶油风
    • 个人简介
    • 设计理念
    • 经典楼盘
    • 行业资质:


      中国装饰协会高级会员

      6686平台建筑装饰协会优秀设计师

      中国建筑装饰协会高级室内设计师


      荣获奖项:


      2016筑巢杯全国优秀作品奖

      20166686平台市第三界空间环境艺术设计大赛优秀奖

      20186686平台市第三界空间环境艺术设计大赛优秀奖

      2019“湖北工匠杯”职业技能大赛室内设计优秀奖

      2019年6686平台市第四界空间环境艺术设计大赛优秀奖

      2020中国室内设计年度评选设计优秀奖

      2022中国室内设计年度评选设计优秀奖


      擅长风格:


      现代轻奢 | 现代简约 | 极简 | 法式复古 | 法式清新 | 中式 | 美式 


    • “设计不是创造新奇事物,而是唤醒日常生活的感知,打破艺术和生活的边界,重塑空间形态,捕捉美学灵感与空间共鸣,构筑设计语境与时间对话,达到空间与设计和生活的交融共生 6686官方版app,”。


    • 融创澜岸. 融创融公馆. 世纪江尚. 华发中央首府. 福星华府. 汉口城市广场. 金岛御景世家 6686官方版app. 名雅居. 世茂锦绣长江. 卧龙墨水湖边. 华侨城. 泛海国际. 庭瑞时代. 琨御府.


    相关案例
    户型解析
    在施工地
    其他案例推荐
    (6686官方版app)
    相关案例
    "6686官方版app"
    户型解析
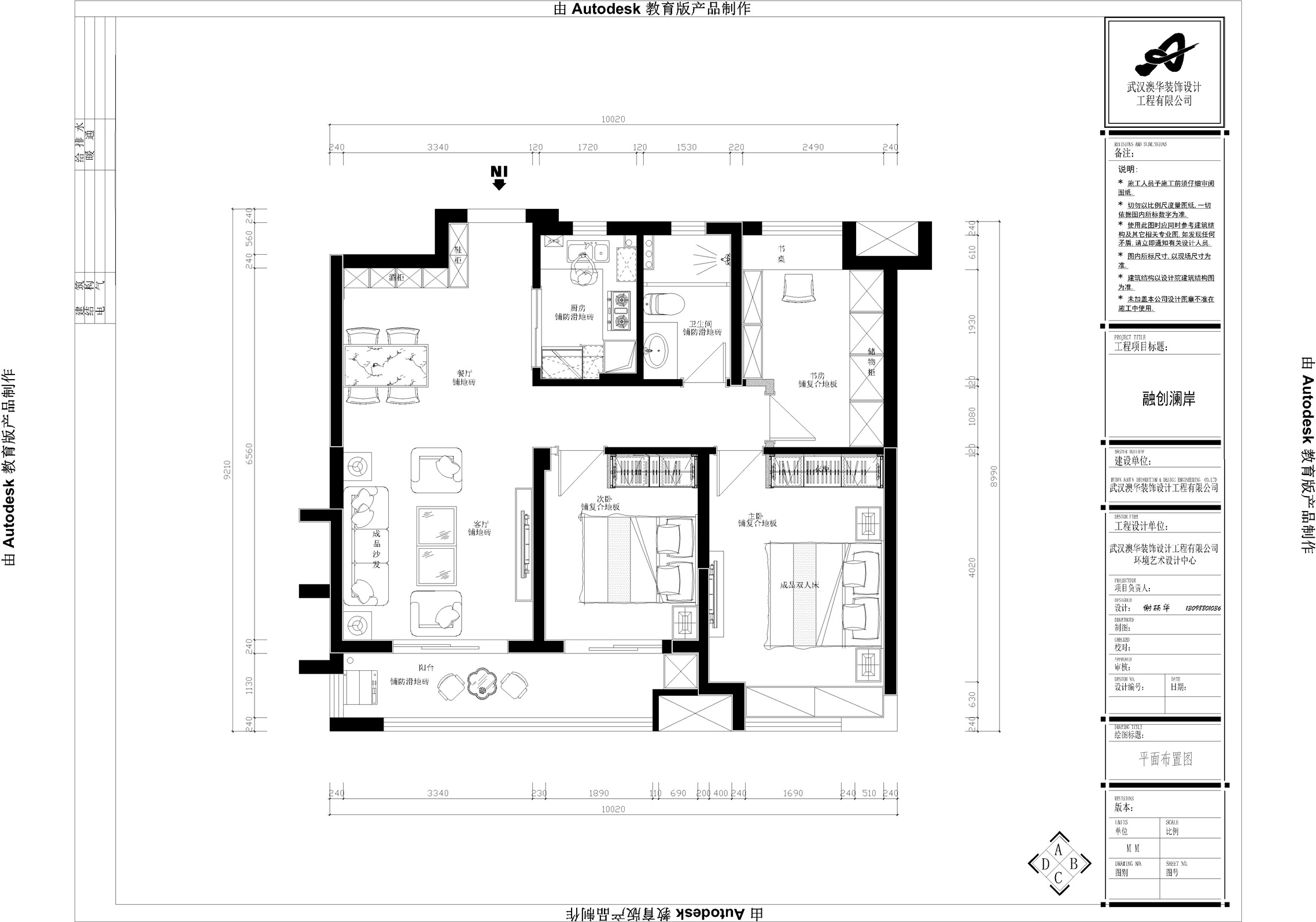
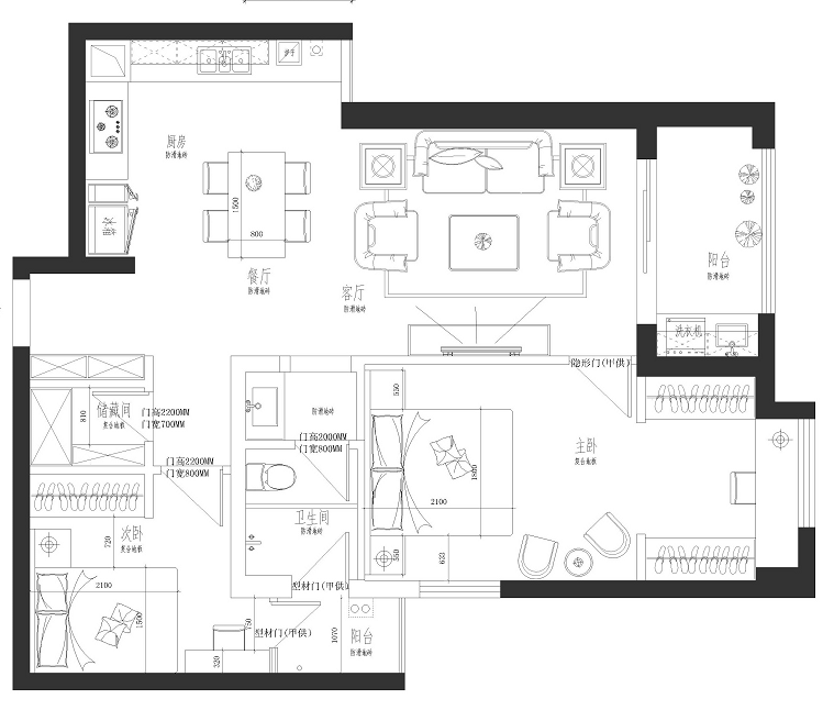
    融创澜岸 105平方米三居室中式典雅雅苑户型解析
    三居室
    6686官方版app - 105m²
    6686官方版app - 中式

        案例解析:本案例的主人公刚刚退休,相比于各种时尚元素而言 6686官方版app,她更加偏爱传统而又韵味感十足的中式元素,因此设计师在装修风格的挑选上选择了传统的中式风,同时融入一些现代化元素,这样能够在强调室内空间复古韵味的同时,还能够较好的满足现代人的起居使用需求,而空间划分上,设计师则在考虑业主家人使用需求的前提下进行了再规划,以保障能够满足不同家庭成员的使用需求。


        户型解析:



        融创澜岸的这套105㎡的三居室主宰整体的户型结构相对比较平整,几乎没有太大的格局缺陷,因此空间设计难度不大,为了提升空间的实密度与美观度 6686官方版app,设计师将玄关处设置了一定的遮挡,避免室内景象直接映入来者眼前,同时,利用大面积落地窗设计,将室外的好风光进入室内,起到较好的室内装饰点缀效果。


        客厅:




        大理石打造的电视背景墙清新而又不失高贵感 6686官方版app,搭配上对称式木质结构,平添一抹温厚柔和之美。


        餐厅:




        就餐区域被设置在入门玄关的拐角处,有效避免了角落空间的浪费 6686官方版app,同时借助一个木质储物柜起到视觉隔断的作用。


        厨房:


    厨房1.jpg


        L形的设计保障了厨房空间的合理利用,有有效避免出现转身困难的情况 6686官方版app,深棕色木质储物柜与白色大理石台面的碰撞,则让空间层次感更为丰富。


        卧室:



        大面积蓝色碎花壁纸搭配上木质地板 6686官方版app,简约清新而又耐看。


        卫生间:

    卫生间1.jpg

        大面积的浅色瓷砖从视觉上起到放大空间作用,玻璃滑门则让空间的不同功能区域得到更为明显的划分 6686官方版app


    广电兰亭荣荟 90㎡ 二居室现代简约个性小家户型解析
    686官方版app - 二居室
    90m²
    现代简约 (6686官方版app)

        案例简介:现在不少年轻的女孩子都会在婚前购置一套自己的房子,这不仅仅是生活品质的保障,也是个人能力的彰显,本案例的业主也同样不例外,作为一个年轻的95后都市白领,她有着自己对生活的领悟 6686官方版app,且不喜欢过于花里胡哨的设计,设计师根据业主的喜好选择了简约装修风格,同时将空间进行了再规划设计,满足家里来客人时的居住需求。


        户型解析:



        广电兰亭荣荟的这套二居室住宅面积在90㎡左右,原有的户型结构细小角落较多,加上原本房屋面积不大,因此需要对整体空间进行更加合理高效的利用。设计师在充分考虑业主使用需求的前提下,将次卧旁边的琐碎成一个迷你储物间,有效避免了空间的浪费。而开放式厨房的设计,则有效节省了室内空间的占用。


        客厅:



        带有磨砂质感的纯色壁纸搭配上质感柔软的布艺沙发,让整个会客区域洋溢着舒适温馨气息。


        餐厅:




        餐厅区域与开放式的厨房设计在一块区域,有效节约了室内空间。而黑白配色的桌椅简约耐看搭配以花束,温馨而又不失情趣感。


        卧室:




        带有木质质感的地板贴纸、墙贴强调了空间的自然气息,蓝色床具与灰色曲线沙发则让空间多一抹柔和明亮气息。


        卫生间:




        卫生间面积不大,因此整体选用素雅的色彩进行装饰,避免从视觉上造成压迫感。


    • 开工
    • 前期
    • 中期
    • 后期
    • 竣工
    "6686官方版app"
    预约设计师
    海量行家, 抢订6686注册设计服务
    每日前20名申请用户, 获3D装修设计图
    "6686官方版app" 预约设计师
    姓名*
    楼盘*
    电话*
    *为了您的权益, 您的隐私将严格保密
    推荐相关案例
    6686注册获取同款设计方案
    姓名*
    楼盘*
    电话*
    *为了您的权益, 您的隐私将严格保密
    预约成功
    您已报名成功, 稍后会有客服人员联系您。 您的隐私将被严格保密。
    关注二维码了解6686体育装修知识
    6686官方版app - 6686登录我们
    澳华历程
    6686官方版app - 官方微博
    6686官方版app - 联系我们
    装修咨询电话 : 686官方版app - 027-82411111
    售后服务电话 : 027-82866788
    公司地址 : 6686平台市江岸区澳门路232号金冠大厦
    6686官方版app - 6686登录我们
    友情链接 :
      66866686官方版app下载官方版-6686官方版app下载2025最新 页面版权所有 jingyu-design.cn

      686官方版app - 算一算,您家装修需要花多少钱?

      知精准报价 避装修深坑

      01/03

      选择您喜欢的风格

      • 现代轻奢

      • 现代美式

      • 北欧

      • 新中式

      • 欧式

      • 其他

      "6686官方版app" 算一算,您家装修要花多少钱?

      知精准报价 避装修深坑

      686官方版app - 02/03

      选择房屋面积区间

      • 80-100㎡
      • 100-140㎡
      • 140-200㎡
      • 200-300㎡
      • 300㎡以上

      686官方版app - 03/03

      您的户型

      • 两居室

      • 三居室

      • 四居室

      • 五居室

      • 六居室

      "6686官方版app" 算一算,您家装修要花多少钱?

      知精准报价 避装修深坑

      0%

      稍等片刻,您的报价正在生中......

      算一算,您家装修要花多少钱? (6686官方版app)

      知精准报价 避装修深坑

      您的完整报价已经生成

      报名成功享抢订优惠名额

      每日仅限前10名用户