"6686官方版app" 24小时咨询电话
027-82411111
当前位置 : 首页 > 6686官网网页版 > 闫骞
找TA设计
成熟稳重
DESIGNER (6686官方版app)
闫骞 主任设计师
从业时间 : 2003 作品数量 :6套
司 : 华中超级旗舰店
业主评价 :
    • 空间设计和谐
    • 细节设计生活便利
    • 设计功底厚
    • 效果和预想一致
    • 谈话沉稳
    • 很有责任心
    现代简约,法式,美式,新中式,侘寂风
    • 个人简介
    • 设计理念
    • 经典楼盘
    • 2011年6686平台住在装饰行业优秀设计师

      2011-2018年全国住宅装饰行业资深设计师

      2019年6686平台第四届空间环境艺术设计大赛住宅空间类三等奖

      2019年湖北工匠杯职业技能大赛室内设计二等奖

      2019年第三届华夏奖国际空间设计大赛铜奖

      2020年金尺杯国际设计大奖赛铜奖

      2022年湖北省室内装饰设计双年展住宅空间金奖

      2023年网易城市设计精英榜先锋奖

      2024年湖北省室内装饰设计双年展住宅空间金奖

    • 设计不是为了设计而设计,而是通过设计师的专业性,用艺术的表现手法对居者生活方式的倡导,任何设计都应以功能合理化为基石,通过合理划分空间,让设计融入生活,营造自然,品味,格调的写意空间 6686官方版app,风格是独一无二的,这种独特是因特定的人,地点和环境形成的,而设计就是为客户寻找个人风格的有趣味的过程,用设计改变生活。


    • F天下. 复地海上海 . 保利十二橡树庄园. 华侨城原岸. 联投中心 6686官方版app. 6686平台天地. 华发外滩首府. 广电光谷家. 春水行云等.

    相关案例
    户型解析
    在施工地
    其他案例推荐
    "6686官方版app" 相关案例
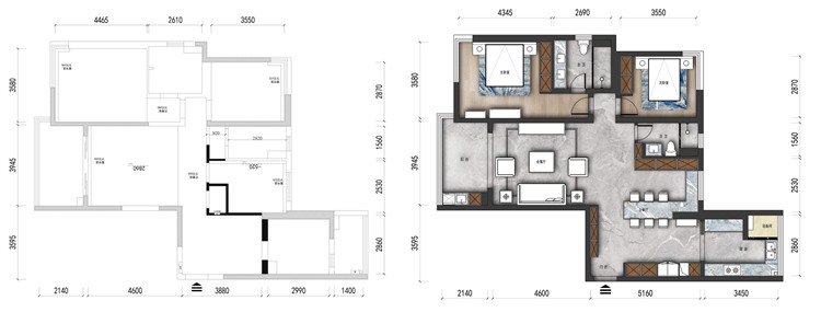
    晋合世家130平米三居室现代简约风格住宅户型解析
    三居室
    130m²
    现代简约 (6686官方版app)

        案例简介:装饰的灵魂是设计,设计的灵魂是文化,老年人对于自己的生活品质有很高的要求,在房屋装修方面现代简约的风格不仅仅很干净,打扫卫生也是很方便的 6686官方版app,与此同时布艺的一些家装居中也具有很高的舒适度,由于风格很现代,在儿女来访的时候也是喜欢这种风格,不会出现房屋风格审美方面的差异。


        户型解析:


    1.jpg


        晋合世家三居室现代简约风格住宅的面积是130平方米,三居室的空间设计不仅仅私密性好,可以满足退休人群日常的居住,即便是节假日儿女带着孩子来摆放也可以居住的很舒适,整体户型中两个卫生间的设计符合了居住生活中的便捷,厨房和餐厅的位置安排也符合居住要求 6686官方版app


        客厅:


    2.jpg


        现代的布艺沙发和简单的背景墙简约时尚,卡通的小人使得客厅充满了现代感 6686官方版app


        餐厅:


        合理的利用了两个窗户中间的位置,吧台风格的桌子和整体装修风格达到了匹配 6686官方版app,餐桌两边都具有窗户,用餐同时可以保持空气流通。


        卧室:


    5.jpg


        简单的床铺和现代的画艺融合为一体 6686官方版app,左右两个床头柜不仅仅不使得卧室拥挤,无论住在床铺的哪一段生活起居都足够方便。


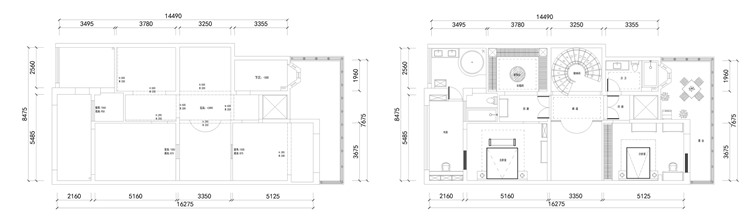
    招商公园1872小区350㎡大三层现代简约别墅户型解析
    大平层
    "6686官方版app" 350m²
    6686官方版app - 现代简约

        案例简介:艺术源于生活,而生活是艺术的来源,在生活中追求艺术之美的存在,房屋设计选择现代简约的格式不仅仅是简单 6686官方版app,而是房屋风格具有一种独特的时尚感,别墅上下一共三层,每一层都保持现代简约的格调,在保障大气的同时也不会失去时代感,对于多子的家庭而言,也不会出现房屋选择方面的困难。


        户型解析:



        招商公园1872小区这套大三层的别墅是350平方米,别墅分为负一层和地面两层 6686官方版app,每一层户型设计都方正规整,卧室卫生间厨房设计应有尽有,上下三层空间很大,对于多子家庭非常合适,不仅仅可以满足每一个人居住的空间要求,还可以保持在一个别墅内部生活的情谊。


        玄关:


    4.jpg


        正方形的玄关宽敞大方,吊灯吊灯的椭圆形设计和地面瓷砖图案相辅相成 6686官方版app,朴素的灰色确保了居住的生活宁静。


        客厅:


    5.jpg



        用心的吊顶设计凸显了独特性以及房屋举架的高度,灰色和红色椅子的搭配不仅仅很时尚,闲暇在客厅休息能够感受到浓浓的时尚感。


        餐厅:


    6.jpg


        和客厅连接的餐厅虽然呈现长方形,摆放一张六人桌也是空间足够的。餐厅举架超级高,用餐完全不会感受到任何的压迫感。


        卧室:


    151627320137.jpg


        卧室不仅仅满足了居住的舒适度,卧室内部都搭配了学习放松空间,即便是一整天窝在卧室里也不会感觉无聊。


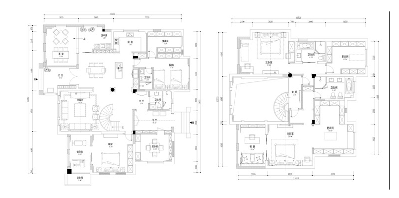
    F天下300㎡五居室美式古典风格家居户型解析
    大平层
    "6686官方版app" 300m²
    美式

       案例简介:美式古典风格是众多风格中的一种,在传承欧式文化的基础上结合了美国自身文化的特点,而形成的自己更格,其实它的风格是一种混合风格。


        1 借鉴了古典主义和新古典主义风格的元素和特点是美式古典风格的一大亮点。美式古典风格装修材质主要为坚硬、华丽的材质,亮色较少,窗帘和壁纸也多选用柔和色彩。营造温馨的古典气质。摒弃了欧式的富丽堂皇的气质,转而更注重家居整体的实用和协调。


        2 美式古典风格装修更考虑每个空间的多样用处。与客厅空间相比,美式古典风格起居室较低矮平和,起居室选材也多采用舒适柔软的材质,更注重家庭氛围。起居室内也多配以电视等娱乐用品,可以想象在这一空间中孩子的欢笑,电视声音,谈话声在这一空间中的其乐融融。


        3 美式古典风格装修中的家具也很有特色,主色调是黑、暗红、褐色及深色的美式古典风格家具色泽较深,在家中更显稳重优雅。其卧床有高柱和帐幔,曼妙的床幔可以看出美式古典风格的优雅美。而美国古典风格的椅子凸显了“安娜女王”的特点而美式家具的雕刻在做旧、虫眼、浸蚀等的点缀下,尽显美式古典之美。


        户型解析:


    1.jpg


        F天下五居室美式古典风格的面积是300平方米,户型各个朝向的窗户都具备,在通风性和采光性不需要担心。具体卧室和客厅的位置分布很合理,既保障了卧室的私密性,又保障了客厅的休闲性。由于具体的面积在300平米,客厅和卧式的空间都是比较宽敞的。在卫生间的数量也是很充足的,居住的时候每个人都可以用于自己足够的生活空间。


        玄关:


    2.jpg


        柜子采取顶墙设计方式可以装入很多物品,地砖的地面有利于卫生打理,玄关内部的椅子确保了外出打理的便利。


        客厅:



        沙发和地毯都经过精心挑选,传统美式风格低调奢华,缺点便是客厅的电视墙略微狭窄,观看电视些许不舒适。


        餐厅:


    5.jpg


        餐厅整体呈现的是长方形的状态,空间很大,餐厅的窗户不仅仅满足了通风要求,还可以确保餐厅内部的空气质量。美式古典风格的餐桌椅和吊顶相映成彰,彰显出来餐厅的高贵舒适。


        卧室:




        主卧次卧客卧各具风格,吊顶吊灯和床铺融为一体,每一个卧室都能够带来居住的高端感以及舒适度。


        阳台:


    QQ截图20220220121654.jpg


        露天阳台保障了空气流通,阳台的光线很充足,搭配绿植使得阳台变得生机勃勃。


    在施工地
    • 开工
    • 前期
    • 中期
    • 后期
    • 竣工
    6686官方版app - 预约设计师
    海量行家, 抢订6686注册设计服务
    每日前20名申请用户, 获3D装修设计图
    预约设计师
    姓名*
    楼盘*
    电话*
    *为了您的权益, 您的隐私将严格保密
    推荐相关案例
    6686官方版app - 6686注册获取同款设计方案
    姓名*
    楼盘*
    电话*
    *为了您的权益, 您的隐私将严格保密
    预约成功
    您已报名成功, 稍后会有客服人员联系您。 您的隐私将被严格保密。
    关注二维码了解6686体育装修知识
    "6686官方版app" 6686登录我们
    澳华历程
    官方微博
    联系我们
    装修咨询电话 : 027-82411111
    售后服务电话 : 027-82866788
    公司地址 : 6686平台市江岸区澳门路232号金冠大厦
    6686登录我们 (6686官方版app)
    友情链接 :
      66866686官方版app下载官方版-6686官方版app下载2025最新 页面版权所有 jingyu-design.cn

      算一算,您家装修需要花多少钱?

      知精准报价 避装修深坑

      686官方版app - 01/03

      选择您喜欢的风格 (6686官方版app)

      • 现代轻奢

      • 现代美式

      • 北欧

      • 新中式

      • 欧式

      • 其他

      算一算,您家装修要花多少钱?

      知精准报价 避装修深坑 (6686官方版app)

      02/03

      选择房屋面积区间

      • 80-100㎡
      • 100-140㎡
      • 140-200㎡
      • 200-300㎡
      • 300㎡以上

      "6686官方版app" 03/03

      您的户型

      • 两居室

      • 三居室

      • 四居室

      • 五居室

      • 六居室

      "6686官方版app" 算一算,您家装修要花多少钱?

      知精准报价 避装修深坑

      0%

      稍等片刻,您的报价正在生中......

      算一算,您家装修要花多少钱?

      知精准报价 避装修深坑

      您的完整报价已经生成 (6686官方版app)

      报名成功享抢订优惠名额

      每日仅限前10名用户