"6686官方版app" 24小时咨询电话
027-82411111
首页 > 找设计师 > 案例赏析设计师户型解析
户型解析 (6686官方版app)
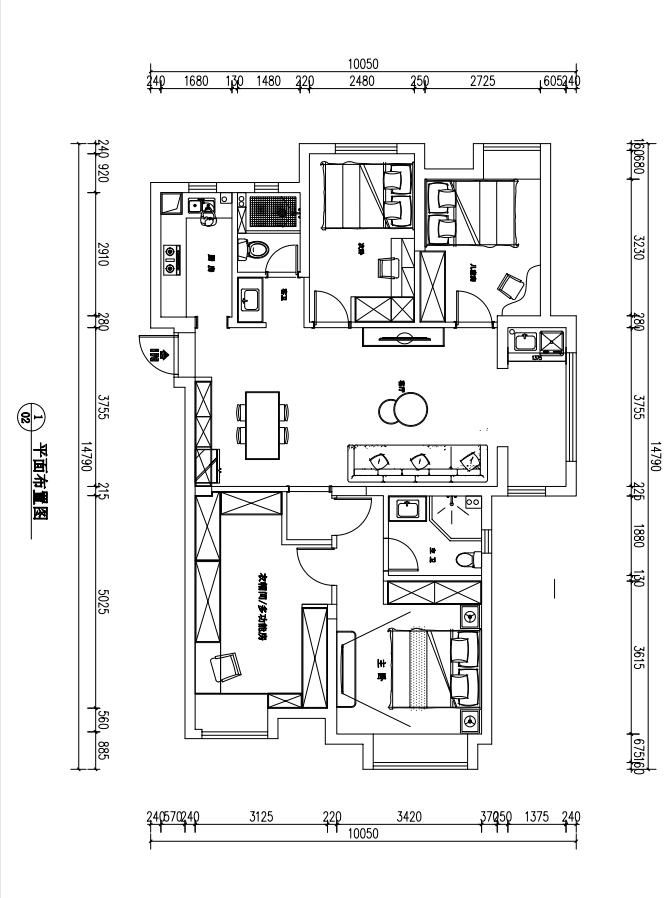
湖大琴园小区120㎡三居室简欧时尚雅居户型解析
三居室
120m²
简欧风

    案例介绍:本案例的主人为一位退休老人 6686官方版app,他对家的感受就是要足够温馨,同时这位老人偏爱传统的欧式文化,希望在家装设计的时候能够融入一些欧式元素,让空间更显艺术氛围,根据业主的诉求,设计师选用了相对比较稳妥的简欧装修风格,以避免大量“浓墨重彩”的欧式元素造成视觉压迫感,同时还能够满足老人家的审美需求。


    户型解析


1.jpg


    这套位于湖大琴园小区的三居室小屋的面积约为120㎡ 6686官方版app,户型结构相对比较紧凑,且存在着一些难以设计到的零碎角落,因此设计师在进行设计的时候选择减少空间的造型设计,同时借助各类镂空设计来提升各个空间的延伸感,而零碎的小角落则依照户型走向放置家具或者是打造成实用性小空间,以提升空间的利用率。


    玄关:


2.jpg


    入户玄关的面积不大,设计师借用一个白色的收纳柜与一幅欧式风情的挂画就完成该区域的软装 6686官方版app,简约而又不失实用性与格调美。


    客厅:


3.jpg


4.jpg


    客厅区域选用了欧式风情浓烈的碎花壁画,灯饰作为装饰点缀,以营造一种复古典雅而又小清新的浪漫情调,而深棕色的皮质沙发,则让整个客厅区域看起来更加庄严大气 6686官方版app


    餐厅:


5.jpg


    黄暖色的碎花壁纸奠定了空间的柔和温馨格调,而带有雕花处理的镂空艺术墙除了能够让就餐区域与其他功能空间分隔开以外 6686官方版app,还有效提升了空间的清新浪漫美。


    厨房:


6.jpg


    大面积的白色搭配上小面积的黑色,简约耐看的同时能够起到视觉放大空间的作用,金属质的抽油烟机则与空间的其他元素形成碰撞 6686官方版app,让空间多一抹现代韵味。


    卧室:


151627320137.jpg


    深色系的元素虽然多给人深沉感,但是却能够缓解视觉疲劳,能够让人更加放松身心,因此本案例的卧室选择了以深褐色作为主基调色 6686官方版app,营造一种夜幕降临的深沉气息,避免空间过于亮堂进而影响居住者的睡眠质量。


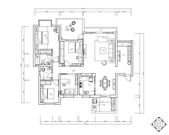
华润翡翠城140㎡四居室现代轻奢优雅住宅户型解析
四居室
"6686官方版app" 150m²
6686官方版app - 轻奢风

   案例简介:本案例的业主是一对年轻的夫妇,两个人都喜欢实用简单的装修风格,于是 6686官方版app,设计师按照业主的想法与生活习惯选择了强调简约之美的现代轻奢风作为软装主基调,同时借助材料的质感起到装饰作用,以提升室内环境的质感与格调感。


    户型解析:




    华润翡翠城这套四居室的建筑面积为140㎡,原有的户型结构已经进行了基本的功能分区,因此设计师没有进行墙体大大改动,由于主卧区域的面积较大,因此设计师分隔出一个单独的区域打造成衣帽间,在提升空间利用率的同时避免卧室面积太大带来空旷感,装修风格上,设计师则挑选了相对比较简约而又不失品味格调感的现代轻奢风 6686官方版app,以满足业主夫妇的审美需求。


    客厅:


客厅.jpg

57285ab1ced0389635404c6f28df21f.jpg

    客厅使用简约的白色作为主基调色,为整体洁净清新的风格奠定基调,白色大理石茶几搭配上柔软布艺沙发,营造不同的雅致格调 6686官方版app


    卧室:






    充满童真韵味的床头墙设计搭配上粉嫩的床体设计,勾勒出甜美优雅的少女氛围。


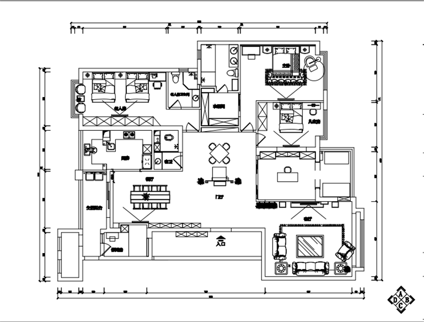
东方世家136㎡三居室欧式品质家居户型解析
"6686官方版app" 三居室
6686官方版app - 136m²
欧式风

    案例介绍:本案业主是三口之家,业主是一家企业老板,太太全职在家照顾刚上初二的女儿,在风格选择上,业主喜欢欧式风格,希望家里多一些温馨浪漫的感觉,不仅要设计得上档次,格调大气,也要能满足家人的生活需求,营造出意蕴丰富,品质舒适的欧式感。


    户型解析


1.jpg


    东方世家这套136㎡三居室整体方正,从平面图上可以看到,入户玄关私密性好,客厅与餐厅开放式设计,厨房靠邻餐厅,方便传递菜品,卧室集中分布,主卧附带卫生间,次卧前往公卫的距离不长,居住舒适度高,室内动线流程,无需进行二次优化。


    餐厅


2.jpg


    黄色的活力感充斥着整个餐厅,方形吊顶配以多层次照明的设计方式,令餐厅空间更有层次感,黄色皮质餐椅与空间氛围契合,营造出精致的用餐氛围。


    卧室


3.jpg


    临窗处增设了榻榻米,并利用右侧墙体设计出收纳空间,令空间立面选择更为整洁。白色衣柜层次感强,底部专门预留鞋架,并在一侧放置了换鞋凳,方便主人日常使用。


紫崧枫林上城165㎡四居室现代简约家居户型解析
"6686官方版app" 四居室
165m²
现代简约

    案例简介:


    现代简约风是利用最少的设计元素、最简约的色彩来营造一种带有清爽气息的时尚美,而本案例的业主作为时尚都市丽人,就偏爱这种简约到极致的家居风格,所以设计师在进行装修设计的时候,通过相对比较含蓄的设计来营造空间的氛围感,同时利用材料本身的纹理与色彩进行空间装饰,以达到以少胜多的效果。


    户型解析:


1.jpg


    这套位于紫崧枫林上城的四居室面积约为165㎡,业主对空间原户型相对比较满意,因此在与设计师交流时希望设计师能够在原有结构基础上进行装修设计,以节约一定的装修花销。而由于空间的部分拐角处存在犄角,因此需要设计师对空间进行一定的再设计分配,以提升空间利用率。由于厨房区域面积并不算大,所以设计师将该区域的设计重点放在增加收纳上,利用各类储物柜来提升厨房空间的整洁感与大气感。


    客厅:


2.jpg


    客厅区域的用色简约而又素雅,大面积的白色点缀上少量的灰棕色,强调一种超凡脱俗的洁净美。而一幅艺术感十足的简约壁画则为让空间的艺术气息更为浓厚。


    餐厅:


3.jpg


    由于就餐区域面积相对比较狭小,因此设计师在进行该区域设计的时候与厨房进行了一个软隔断,仅通过地板材质的变化来隔断空间,以提升就餐区域的宽敞度。


    厨房:


4.jpg


    该厨房的设计亮点在于使用大量收纳设计的同时而又不显得刻意,灰色悬挂式储物柜、黑白配色一体式橱柜,黑白灰的经典配色让整个厨房空间简约而又高级。


广电兰亭珑府175㎡四居室新中式清新雅居户型解析
四居室
175m²
中式

    案例简介:


    对于多子家庭来说,175㎡的房屋其实并不算大,因为需要预留出较多的休憩空间,且需要满足6686体育家庭成员的使用需求。再者,业主所青睐的新中式装修风格对于空间的面积也有着一定的要求,因此该房屋的设计难点就在于如何将不够宽敞的房屋打造出新中式浑厚大气美。设计师在进行设计时,在空间的规划设计上做了一定的设计,以避免过多隔断破坏新中式风所特有的大气感与灵动美。


    户型解析:


1.jpg


    广电兰亭珑府的这套175㎡的四居室房屋其实户型相对比较合理,并没有出现各种难以利用设计的角落,因此空间的设计重点将在如何满足多子家庭的起居使用需求与如何呈现新中式风的大气美。设计师通过利用一些带有中式风情的元素进行空间装饰点缀,强调中式所特有的韵味美,同时利用多个嵌入式设计来提升空间的利用率,避免房屋看起来过于的压抑、局促。


    玄关:


2.jpg


    新中式的玄关6686体育强调的是一种韵味而非实用性,因此设计师在对玄关处进行设计的时候,仅使用了一面不大的装饰墙,同时利用中式艺术画的点缀,来营造一种入门处即可观赏的优雅。


    客厅:


3.jpg


    客厅区域使用了非常经典的新中式配色,大面积的灰色点缀上带有浑厚气息的深棕色木质材料,一种优雅的韵味之美展露无疑。蓝色的沙发则让空间多了一抹现代时尚气息。


    餐厅:


4.jpg


    餐厅空间则是借助材料本身的纹理进行空间装饰,大理石瓷砖的灰色暗纹、木质墙面的天然纹理,都很好的会就餐区域注入了精致典雅美。


    卧室:


5.jpg


6.jpg


151627320137.jpg


    卧室使用了最为常见的中式设计手法——对称,通过对称的床头设计来营造一种端庄典雅的氛围,复古的台灯则让空间的复古中式气息能够得到更好的体现。


    书房:


151638180949.jpg


    带有几何图形的艺术墙面搭配上简约的空间设计,为书房空间奠定了一股优雅宁静的氛围。而色彩较为艳丽的灰蓝色地毯,则让空间多了一抹明媚的韵味。


    卫生间:


151640430473.jpg


    卫生间空间借助透明的玻璃进行干湿分离,以避免原本就不大的卫生间看起来过于压抑。一颗小小的橘色盆栽,则让卫生间更显清新典雅。


中海琴台华府140㎡四居室复古欧式典雅别院户型解析
"6686官方版app" 四居室
"6686官方版app" 140m²
"6686官方版app" 欧式风

    案例简介:


    业主是90后年轻夫妇,偏爱复古典雅的空间效果。因此设计师在对空间进行规划设计的时候,选用了典雅而又高级的欧式风格,在房屋格局的划分上以顺着户型走为主,避免空间出现割裂感与违和感。而细节处理上,则使用了传统的欧式雕花、配色等元素,搭配上色彩浓郁的欧式风情油画,一种典雅高贵的复古欧式贵族号气息呼之欲出。


    户型分析:


1.jpg


2.jpg


    中海琴台华府的这套140㎡的四居室房屋,虽然房屋面积足够大,但是由于划分了较多的空间,因此其实整体空间相对比较局促,想要很好的展现欧式的大气华贵美也相对比较困难。设计师利用大面积的落地窗将自然光引入室内,同时借用室外景色装饰点缀客厅区域,从视觉效果上提升了空间的宽敞度。隔而不隔的软隔断设计,则让原本局促的空间看起来更加的通透灵动。


    客厅1:


3.jpg


    暖黄色可以说是欧式装修风格中最为常见的用色之一,而该客厅区域就使用了暖黄色与灰白色的搭配,来营造一种朦胧柔和气息,几何图形设计的大理石背景墙,则让空间增添了精致气息。


    客厅2:


4.jpg


    客厅沙发区域选用了带有暗纹雕花处理的墙纸作为墙面装饰点缀,既不会过于突兀显眼,又能够在无形之中突出空间的精致华贵气息。曲线造型的藕粉色食肉沙发搭配上色彩鲜艳的欧式油画,让空间的欧式贵族气息展露无疑。


案例赏析
首席设计师
从业年限 : 1993
擅长风格 : 现代简约,新中式,轻奢,日式,北欧,法式,欧式,美式,其他
设计案例 : 保利中央公馆、复地东湖国际、汉口城市广场、华润置地橡树湾、九龙仓月玺、尚湖熙园、观澜国际、华润置地中央公园、东湖壹号、华润悦府
预约数量 : 168
找TA设计
算一算我家装修需要多少钱
    • 张女士
      132****178
      200m²
    • 成先生
      134****4856
      83m²
    • 董先生
      137****2569
      95m²
    • 成先生
      133****7485
      130m²
    • 李先生
      150****4475
      220m²
    • 张先生
      139****5050
      187m²
    • 王女士
      178****4563
      168m²
    "6686官方版app" 预约设计师
    姓名*
    楼盘*
    电话*
    *为了您的权益, 您的隐私将严格保密
    "6686官方版app" 预约成功
    您已报名成功, 稍后会有客服人员联系您。 您的隐私将被严格保密。
    关注二维码了解6686体育装修知识
    联系我们
    装修咨询电话 : 027-82411111
    "6686官方版app" 售后服务电话 : 027-82866788
    公司地址 : 6686平台市江岸区澳门路232号金冠大厦
    6686登录我们
    "6686官方版app" 友情链接 :
      66866686官方版app下载官方版-6686官方版app下载2025最新 页面版权所有 jingyu-design.cn

      "6686官方版app" 算一算,您家装修需要花多少钱?

      知精准报价 避装修深坑

      01/03

      选择您喜欢的风格 (6686官方版app)

      • 现代轻奢

      • 现代美式

      • 北欧

      • 新中式

      • 欧式

      • 其他

      算一算,您家装修要花多少钱?

      知精准报价 避装修深坑

      686官方版app - 02/03

      选择房屋面积区间

      • 80-100㎡
      • 100-140㎡
      • 140-200㎡
      • 200-300㎡
      • 300㎡以上

      03/03 (6686官方版app)

      您的户型

      • 两居室

      • 三居室

      • 四居室

      • 五居室

      • 六居室

      686官方版app - 算一算,您家装修要花多少钱?

      知精准报价 避装修深坑

      0%

      稍等片刻,您的报价正在生中......

      算一算,您家装修要花多少钱?

      知精准报价 避装修深坑

      "6686官方版app" 您的完整报价已经生成

      报名成功享抢订优惠名额

      每日仅限前10名用户