24小时咨询电话
027-82411111
首页 > 找设计师 > 张涛设计师户型解析
6686官方版app - 户型解析
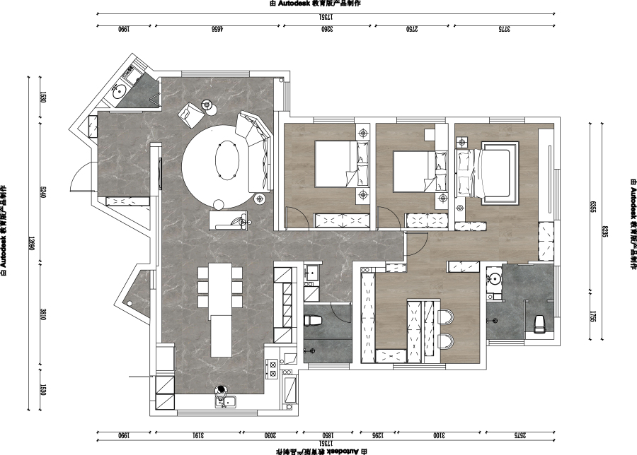
西斯莱公馆 200㎡ 三居室现代意式极简艺术家居户型解析
"6686官方版app" 大平层
6686官方版app - 200m²
"6686官方版app" 现代意式

    案例简介:本装修案例为现代意式极简风格,设计以业主的品味,审美以及生活习惯为考虑依据,空间整体以素色系色彩为主基调色,把一些复杂的元素都去除,保留必要元素加以少量装饰,打破繁琐而又不实用的设计 6686官方版app,帮助业主享受生活本质,各类线条的穿插使用,则为空间的结构感,层次感增添了一抹时尚氛围。


    户型解析:



    西斯莱公馆的这套房屋面积约为200㎡,空间户型上存在着一个斜坡角度,该斜坡导致整个家居空间中出现一个三角形角落,如何对这块区域进行合理的规划设计,在满足使用需求的前提下不会显得违和是本次设计难点,而设计师将该快区域直接融入卧室区域,然后借助斜坡打造一个艺术感阳台 6686官方版app,提升卧室区域通风透气效果的同时,有效化解了空间犄角带来的局限性。


    客厅:




    客厅区域借助线条的搭配与组合来形成装饰,背景墙处的几何切割,曲线型的沙发等,为整个空间整洁而又不失艺术感 6686官方版app


    餐厅:


客餐厅.jpg


    为保障空间整体的衔接感,就餐区域选用了与会客区域一致的配色与桌椅,通过座椅的体量与摆放进行空间区分 6686官方版app


    卧室:


主卧大套间.jpg

主卧 z.jpg


    相比于其他功能空间,卧室区域使用了较多的木质材料 6686官方版app,通过木材本身的温润质感提升空间温馨舒适氛围。


    卫生间:



卫生间1z.jpg


    大理石材质清冷而又高级,搭配上大面积简约方形镜子,大气耐看而又实用 6686官方版app


金地自在城 136㎡ 四居室现代简约温馨小家户型解析
四居室
136m²
"6686官方版app" 现代简约

    案例简介:本案例的业主作为一个年轻的创业者,平常工作带给他太多压力,因此他希望能够拥有一个舒适的休憩空间,让自己能够得到真真正正的放松,因此设计师在进行空间设计时,选用了一些相对比较简约而又不易过时的元素 6686官方版app,同时借用色彩的搭配来强调整个家居空间的温馨感,为了能够让居住者能够更好的得到心灵休憩,设计师将空间中的阳台区域放大打造成一个休闲区,可供居住者观赏室外美景,放松身心。


    户型解析:




    金地自在城这套136㎡的四居室住宅虽然建筑面积不小,但是由于空间中独立的空间比较多,因此各个功能区域的占地面积其实并不大 6686官方版app,因此设计师在对空间进行规划设计的时候就需要优先考虑从视觉上起到扩大空间的作用,避免造成视觉压迫感,进而影响起居质量,而双阳台设计,则在保障南北通透的情况下有效提升了室内的视觉宽敞度。


    客厅:




    背景墙与沙发颜色上的呼应保障了整个空间的衔接感,蓝色丝绒窗帘,几何造型灯饰,则增添了空间的摩登气息 6686官方版app


    餐厅:




    干净的灰色墙面搭配上黑色餐桌,简单而又不失个性感,同时为空间增添了沉稳气息 6686官方版app


    卧室:


卧室.jpg

    对称式背景墙设计搭配上婚纱照,温馨而又不失高级感。灰色创两则与床头柜色彩相呼应,有效提升了整个室内空间的主题感。


复地东湖国际7期2-1 133㎡ 新中式+港式风三居室个性...
三居室
6686官方版app - 133m²
新中式 (6686官方版app)

    案例简介:本案例的主人公是一位超级“奶爸”,平时忙于工作的他希望家居空间中能够多一些童真感与亲子互动空间,以满足孩子健康成长需求。而由于工作需求,业主还需要经常在家办公,因此想要一块安静且独立的区域。设计师在充分了解业主需求的前提下选择了新中式风作为空间主装修风格,搭配以港式风,强调空间个性感。同时,借助各类明亮的色彩打造儿童房与书房,以满足亲子互动及在家办公需求。


  户型解析:


酷家乐装修网-复地东湖国际7期-户型图133.jpg


  复地东湖国际7期这套三居室住宅的面积约为133㎡,原有的户型结构已经能够满足业主基本使用需求,因此设计师没有在空间规划上进行再改动。由于房屋走廊过道相对比较狭小,因此设计师借用色彩的搭配使用从视觉上起到扩大空间的作用。儿童房外部区域则与客厅阳台打通,改造成为一个大面积休憩空间,以满足业主及家人休憩、观赏需求。


    客厅:



    嵌入式的电视背景墙点缀上风格青花瓷花瓶,让空间中流淌着优雅古韵。


    餐厅:




    大面积深褐色的木质地板搭配上清新挂画,让中式风所特有的典雅韵味得到很好的表达。


    厨房:


厨房1.jpg

    为了便于打扫,厨房区域选用了各类素色而又耐脏的瓷砖,同时搭配上金属质感收纳,简约而又不失时尚感。


    书房:

书房1.jpg

    简约白色的主基调色搭配上亮色地贴,营造明快清新氛围,满足业主办公需求的同时还可进行亲子互动。


    卧室:



    简单的线条搭配耐看而又高级,窗帘与床具之间的颜色呼应则让空间更具和谐美。


绿地国际理想城260㎡复式轻奢浪漫婚房户型解析
686官方版app - LOFT
260m² (6686官方版app)
"6686官方版app" 轻奢风

    案例介绍:


    在所有的装修风格中,现代轻奢风最符合我跟爱人的审美,也因此在新房的装修设计过程中我们一再跟设计师强调了我们的需求跟审美。在户型上,房屋面积不小,设计难度较大,我们希望的是能够让空间合理利用的同时呈现轻奢的小资格调感。而在色彩的搭配选择上,我们偏向于选择素雅洁净的配色,希望能够用最简约的色彩打造出典雅清新浪漫而又不落俗套的婚房。


    户型解析:


1.jpg


    这是绿地国际理想城中一套260㎡的大户型复式房,空间面积较大,如果没有合理的进行规划设计很容易出现空洞感。 不过该房屋户型结构相对比较四平八稳,因此在进行规划设计的时候只需充分考虑需求即可,无需过分进行户型的调整。为提升空间的私密度,在入户处利用半透明玻璃与绿植作玄关,即可提升空间私密感,又能够让整个家居环境看起来更加清新典雅。


    玄关:


2.jpg


    玄关处使用了经典的原木色与白色的搭配,从入门处即开始营造一种小清新的自然氛围感。半透明的玻璃隔断既可以保障室内的私密度,又不会显得过于生硬突兀,很好的提升了空间的通透感。


    客厅:


3.jpg


    整个客厅区域医简约的灰白配色为主,奠定素雅洁净的空间氛围感。现代感十足的华丽吊灯,则为整个家居空间注入了轻奢贵气美。玻璃及金属材质的灯饰与柔软的丝绒材质形成对比,让空间更具层次感与结构美。


    餐厅:


4.jpg


    餐厅区域使用了与客厅空间一致的配色,以保障不同功能空间具有一定的衔接感。符合人体功能学的曲线靠背桌椅让区域多了一抹现代美学感。


    厨房:


5.jpg


    大面积的灰色点缀上黑白相间的橱柜,简约而又不失高级设计感。大面积的透明窗户,巧妙的将室外景色“借”入厨房空间,让该区域更具时尚气息。


华润悦府210㎡四居室轻奢品质家居户型解析
四居室
6686官方版app - 210m²
"6686官方版app" 轻奢

    案例介绍


    业主对家的定义:家里有两个孩子,一个上四年级,一个上初一,210㎡四房户型基本够我们使用,主卧的原始面积不够大,虽然自带卫浴间,但居住起来有些不够舒展,希望主卧能有一个更衣室,令空间看上去更开阔,另外,客厅有一些零碎的角落不知道如何调整,希望设计师利用这些角落,尽可能令房间变得更舒展。风格上,我们希望呈现出的是有品质,能凸显生活品味的设计方案。


    户型解析


1.jpg


    这是一套位于华润悦府的210m?的四房户型,虽设有玄关,但进门能看到客厅,空间私密性不是很好,客厅空间零碎部分较多,功能衔接上不是很舒服,为了提高客厅利用率,玄关处增加了隔断,并将隔断设计为电视墙,提升了客厅的衔接感,零碎角落面积做了分割,以保证客厅空间的完整与舒适。业主提到的衣帽间也做出了独立设计,并与主卧进行衔接,令主卧生活更加舒适开阔。


    玄关

2.jpg


    入户右边增加了定制玄关柜,中上部分设计为隐性柜面,下部置空并增设了灯带,便于收纳展示装饰物品,中部增加了墙体隔断,细节处呈现出轻奢质感。


    客厅


3.jpg


    客厅空间以白色和灰色为主,无主灯的空间设计令视觉更为宽敞明亮,为提升空间收纳,左侧背景墙中设计了收纳柜,其中还增置了灯带,搭配灰色沙发,整个空间更为优雅。


    卧室


4.jpg


    米色与白色护墙板相互碰撞,在灯光的映射下营造出舒适温馨的视觉观感,褐色衣柜立面干净,并作为半隔断存在,增添了卧室空间的层次感。


张涛
设计总监
从业年限 : 2007
擅长风格 : 现代简约,轻奢,新中式,其他
设计案例 : 世茂锦绣长江、保利十二橡树、华发外滩首府、华侨城、琨瑜府、绿地国际理想城、月亮湾
预约数量 : 156
找TA设计
算一算我家装修需要多少钱
    • 张女士
      132****178
      200m²
    • 成先生
      134****4856
      83m²
    • 董先生
      137****2569
      95m²
    • 成先生
      133****7485
      130m²
    • 李先生
      150****4475
      220m²
    • 张先生
      139****5050
      187m²
    • 王女士
      178****4563
      168m²
    预约设计师
    姓名*
    楼盘*
    电话*
    *为了您的权益, 您的隐私将严格保密
    预约成功
    您已报名成功, 稍后会有客服人员联系您。 您的隐私将被严格保密。
    关注二维码了解6686体育装修知识
    6686官方版app - 联系我们
    装修咨询电话 : 686官方版app - 027-82411111
    售后服务电话 : 027-82866788
    公司地址 : 6686平台市江岸区澳门路232号金冠大厦
    6686官方版app - 6686登录我们
    友情链接 :
      66866686官方版app下载官方版-6686官方版app下载2025最新 页面版权所有 jingyu-design.cn

      "6686官方版app" 算一算,您家装修需要花多少钱?

      知精准报价 避装修深坑

      "6686官方版app" 01/03

      选择您喜欢的风格

      • 现代轻奢

      • 现代美式

      • 北欧

      • 新中式

      • 欧式

      • 其他

      算一算,您家装修要花多少钱?

      知精准报价 避装修深坑

      02/03

      选择房屋面积区间

      • 80-100㎡
      • 100-140㎡
      • 140-200㎡
      • 200-300㎡
      • 300㎡以上

      03/03 (6686官方版app)

      您的户型

      • 两居室

      • 三居室

      • 四居室

      • 五居室

      • 六居室

      "6686官方版app" 算一算,您家装修要花多少钱?

      知精准报价 避装修深坑

      0%

      稍等片刻,您的报价正在生中......

      算一算,您家装修要花多少钱?

      知精准报价 避装修深坑

      您的完整报价已经生成

      报名成功享抢订优惠名额

      每日仅限前10名用户