24小时咨询电话
027-82411111
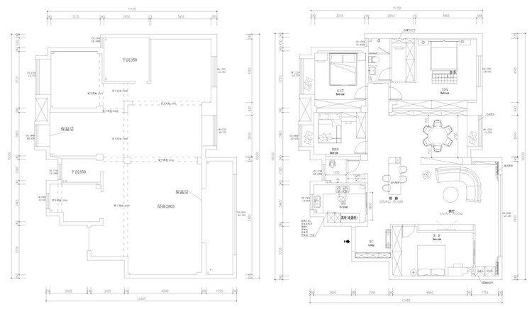
当前位置 : 首页 > 户型解析 > 湾郡北岸公馆169㎡四居室现代简约住宅户型解析
6686官方版app - 湾郡北岸公馆169㎡四居室现代简约住宅户型解析
"6686官方版app" 686官方版app - 发布时间 : 2022-03-16 11:19
"6686官方版app" 查看数 :

    案例简介:没有繁琐及浮夸的表面装饰处理,有的只是生活中最常运用最为朴素的语言,以及那些精挑细选,用来点缀多彩生活的家具与摆设,简单的局部弧线点缀让整个家增添一份设计感,一副清爽且富有质感的构图便形成了 6686官方版app,现代简约的风格不仅仅满足年轻人的需求,对于多子家庭的孩子也会感受到家里的时尚。


    户型解析:


1.jpg


    湾郡北岸公馆四居室现代简约住宅的面积则是169平方米,房屋户型整体规整,四居室的分布合理,房屋的客厅,餐厅面积以及方正感都是很好地 6686官方版app,房屋的卫生间以及厨房都是具有窗户的,居住的卫生性也有效的提升,并且四居室的房屋在整体的面积方面够用,每一个人都可以找到属于自己的空间。


    客厅:



    独特线条的背景墙和现代的家具搭配很时尚 6686官方版app,浅色调的客厅温馨舒适。


    餐厅:


4.jpg


    简约的圆形桌满足了多子家庭的需求 6686官方版app,透过窗户的阳光令用餐更加愉快。


    卧室:


5.jpg


    灰色条纹的搭配感觉很忽视 6686官方版app,休息和办公结合为一体,满足了工作和休息的需要。


(6686官方版app)
6686官方版app -
"6686官方版app"
"6686官方版app" 预约设计师
海量行家, 抢订6686注册设计服务
每日前20名申请用户, 获3D装修设计图
推荐相关案例
6686注册获取同款设计方案 (6686官方版app)
姓名*
楼盘*
电话*
*为了您的权益, 您的隐私将严格保密
6686官方版app - 预约成功
您已报名成功, 稍后会有客服人员联系您。 您的隐私将被严格保密。
关注二维码了解6686体育装修知识
6686官方版app - 6686登录我们
澳华历程
官方微博
"6686官方版app" 联系我们
装修咨询电话 : 027-82411111 (6686官方版app)
售后服务电话 : 027-82866788
6686官方版app - 公司地址 : 6686平台市江岸区澳门路232号金冠大厦
"6686官方版app" 6686登录我们
友情链接 : (6686官方版app)
    66866686官方版app下载官方版-6686官方版app下载2025最新 页面版权所有 jingyu-design.cn

    算一算,您家装修需要花多少钱? (6686官方版app)

    知精准报价 避装修深坑

    "6686官方版app" 01/03

    选择您喜欢的风格

    • 现代轻奢

    • 现代美式

    • 北欧

    • 新中式

    • 欧式

    • 其他

    6686官方版app - 算一算,您家装修要花多少钱?

    知精准报价 避装修深坑

    02/03

    选择房屋面积区间

    • 80-100㎡
    • 100-140㎡
    • 140-200㎡
    • 200-300㎡
    • 300㎡以上

    "6686官方版app" 03/03

    您的户型

    • 两居室

    • 三居室

    • 四居室

    • 五居室

    • 六居室

    算一算,您家装修要花多少钱?

    知精准报价 避装修深坑

    0%

    稍等片刻,您的报价正在生中......

    "6686官方版app" 算一算,您家装修要花多少钱?

    知精准报价 避装修深坑

    您的完整报价已经生成

    报名成功享抢订优惠名额

    每日仅限前10名用户