24小时咨询电话
027-82411111
当前位置 : 首页 > 户型解析 > 航天双城168㎡四居室轻奢住宅户型解析
"6686官方版app" 航天双城168㎡四居室轻奢住宅户型解析
发布时间 : 2022-03-16 11:15
查看数 :

    案例简介:在设计整体选材上选用质感的材料——全抛釉地砖,多层地板,白色木门,墙面墙布,材质间相互融合对比以彰显整体空间的贵气感 6686官方版app,更加满足其人文的功能需求,在布局上把空间合理化,让空间成为了设计的主导,设计重视简洁,让整体更加和谐,温暖舒适,让业主在安静,遐想的空间小憩,更加关照人的内心世界。


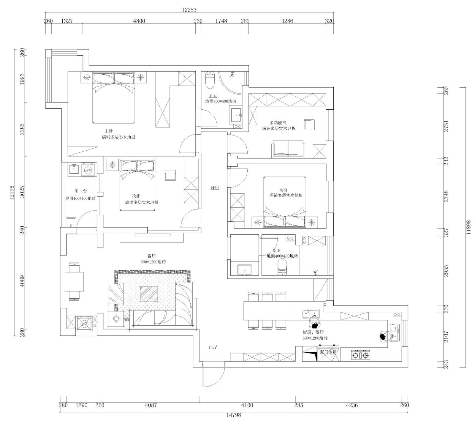
    户型解析:


1.jpg

    航天双城轻奢住宅的面积是168平方米,房屋的整体户型很方正,房屋做到了四面通风的设计状态,整体室内的阳光以及通风情况都是很不错的 6686官方版app,两个卫生间的设计满足了多子家庭的使用状态,即便是每一个人都着急外出也不会出现卫生间不够用的尴尬,而且客厅的阳台又开拓了一片新天地,具有不同的居住感受。


    客厅:


2.jpg


    灰色的格调彰显了整体的高贵感,椅子和茶几都可以感受到轻奢的时尚体验 6686官方版app


    餐厅:




    白色的桌面和灰色的椅子别具一格 6686官方版app,墙面的简单设计令餐厅看起来非常舒适,餐厅同时还满足了入户的储物需要。


    卧室:




    卧室和工作融合成为一体 6686官方版app,卧室的飘窗以及床铺能够令人整个人感觉很放松。


预约设计师
海量行家, 抢订6686注册设计服务
每日前20名申请用户, 获3D装修设计图
"6686官方版app" 推荐相关案例
6686注册获取同款设计方案
姓名*
楼盘*
电话*
*为了您的权益, 您的隐私将严格保密
6686官方版app - 预约成功
您已报名成功, 稍后会有客服人员联系您。 您的隐私将被严格保密。
关注二维码了解6686体育装修知识
6686官方版app - 联系我们
"6686官方版app" 装修咨询电话 : 686官方版app - 027-82411111
"6686官方版app" 售后服务电话 : 027-82866788
公司地址 : 6686平台市江岸区澳门路232号金冠大厦
6686官方版app - 6686登录我们
"6686官方版app" 友情链接 :
    66866686官方版app下载官方版-6686官方版app下载2025最新 页面版权所有 jingyu-design.cn

    算一算,您家装修需要花多少钱?

    知精准报价 避装修深坑 (6686官方版app)

    01/03

    选择您喜欢的风格

    • 现代轻奢

    • 现代美式

    • 北欧

    • 新中式

    • 欧式

    • 其他

    算一算,您家装修要花多少钱?

    知精准报价 避装修深坑

    02/03

    选择房屋面积区间 (6686官方版app)

    • 80-100㎡
    • 100-140㎡
    • 140-200㎡
    • 200-300㎡
    • 300㎡以上

    686官方版app - 03/03

    您的户型 (6686官方版app)

    • 两居室

    • 三居室

    • 四居室

    • 五居室

    • 六居室

    "6686官方版app" 算一算,您家装修要花多少钱?

    知精准报价 避装修深坑

    0%

    稍等片刻,您的报价正在生中......

    "6686官方版app" 算一算,您家装修要花多少钱?

    知精准报价 避装修深坑

    "6686官方版app" 您的完整报价已经生成

    报名成功享抢订优惠名额

    每日仅限前10名用户