24小时咨询电话 (6686官方版app)
027-82411111
当前位置 : 首页 > 户型解析 > 世纪江尚138㎡三居室现代简约格调婚房户型解析
"6686官方版app" 世纪江尚138㎡三居室现代简约格调婚房户型解析
发布时间 : 2022-03-14 11:53
查看数 :

    案例简介:对于忙于工作的都市白领们来说,家居环境越简洁越好,因为简洁不仅仅代表着清新耐看,更意味着易于打理,因此本案例的业主多次跟业主强调不要使用过多花里胡哨的设计,整体一定要简洁 6686官方版app,根据业主的想法与喜好,设计师选择了相对比较稳妥且耐看的现代简约风进行装饰,同时借助线条的组合来营造空间的结构感与品质感。


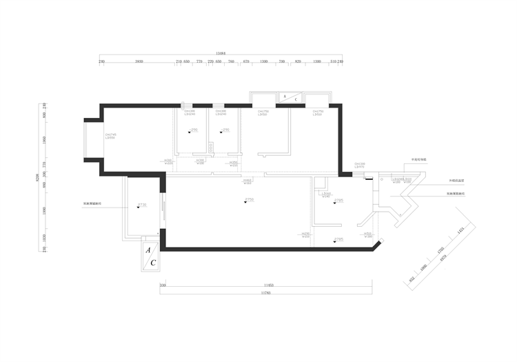
    户型解析:




    世纪江尚这套三居室住宅的面积约为138㎡,整体户型并不规整,存在着难以规划设计的犄角空间,因此对设计师有着更高的考验 6686官方版app,出于充分利用空间的想法,设计师将房屋中最畸形的一块区域改造成厨房,借助定制式台面降低犄角的存在感,同时利用合理的装饰点缀来化解空间的局限感与压迫感,进而确保空间的犄角区域能够得到更为合理的利用。


    客厅:


3.jpg


    客厅区域借助藕色与白色作为主基调色,强调简约清新美 6686官方版app,地毯与墙面上的线条装饰看似简单,但是却从视觉上提升了空间的结构感。


    餐厅:


4.jpg


    绿色的椅子搭配上黑色桌子,简约耐看而又不失跳跃时尚感 6686官方版app


    卧室:


    淡蓝色的背景墙搭配上藕色衣柜,整体给人小清新的柔和韵味感 6686官方版app


(6686官方版app)
预约设计师 (6686官方版app)
海量行家, 抢订6686注册设计服务
每日前20名申请用户, 获3D装修设计图
"6686官方版app" 推荐相关案例
6686注册获取同款设计方案
姓名*
楼盘*
电话*
*为了您的权益, 您的隐私将严格保密
预约成功
您已报名成功, 稍后会有客服人员联系您。 您的隐私将被严格保密。
关注二维码了解6686体育装修知识
联系我们
装修咨询电话 : 027-82411111 (6686官方版app)
售后服务电话 : 027-82866788
公司地址 : 6686平台市江岸区澳门路232号金冠大厦
6686登录我们
友情链接 :
    66866686官方版app下载官方版-6686官方版app下载2025最新 页面版权所有 jingyu-design.cn

    算一算,您家装修需要花多少钱? (6686官方版app)

    知精准报价 避装修深坑

    "6686官方版app" 01/03

    选择您喜欢的风格

    • 现代轻奢

    • 现代美式

    • 北欧

    • 新中式

    • 欧式

    • 其他

    算一算,您家装修要花多少钱?

    知精准报价 避装修深坑

    02/03

    选择房屋面积区间 (6686官方版app)

    • 80-100㎡
    • 100-140㎡
    • 140-200㎡
    • 200-300㎡
    • 300㎡以上

    03/03 (6686官方版app)

    您的户型

    • 两居室

    • 三居室

    • 四居室

    • 五居室

    • 六居室

    6686官方版app - 算一算,您家装修要花多少钱?

    知精准报价 避装修深坑

    0%

    稍等片刻,您的报价正在生中......

    算一算,您家装修要花多少钱?

    知精准报价 避装修深坑

    您的完整报价已经生成

    报名成功享抢订优惠名额

    每日仅限前10名用户