24小时咨询电话 (6686官方版app)
027-82411111
当前位置 : 首页 > 户型解析 > 新城璟悦城142㎡三居室现代简约个性小窝户型解析
新城璟悦城142㎡三居室现代简约个性小窝户型解析
发布时间 : 2022-03-14 11:47
"6686官方版app" 查看数 :

    案例简介:本案例以简化整合的设计手法,有效改变了空间的舒适感,业主是一位都市白领,小资中带着轻奢的生活态度,有一定的生活品位,因此设计师在进行规划设计时,从空间上去考虑整个房子的舒适感 6686官方版app,在功能性上考虑人口的居住实用感,整体色调柔和具有个美感,表达了业主的温馨而典雅的气质。


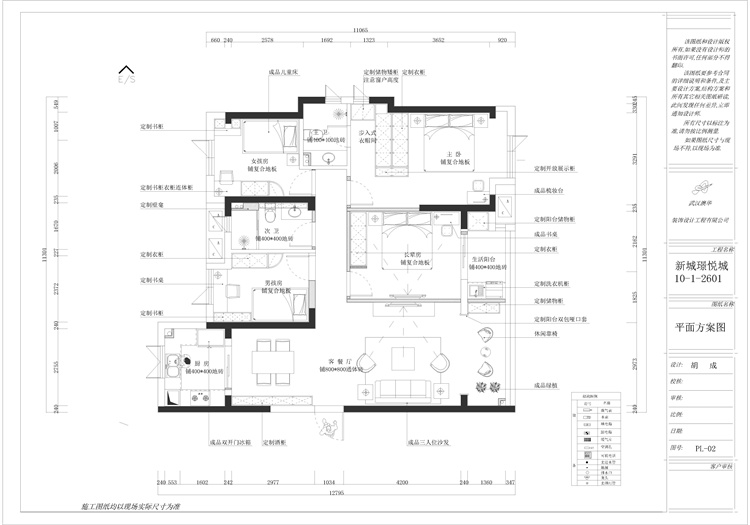
    户型解析:


1.jpg


    这套位于新城璟悦城的住宅占地面积约为142㎡,原有的户型结构中只划分出三个卧室区域,并不能够很好的满足业主一家五口的使用需求,设计师根据家中常住人口对房屋进行了再规划,放大主卧融入卫浴空间的同时,为男孩 6686官方版app,女孩以及老人各自单独划分出休憩空间,以满足不同年龄段家庭成员的日常起居使用需求,由于客厅区域面积相对比较狭长,因此就餐区域就直接设计在休憩区域拐角与客厅区域的衔接处,同时借助软隔断进行分隔,提升整体空间使用率。


    客厅:



    白色与原本色的组合清新又耐看,各类线条镶边处理则增加了空间的立体感与格调感 6686官方版app


    餐厅:


4.jpg


    由储物柜打造的隔断实用性性而又不失一定观赏性,白色常卓义搭配上绿色抱枕 6686官方版app,简约而又不失清新活泼感。


    卧室:



    白色背景墙搭配上对称式的线条设计,给人以整洁的大气韵味,无灯具照明则有效提升空间时尚氛围 6686官方版app


(6686官方版app)
"6686官方版app"
6686官方版app - 预约设计师
海量行家, 抢订6686注册设计服务
每日前20名申请用户, 获3D装修设计图
推荐相关案例
6686注册获取同款设计方案
姓名*
楼盘*
电话*
*为了您的权益, 您的隐私将严格保密
"6686官方版app" 预约成功
您已报名成功, 稍后会有客服人员联系您。 您的隐私将被严格保密。
关注二维码了解6686体育装修知识
联系我们 (6686官方版app)
装修咨询电话 : 027-82411111
售后服务电话 : 027-82866788
公司地址 : 6686平台市江岸区澳门路232号金冠大厦 (6686官方版app)
6686登录我们
6686官方版app - 友情链接 :
    66866686官方版app下载官方版-6686官方版app下载2025最新 页面版权所有 jingyu-design.cn

    算一算,您家装修需要花多少钱?

    知精准报价 避装修深坑

    01/03

    选择您喜欢的风格 (6686官方版app)

    • 现代轻奢

    • 现代美式

    • 北欧

    • 新中式

    • 欧式

    • 其他

    算一算,您家装修要花多少钱?

    知精准报价 避装修深坑 (6686官方版app)

    686官方版app - 02/03

    选择房屋面积区间

    • 80-100㎡
    • 100-140㎡
    • 140-200㎡
    • 200-300㎡
    • 300㎡以上

    686官方版app - 03/03

    您的户型

    • 两居室

    • 三居室

    • 四居室

    • 五居室

    • 六居室

    686官方版app - 算一算,您家装修要花多少钱?

    知精准报价 避装修深坑

    0%

    稍等片刻,您的报价正在生中......

    算一算,您家装修要花多少钱?

    知精准报价 避装修深坑

    您的完整报价已经生成

    报名成功享抢订优惠名额 (6686官方版app)

    每日仅限前10名用户