"6686官方版app" 24小时咨询电话
027-82411111
当前位置 : 首页 > 户型解析 > 绿地悦澜湾120㎡三居室北欧清新家居户型解析
绿地悦澜湾120㎡三居室北欧清新家居户型解析
发布时间 : 2022-03-11 12:05 (6686官方版app)
查看数 :

    案例简介:本案业主为90后,比较追求个性,舒适,时尚,作为婚房考虑后期的实用性, 婚房考虑后期的实用性, 北欧风格是注重人与自然,社会,与环境的有机的科学的结合,它的身上集中体现了绿色设计,环保设计,可持续发展设计的理念 6686官方版app,它显示了对手工艺传统和天然材料的尊重与偏爱,它在形式上更为柔和与有机,因而富有浓厚的人情味,注重功能,简化设计,线条 简练,多用明快的中性色。


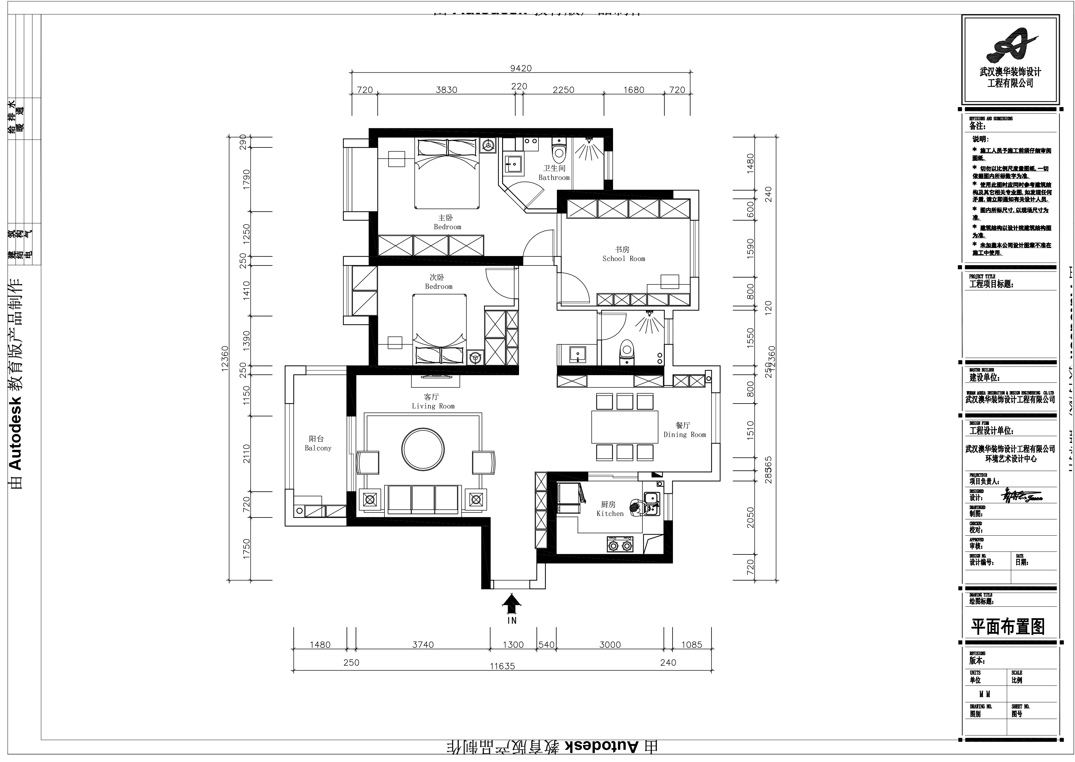
    户型解析:


1.jpg


    绿地悦澜湾这套120㎡的三居室住宅原有的户型结构十分规整,且不存在着难以设计利用的空间,因此设计师只需要做的就是进行合理的功能分区以及软装设计,根据业主的需求与想法,设计师将厨房,客厅,就餐区域设计在距离入户门较近的区域,而其他空间则打造成卧室,书房等休憩空间,以起到动静分离的作用 6686官方版app


    客厅:


2.jpg


    简约的白色水泥墙搭配上色彩明丽的沙发 6686官方版app,整体给人明快清新的高级氛围感。


    卧室:



    灰色墙面搭配上个性感强烈的挂画,满足居住者审美需求 6686官方版app,放射形灯具简约时尚且易于打理。


    书房:


5.jpg


    与墙面融为一体的嵌入式储物架设计艺术感十足而又不失功能实用性。


"6686官方版app"
预约设计师 (6686官方版app)
海量行家, 抢订6686注册设计服务
每日前20名申请用户, 获3D装修设计图
推荐相关案例
6686注册获取同款设计方案
姓名*
楼盘*
电话*
*为了您的权益, 您的隐私将严格保密
"6686官方版app" 预约成功
您已报名成功, 稍后会有客服人员联系您。 您的隐私将被严格保密。
关注二维码了解6686体育装修知识
6686登录我们 (6686官方版app)
"6686官方版app" 澳华历程
官方微博
联系我们
装修咨询电话 : 027-82411111
售后服务电话 : 686官方版app - 027-82866788
"6686官方版app" 公司地址 : 6686平台市江岸区澳门路232号金冠大厦
6686登录我们
友情链接 :
    66866686官方版app下载官方版-6686官方版app下载2025最新 页面版权所有 jingyu-design.cn

    "6686官方版app" 算一算,您家装修需要花多少钱?

    知精准报价 避装修深坑

    "6686官方版app" 01/03

    选择您喜欢的风格

    • 现代轻奢

    • 现代美式

    • 北欧

    • 新中式

    • 欧式

    • 其他

    686官方版app - 算一算,您家装修要花多少钱?

    知精准报价 避装修深坑

    02/03

    选择房屋面积区间

    • 80-100㎡
    • 100-140㎡
    • 140-200㎡
    • 200-300㎡
    • 300㎡以上

    03/03 (6686官方版app)

    您的户型

    • 两居室

    • 三居室

    • 四居室

    • 五居室

    • 六居室

    6686官方版app - 算一算,您家装修要花多少钱?

    知精准报价 避装修深坑

    0%

    稍等片刻,您的报价正在生中......

    686官方版app - 算一算,您家装修要花多少钱?

    知精准报价 避装修深坑

    您的完整报价已经生成

    报名成功享抢订优惠名额 (6686官方版app)

    每日仅限前10名用户