24小时咨询电话
027-82411111
当前位置 : 首页 > 户型解析 > 同鑫花园159㎡三居室现代简约时尚家居户型解析
同鑫花园159㎡三居室现代简约时尚家居户型解析
发布时间 : 2022-03-11 12:00
查看数 : (6686官方版app)

    案例简介:本案例的业主是一对年轻的90后夫妻,家中的常住人口除了夫妻二人之外还有一个刚上小学的孩子,偶尔父母也会过来探望,因此设计师在进行规划设计的时候,优先考虑业主夫妇与孩子的起居使用需求,同时为业主选择了简约时尚风进行装饰 6686官方版app,借助各类现代化的元素打造出一个时尚而又不失品味的高级家居。


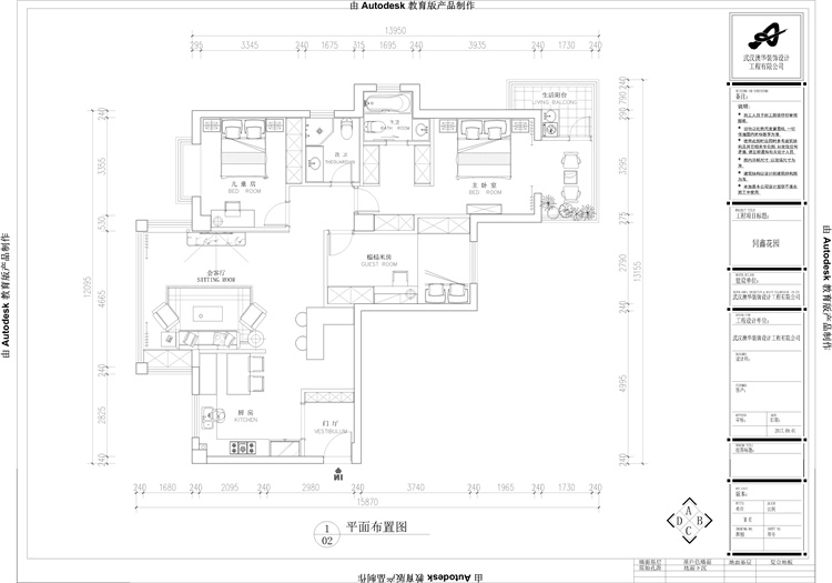
    户型解析:


1.jpg


    同鑫花园这套159㎡的三居室房屋整个的户型结构并不规整,但也相对比较常见,整体呈现“L”形,因此需要设计师更加合理的进行空间规划,避免由于户型结构不够规整带来的压抑感与局限感,根据业主的需求,设计师将主卧外部空间与主卧区域直接打通,并改造成一个卧室内的卫浴空间,提升主人日常洗漱的便利性 6686官方版app,而为了满足业主的阅读,办公需求以及老人偶尔过来探望的居住需求,设计师将一个次卧改造成书房,同时搭配上可收缩式家具,以满足使用需求。


    客厅:


2.jpg


    大面积的大理石背景墙与白色水泥墙相得益彰 6686官方版app,既不会过于突兀又能够提升空间品质格调感。


    卧室:


5.jpg


    菱形色彩构成的墙面简约而又不失浓烈的个人色彩,有效提升了空间的品味感与艺术氛围 6686官方版app


    卫生间:





    卫生间借助大面积白色进行装饰 6686官方版app,搭配上灰色储物柜,简约而又不失洁净清新感。


(6686官方版app)
"6686官方版app" 预约设计师
海量行家, 抢订6686注册设计服务
每日前20名申请用户, 获3D装修设计图
686官方版app - 推荐相关案例
6686注册获取同款设计方案
姓名*
楼盘*
电话*
*为了您的权益, 您的隐私将严格保密
6686官方版app - 预约成功
您已报名成功, 稍后会有客服人员联系您。 您的隐私将被严格保密。
关注二维码了解6686体育装修知识
联系我们 (6686官方版app)
装修咨询电话 : 027-82411111 (6686官方版app)
售后服务电话 : 027-82866788
公司地址 : 6686平台市江岸区澳门路232号金冠大厦 (6686官方版app)
6686登录我们
友情链接 :
    66866686官方版app下载官方版-6686官方版app下载2025最新 页面版权所有 jingyu-design.cn

    算一算,您家装修需要花多少钱?

    知精准报价 避装修深坑 (6686官方版app)

    "6686官方版app" 01/03

    选择您喜欢的风格

    • 现代轻奢

    • 现代美式

    • 北欧

    • 新中式

    • 欧式

    • 其他

    686官方版app - 算一算,您家装修要花多少钱?

    知精准报价 避装修深坑

    02/03

    选择房屋面积区间

    • 80-100㎡
    • 100-140㎡
    • 140-200㎡
    • 200-300㎡
    • 300㎡以上

    "6686官方版app" 03/03

    您的户型

    • 两居室

    • 三居室

    • 四居室

    • 五居室

    • 六居室

    6686官方版app - 算一算,您家装修要花多少钱?

    知精准报价 避装修深坑

    0%

    稍等片刻,您的报价正在生中......

    算一算,您家装修要花多少钱?

    知精准报价 避装修深坑

    您的完整报价已经生成

    报名成功享抢订优惠名额

    每日仅限前10名用户