<u lang="eVPjjWO"></u><center lang="FFMIji"></center>
24小时咨询电话
027-82411111
当前位置 : 首页 > 户型解析 > 海伦国际 180㎡ 复式美式格调雅居户型解析
6686官方版app - 海伦国际 180㎡ 复式美式格调雅居户型解析
发布时间 : 2022-03-07 10:36
查看数 :

    案例简介:本案例的房屋常住人口只有业主夫妻而言,有时候父母 6686官方版app,朋友会过来小聚,因此业主提出需要预留出足够的会客区域与客人休憩空间,而在与业主进行深入了解后,设计师发现业主二人追求的是一种简单自由的生活,因此设计师选择了以浪漫著称的美式风装饰空间,同时分隔出一定的次卧供客人休憩。


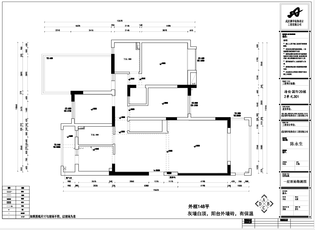
    户型解析:




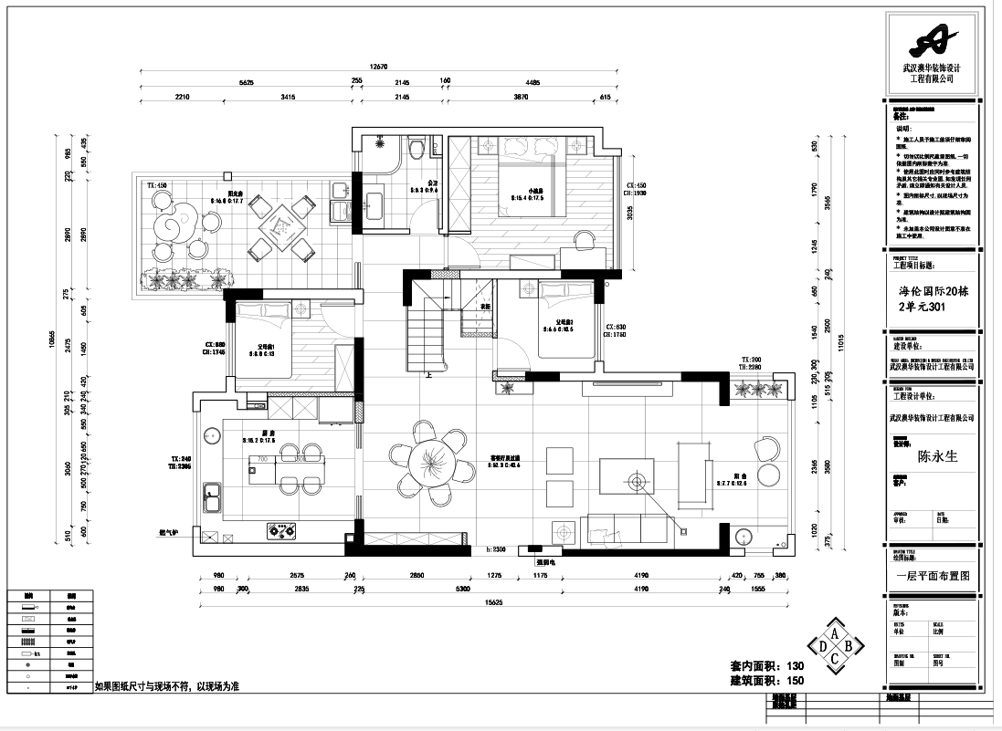
    这套海伦国际的180㎡复式住宅的户型户型结构四方平整,且位于顶楼带有小露台,因此设计师在进行规划设计的时候充分利用顶楼优势,加入各类落地窗设计,提升室内采光度,同时,将露台打造出一个舒适的会客休闲区域 6686官方版app,以提升空间的利用率,整体色彩则按照业主的审美选择了浅色系色彩,避免造成视觉压迫感。


    客厅:




    客厅选用沉稳的灰色作为主基调色 6686官方版app,耐看不易过时且相对便于缺少,大理石材质的背景墙低调而又不失高级韵味。


    厨房:


现场厨房.png


    浅蓝色的橱柜搭配上白色吊顶 6686官方版app,优雅清新,让油烟之所充满浪漫之美。


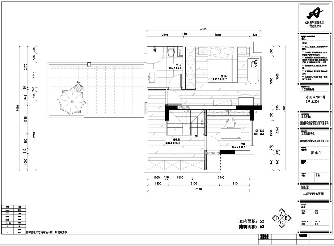
    卧室:






    淡绿色的床头墙搭配上藕粉色的窗帘,让空间自带自然清新气息 6686官方版app,而大面积的落地窗则确保阳光能够自由撒落在室内。


"6686官方版app"
预约设计师
海量行家, 抢订6686注册设计服务
每日前20名申请用户, 获3D装修设计图
推荐相关案例
"6686官方版app" 6686注册获取同款设计方案
姓名*
楼盘*
电话*
*为了您的权益, 您的隐私将严格保密
6686官方版app - 预约成功
您已报名成功, 稍后会有客服人员联系您。 您的隐私将被严格保密。
关注二维码了解6686体育装修知识
6686登录我们 (6686官方版app)
澳华历程
官方微博
联系我们
装修咨询电话 : 686官方版app - 027-82411111
售后服务电话 : 027-82866788
公司地址 : 6686平台市江岸区澳门路232号金冠大厦
6686官方版app - 6686登录我们
友情链接 :
    66866686官方版app下载官方版-6686官方版app下载2025最新 页面版权所有 jingyu-design.cn

    算一算,您家装修需要花多少钱?

    知精准报价 避装修深坑

    01/03

    选择您喜欢的风格

    • 现代轻奢

    • 现代美式

    • 北欧

    • 新中式

    • 欧式

    • 其他

    "6686官方版app" 算一算,您家装修要花多少钱?

    知精准报价 避装修深坑

    686官方版app - 02/03

    选择房屋面积区间

    • 80-100㎡
    • 100-140㎡
    • 140-200㎡
    • 200-300㎡
    • 300㎡以上

    03/03

    您的户型

    • 两居室

    • 三居室

    • 四居室

    • 五居室

    • 六居室

    算一算,您家装修要花多少钱?

    知精准报价 避装修深坑

    0%

    稍等片刻,您的报价正在生中......

    算一算,您家装修要花多少钱?

    知精准报价 避装修深坑

    您的完整报价已经生成

    6686官方版app - 报名成功享抢订优惠名额

    每日仅限前10名用户