24小时咨询电话
027-82411111
当前位置 : 首页 > 户型解析 > 卧龙墨水湖边140㎡三居室新中式雅苑户型解析
卧龙墨水湖边140㎡三居室新中式雅苑户型解析
发布时间 : 2022-03-02 10:35
查看数 : (6686官方版app)

    案例介绍:业主是一对偏爱中式传统文化的年轻人 6686官方版app,因此在进行家装的时候希望能够融入一些中式元素,增加空间的复古典雅韵味,为了契合业主的审美,设计师选用了兼顾时尚气息与传统中式韵味美的新中式家装风格,同时借助一些复古元素的搭配使用来营造一种雅而不俗的传统韵味。


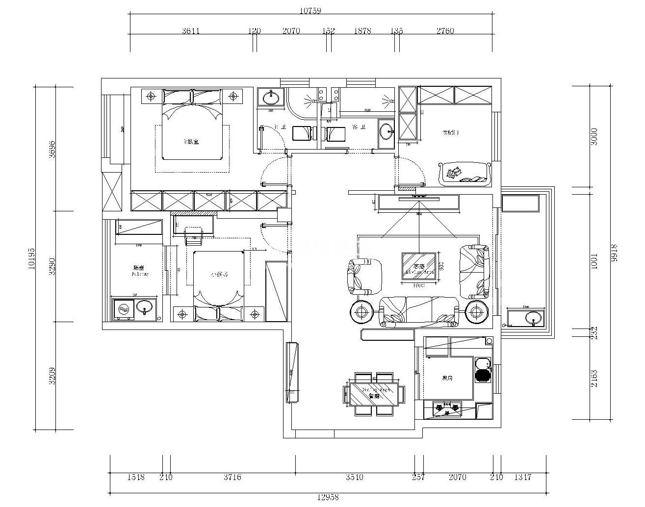
    户型解析


1.jpg


    这座位于卧龙墨水湖边的140㎡三居室住宅的结构相对比较方正规整,结构缺陷比较小,最大的空间问题在于客厅区域与就餐区域的面积不够大,因此设计师在进行规划设计的时候仅借助视觉的分隔来起到空间划分的作用,以从视觉上起到放大整个家居空间的作用 6686官方版app,而玄关处则是借用简单的装饰设计,来缓解空间面积不大所带来的压抑感。


    玄关:


2.jpg


    由于玄关处面积并不大,因此设计师在对该区域没有做过多的装饰设计 6686官方版app,而是借助简单的禅意挂画及门框镶边设计进行装饰,在强调空间精致度的同时不造成压迫感。


    客厅:


3.jpg


    客厅区域使用了厚重感较强的深棕色电视柜,以强调中式风所特有的端庄大气感,而白色系的沙发则让空间的厚重感得到缓解 6686官方版app,为空间增添了清新韵味。


(6686官方版app)
6686官方版app - 预约设计师
海量行家, 抢订6686注册设计服务
每日前20名申请用户, 获3D装修设计图
推荐相关案例
"6686官方版app" 6686注册获取同款设计方案
姓名*
楼盘*
电话*
*为了您的权益, 您的隐私将严格保密
"6686官方版app" 预约成功
您已报名成功, 稍后会有客服人员联系您。 您的隐私将被严格保密。
关注二维码了解6686体育装修知识
"6686官方版app" 联系我们
装修咨询电话 : 686官方版app - 027-82411111
"6686官方版app" 售后服务电话 : 027-82866788
"6686官方版app" 公司地址 : 6686平台市江岸区澳门路232号金冠大厦
"6686官方版app" 6686登录我们
友情链接 :
    66866686官方版app下载官方版-6686官方版app下载2025最新 页面版权所有 jingyu-design.cn

    算一算,您家装修需要花多少钱?

    知精准报价 避装修深坑

    686官方版app - 01/03

    选择您喜欢的风格

    • 现代轻奢

    • 现代美式

    • 北欧

    • 新中式

    • 欧式

    • 其他

    算一算,您家装修要花多少钱? (6686官方版app)

    知精准报价 避装修深坑

    02/03 (6686官方版app)

    选择房屋面积区间

    • 80-100㎡
    • 100-140㎡
    • 140-200㎡
    • 200-300㎡
    • 300㎡以上

    "6686官方版app" 686官方版app - 03/03

    您的户型

    • 两居室

    • 三居室

    • 四居室

    • 五居室

    • 六居室

    "6686官方版app" 算一算,您家装修要花多少钱?

    知精准报价 避装修深坑

    0%

    稍等片刻,您的报价正在生中......

    算一算,您家装修要花多少钱?

    知精准报价 避装修深坑

    您的完整报价已经生成 (6686官方版app)

    报名成功享抢订优惠名额

    每日仅限前10名用户