6686官方版app - 24小时咨询电话
027-82411111
当前位置 : 首页 > 户型解析 > 藏珑苑 152㎡三居室轻奢雅居户型解析
"6686官方版app" 藏珑苑 152㎡三居室轻奢雅居户型解析
"6686官方版app" 发布时间 : 2022-03-02 10:29
查看数 : (6686官方版app)

    案例介绍:本案例业主为即将结婚的新婚夫妻 6686官方版app,二人在婚前购置了这套房,但是由于工作繁忙,因此选择将所有的工程专业的人士来负责,而他们的要求就是能够化解空间狭窄劣势,同时营造出一种喜庆而又不落俗套的个性化氛围,设计师按照业主们的需求选择了轻奢风作为家装风格,搭配以各种细节感十足的装饰,以在无形之中强调贵气与喜庆。


    户型解析


1.jpg


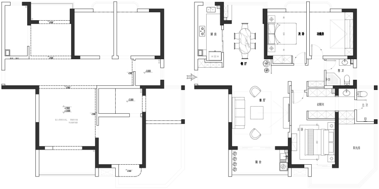
    藏珑苑的这套152㎡的三居室房屋空间结构局限性较小,房屋户型最大的问题在于会客区域的面积不够宽敞,因此在设计的时候需要充分考虑如何将面积合理利用,避免客厅空间看起来过于小家子气,同时,设计师将主卧的长度延长,融入衣帽间设计 6686官方版app,以满足女主人的起居使用需求。


    客厅:


2.jpg


    由于客厅区域的宽度并不宽,因此设计师在对客厅进行设计的时候选用了相对比较简约的元素及简洁的色彩,以从视觉上起到放大空间作用,整个空间除了纵向墙面装饰外,没有其他任何装饰点缀,有效保障了空间的整洁感 6686官方版app


    餐厅:


3.jpg


    就餐区域沿用了与客厅一致的灯光与配色,以保障整个家居空间具有一定衔接感 6686官方版app,而餐厅与客厅的隔断选用了玻璃推拉门设计,在保障就餐区域拥有足够透明的同时,还避免还区域显得过于独立,缺乏空间整体和谐感。


    厨房:


4.jpg


    厨房选用了简洁的白色作为主色调 6686官方版app,以强调洁净舒适感,再穿插以简约的黑色,以保障空间的色彩不会过于单一,有效提升了空间的精致感。


    卧室:


6.jpg


    卧室背景墙使用白色护墙板设计,字画装饰,使空间散发出中华文化的源远流长 6686官方版app


6686官方版app - 预约设计师
海量行家, 抢订6686注册设计服务
每日前20名申请用户, 获3D装修设计图
6686注册获取同款设计方案 (6686官方版app)
姓名*
楼盘*
电话*
*为了您的权益, 您的隐私将严格保密
"6686官方版app" 预约成功
您已报名成功, 稍后会有客服人员联系您。 您的隐私将被严格保密。
关注二维码了解6686体育装修知识
6686官方版app - 联系我们
装修咨询电话 : 027-82411111
售后服务电话 : 027-82866788
公司地址 : 6686平台市江岸区澳门路232号金冠大厦 (6686官方版app)
6686登录我们
友情链接 :
    66866686官方版app下载官方版-6686官方版app下载2025最新 页面版权所有 jingyu-design.cn

    算一算,您家装修需要花多少钱?

    知精准报价 避装修深坑

    01/03

    选择您喜欢的风格

    • 现代轻奢

    • 现代美式

    • 北欧

    • 新中式

    • 欧式

    • 其他

    算一算,您家装修要花多少钱? (6686官方版app)

    知精准报价 避装修深坑

    "6686官方版app" 02/03

    选择房屋面积区间

    • 80-100㎡
    • 100-140㎡
    • 140-200㎡
    • 200-300㎡
    • 300㎡以上

    686官方版app - 686官方版app - 03/03

    您的户型

    • 两居室

    • 三居室

    • 四居室

    • 五居室

    • 六居室

    "6686官方版app" 算一算,您家装修要花多少钱?

    知精准报价 避装修深坑

    0%

    稍等片刻,您的报价正在生中......

    算一算,您家装修要花多少钱?

    知精准报价 避装修深坑

    您的完整报价已经生成

    6686官方版app - 报名成功享抢订优惠名额

    每日仅限前10名用户