6686官方版app - 24小时咨询电话
027-82411111
当前位置 : 首页 > 6686官网网页版 > 付超
找TA设计
做事认真
"6686官方版app" DESIGNER
付超 主任设计师
从业时间 : 2009 作品数量 :20套
司 : 华中超级旗舰店
业主评价 :
    • 提前做预算规划
    • 谈话沉稳
    • 工作细致
    • 设计非常走心
    • 方案有创意
    • 专业能力
    极简风,法式,中古风,意式风,原木风,奶油风
    • 个人简介
    • 设计理念
    • 经典楼盘
    • 2017红玺杯最佳优秀表现奖

      20186686平台设计大赛精英设计师

      2022年红鼎奖优秀作品

      2023年中部设计大赛双年展第二名

      2024年中国室内设计年度评选设计优秀奖

    • 处理人与空间,空间与物 6686官方版app,物与人的关系。


    • 华侨城纯水岸. 华发外滩首府. 华润昆仑御. 中建星光城. 正荣紫阙台. 世茂云锦. 中建大公馆. 金科城. 琨瑜府. 华侨城. 中建大公馆 6686官方版app.


    相关案例
    户型解析
    在施工地
    其他案例推荐
    "6686官方版app"
    相关案例 (6686官方版app)
    "6686官方版app"
    户型解析 (6686官方版app)
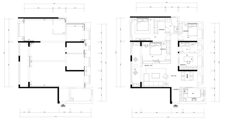
    正荣紫阙台141㎡三居室现代简约风格住宅户型解析
    三居室
    141m²
    "6686官方版app" 现代简约

        案例简介:色彩明亮的客厅 6686官方版app,暖冬的时候阳光洒满整个客厅理想空间,质地柔软的沙发,立体感极强的装饰立面,阳光穿透灰色的纱帘洒落在橡地板上,显现出无尽的温暖与明朗,让房子的主人更加舒适享受生活带来的幸福时光,放屋里每一处的软装都代表了新步入婚姻的新人对美好生活的向往,每一处都很温馨。


        户型解析:


    1.jpg


        正荣紫阙台三居室现代简约风格住宅的面积是141平方米,房子的阳台很大阳光很暖,客厅空间具有保障朝向很理想,不足的则是三个卧室在分布的位置方面比较拥挤,存在着卧室不私密方面的问题,不过房屋的厨房是具有窗户的 6686官方版app,烹饪的同时完全可以满足家庭中通风卫生的要求。


        客厅:



        立体感强的装饰墙面搭配造型独特的布艺沙发看起来便很温暖 6686官方版app,客厅的绿植增加了声气的同时造型也独特简单。


        卧室:



        保障了床铺和储物功能都重视的同时,卧室内部还安装了电视机,在卧室休息的时候可以观看电视 6686官方版app,符合了很多年轻人的生活习惯。


        书房:



        简约的书柜以及工作的座椅可以感觉到现代的气息 6686官方版app,书房的灯也透露出来一种艺术感。


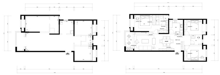
    杨春湖景苑150㎡四居室现代简约风格住宅户型解析
    四居室
    150m² (6686官方版app)
    现代简约

        案例简介:这个简约的家,有种独特的清爽干净,仿佛是盐系低糖奶茶的空间,温暖质感精致简约而不单调,根本不用打光,满屏都是高级感的奶系暖色调的高级温暖至于的理想住宅,新婚夫妻对时尚有着自己的理解 6686官方版app,阳台的空间也给予了温馨的设计,小两口每天回到家里心情都会是美美的。


        户型解析:


    1.jpg


        杨春湖景苑四居室现代简约风格住宅的面积是150平米,足够的面积确保了户型四面通风的状态,冬暖夏凉的户型条件使得居住舒适感有效的提升,房屋的客厅朝向以及空间都很好,不足的是三个卧室之间的距离比较近,这样在夜晚居住中会存在私密性不好的问题 6686官方版app,在卧室装修中需加强隔音处理。


        客厅:



        奶茶色的色调搭配了奶茶色的时尚沙发 6686官方版app,就连墙上高大独特的挂画都彰显出了现代简约的状态。


        餐厅:



        方正的餐厅搭配了奶茶色现代的桌椅,墙上的挂画看起来简单却具有独特的艺术气息。


        卧室:



        卧室仍旧保持了奶茶色的色调,每一处空间合理利用的同时,墙上挂画都是独特的现代简约风格。


        书房:


    QQ截图20220127173636.jpg


        用心设计的书房满足了工作和休闲的需要,工作劳累之后可以观看电视,即便是一整天窝在书房也不会感觉到劳累。


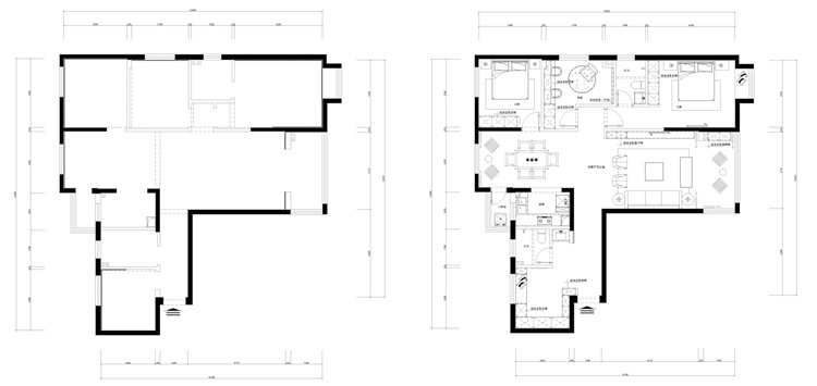
    琨御府118㎡词三居室轻奢风格住宅户型解析
    三居室
    118m²
    轻奢风 (6686官方版app)

        案例简介:轻是一种优雅的态度,低调舒适,但不损害高贵的优雅;奢是一种既不让人有压力,又追求品质和精致生活的状态。三居室房主喜欢轻奢的风格,对于高贵优雅却有着直接,房屋设计中将两种因素充分融合进入。并且设计中充分的考虑到房主多子这样的一个因素,在每一个卧室设计都别出心裁。


        户型解析:


    1.jpg


        琨御府三居室轻奢风格住宅面积是118平方米,房屋做到了四面通风的效果。房屋的卧室空间足够,一个主卧两个次卧,并且主卧内部具有卫生间。观察房屋的客厅,客厅的空间也是足够的,对于多子家庭而言,无论是卧室居住还是客厅活动都满足了日常生活中的需求,并且厨房卫生间位置分布都很合理。


        客厅:


    2.jpg


        现代布艺沙发和简约背景墙搭配简单,白色和灰色的色调搭配感觉很舒适。


        卧室:


        卧室的设计同样简单,每一个卧室都保障了床铺的舒适度以及大衣柜的设计,居住和储物都很方便。


    "6686官方版app" 在施工地
    • 开工
    • 前期
    • 中期
    • 后期
    • 竣工
    (6686官方版app)
    "6686官方版app" 预约设计师
    海量行家, 抢订6686注册设计服务
    每日前20名申请用户, 获3D装修设计图
    预约设计师
    姓名*
    楼盘*
    电话*
    *为了您的权益, 您的隐私将严格保密
    推荐相关案例
    "6686官方版app" 6686注册获取同款设计方案
    姓名*
    楼盘*
    电话*
    *为了您的权益, 您的隐私将严格保密
    6686官方版app - 预约成功
    您已报名成功, 稍后会有客服人员联系您。 您的隐私将被严格保密。
    关注二维码了解6686体育装修知识
    "6686官方版app" 联系我们
    "6686官方版app" 装修咨询电话 : 027-82411111
    售后服务电话 : 686官方版app - 027-82866788
    "6686官方版app" 公司地址 : 6686平台市江岸区澳门路232号金冠大厦
    6686登录我们
    6686官方版app - 友情链接 :
      66866686官方版app下载官方版-6686官方版app下载2025最新 页面版权所有 jingyu-design.cn

      算一算,您家装修需要花多少钱?

      知精准报价 避装修深坑

      686官方版app - 01/03

      选择您喜欢的风格

      • 现代轻奢

      • 现代美式

      • 北欧

      • 新中式

      • 欧式

      • 其他

      算一算,您家装修要花多少钱?

      知精准报价 避装修深坑

      02/03

      选择房屋面积区间

      • 80-100㎡
      • 100-140㎡
      • 140-200㎡
      • 200-300㎡
      • 300㎡以上

      03/03

      您的户型

      • 两居室

      • 三居室

      • 四居室

      • 五居室

      • 六居室

      算一算,您家装修要花多少钱?

      知精准报价 避装修深坑 (6686官方版app)

      0%

      稍等片刻,您的报价正在生中......

      6686官方版app - 算一算,您家装修要花多少钱?

      知精准报价 避装修深坑

      您的完整报价已经生成

      6686官方版app - 报名成功享抢订优惠名额

      每日仅限前10名用户