24小时咨询电话
027-82411111
当前位置 : 首页 > 6686官网网页版 > 王峰
找TA设计
经验丰富
DESIGNER
王峰 主任设计师
从业时间 : (6686官方版app) 1993 作品数量 :1套
司 : 总部旗舰店
6686官方版app - 业主评价 :
    • 工作细致
    • 效果和预想一致
    • 设计有品位
    • 很有责任心
    • 有创意
    • 建议很合理
    现代简约,轻奢,新中式,中古风,意式风
    • 个人简介
    • 设计理念
    • 经典楼盘

    • 中国装饰协会高级会员

      中国建筑装饰协会高级室内设计师


      2003年全国居室装饰实例大赛一等奖

      2004年6686平台首届室内装饰设计大赛特等奖

      2005年6686平台地区首届居室装饰设计和实例作品大赛一等奖

      2005年6686平台市首届居室室内设计大赛二等奖

      2021年6686平台第五届空间环境艺术设计大赛住宅空间类三等奖


    • 好的设计作品 6686官方版app,是使人生活得更为幸福的设计作品.


    • 华侨城欢乐天际,世纪江尚,雍豪府,楚世家CBD,华润中央公园,金地自在城,绿地汉口中心等 6686官方版app.


    相关案例
    户型解析
    在施工地
    其他案例推荐
    相关案例 (6686官方版app)
    "6686官方版app" 户型解析
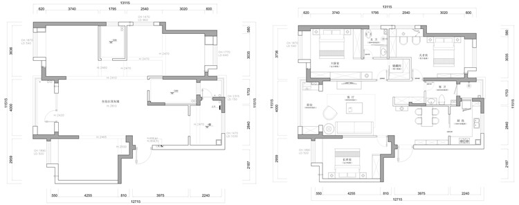
    金桥庭院135㎡三居室轻奢风格住宅户型解析
    三居室
    6686官方版app - 135m²
    轻奢风

        案例简介:装饰的灵魂是设计,设计的灵魂是文化,业主是多子家庭,为了可以居住的很舒适便购买了三居室的房屋,在房屋的设计中采取了业务喜欢的轻奢风格 6686官方版app,在每一个卧室设计中根据业主以及孩子的喜好来进行,宽敞的客厅作为一家人休闲娱乐的理想选择,对于多子家庭而言,每一个空间都得到充分利用并且不拥挤。


        户型解析:


    1.jpg


        金桥同源三居室轻奢风格住宅的面积是135平方米,户型整体是很方正的,三个卧室大小符合居住的要求,户型内部的客厅空间足够大,厨房以及卫生间的分布都可以满足多子家庭的需要,为了确保更好的享受阳光,阳台的光线也是很充足的,户型设计达到了四面通风的要求,居住中很舒适 6686官方版app


        客厅:


    2.jpg


        白色为主色调搭配深色的家具,不仅仅看起来简单 6686官方版app,又可以感受到浓浓的轻奢风格。


        餐厅:


    3.jpg


        餐厅和洗手台连接 6686官方版app,用餐之前洗手很方便,餐桌餐椅颜值高,餐椅使用舒适度很高。


        卧室:


    4.jpg


        卧室和办公融合为一体,家长孩子互相不会影响工作以及学习 6686官方版app,工作完后便可以上床可以得到充足的休息。


    "6686官方版app" 在施工地
    • 开工
    • 前期
    • 中期
    • 后期
    • 竣工
    预约设计师
    海量行家, 抢订6686注册设计服务
    每日前20名申请用户, 获3D装修设计图
    预约设计师
    姓名*
    楼盘*
    电话*
    *为了您的权益, 您的隐私将严格保密
    6686注册获取同款设计方案 (6686官方版app)
    姓名*
    楼盘*
    电话*
    *为了您的权益, 您的隐私将严格保密
    预约成功
    您已报名成功, 稍后会有客服人员联系您。 您的隐私将被严格保密。
    关注二维码了解6686体育装修知识
    6686官方版app - 联系我们
    装修咨询电话 : 027-82411111
    售后服务电话 : 027-82866788
    公司地址 : 6686平台市江岸区澳门路232号金冠大厦
    "6686官方版app" 6686登录我们
    友情链接 : (6686官方版app)
      66866686官方版app下载官方版-6686官方版app下载2025最新 页面版权所有 jingyu-design.cn

      "6686官方版app" 算一算,您家装修需要花多少钱?

      知精准报价 避装修深坑

      01/03

      选择您喜欢的风格

      • 现代轻奢

      • 现代美式

      • 北欧

      • 新中式

      • 欧式

      • 其他

      "6686官方版app" 算一算,您家装修要花多少钱?

      知精准报价 避装修深坑

      02/03 (6686官方版app)

      选择房屋面积区间

      • 80-100㎡
      • 100-140㎡
      • 140-200㎡
      • 200-300㎡
      • 300㎡以上

      03/03

      您的户型

      • 两居室

      • 三居室

      • 四居室

      • 五居室

      • 六居室

      算一算,您家装修要花多少钱?

      知精准报价 避装修深坑

      0%

      稍等片刻,您的报价正在生中......

      "6686官方版app" 算一算,您家装修要花多少钱?

      知精准报价 避装修深坑

      "6686官方版app" 您的完整报价已经生成

      报名成功享抢订优惠名额

      每日仅限前10名用户