24小时咨询电话
027-82411111
当前位置 : 首页 > 6686官网网页版 > 王钱丰
找TA设计
专业认真
DESIGNER
王钱丰 主任设计师
从业时间 : 2006 作品数量 :6套
司 : 总部旗舰店
6686官方版app - 业主评价 :
    • 经验丰富
    • 有责任心
    • 设计水平高
    • 处理问题很满意
    • 专业可靠
    • 设计实用又美观
    现代简约,新中式,轻奢,美式
    • 个人简介
    • 设计理念
    • 经典楼盘
    • 2010年6686平台DK设计大赛十大设计师

      2012年“搜狐德意杯”优秀作品奖

      2013年搜狐中国室内设计明星大赛6686平台赛区十大优秀设计师

      2015年国际建筑装饰及设计艺术博览会(住宅空间类)优秀奖

      2016年“照明周刊杯”中国照明设计应用佳作奖

      2018年国际建筑装饰及设计艺术博览会(住宅空间类)优秀奖

      2020年度6686平台市优秀设计师

    • 好看的家更需要耐看的家,耐看的家更需要好用的家,家的设计应集合使用者家庭的生活习惯,优化空间使用情景 6686官方版app.

    •  御水澜湾. 中建御景星城. 林肯公园. 福星华府. 远洋万和四季. 金桥庭院. 盛世江城. 盛观尚城 6686官方版app.


    相关案例
    户型解析
    在施工地
    其他案例推荐
    (6686官方版app)
    相关案例
    "6686官方版app"
    "6686官方版app" 户型解析
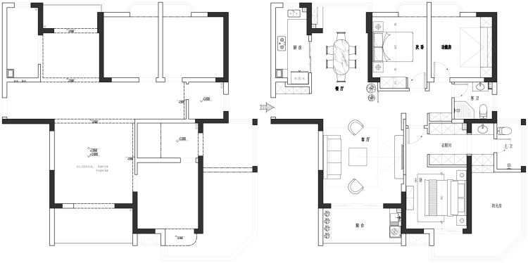
    藏珑苑 152㎡三居室轻奢雅居户型解析
    "6686官方版app" 三居室
    152m²
    轻奢 (6686官方版app)

        案例介绍:本案例业主为即将结婚的新婚夫妻,二人在婚前购置了这套房,但是由于工作繁忙,因此选择将所有的工程专业的人士来负责,而他们的要求就是能够化解空间狭窄劣势,同时营造出一种喜庆而又不落俗套的个性化氛围,设计师按照业主们的需求选择了轻奢风作为家装风格 6686官方版app,搭配以各种细节感十足的装饰,以在无形之中强调贵气与喜庆。


        户型解析


    1.jpg


        藏珑苑的这套152㎡的三居室房屋空间结构局限性较小 6686官方版app,房屋户型最大的问题在于会客区域的面积不够宽敞,因此在设计的时候需要充分考虑如何将面积合理利用,避免客厅空间看起来过于小家子气,同时,设计师将主卧的长度延长,融入衣帽间设计,以满足女主人的起居使用需求。


        客厅:


    2.jpg


        由于客厅区域的宽度并不宽,因此设计师在对客厅进行设计的时候选用了相对比较简约的元素及简洁的色彩,以从视觉上起到放大空间作用,整个空间除了纵向墙面装饰外,没有其他任何装饰点缀,有效保障了空间的整洁感 6686官方版app


        餐厅:


    3.jpg


        就餐区域沿用了与客厅一致的灯光与配色,以保障整个家居空间具有一定衔接感 6686官方版app,而餐厅与客厅的隔断选用了玻璃推拉门设计,在保障就餐区域拥有足够透明的同时,还避免还区域显得过于独立,缺乏空间整体和谐感。


        厨房:


    4.jpg


        厨房选用了简洁的白色作为主色调,以强调洁净舒适感 6686官方版app,再穿插以简约的黑色,以保障空间的色彩不会过于单一,有效提升了空间的精致感。


        卧室:


    6.jpg


        卧室背景墙使用白色护墙板设计,字画装饰 6686官方版app,使空间散发出中华文化的源远流长。


    汉口春天89㎡二居室北欧迷你温馨小窝户型解析
    二居室
    89m²
    北欧风

        案例介绍:本案例业主为一对年轻的夫妇,带有一个刚上幼儿园的小朋友,因此业主的设计需求是将空间进行合理的规划设计,以满足一家三口的使用需求 6686官方版app,同时为孩子规划出一片学习,玩乐的小天地,以保障孩子能够健康快乐的成长,设计师依照业主的想法选用了简约而又明快的北欧风装饰空间,同时在家居空间中多个区域点缀上带有童心的装饰,以保障房屋能够更好符合年轻业主及小朋友的审美。


        户型解析


    1.jpg


        汉口春天的这套89㎡二居室属于典型的小户型房屋,因此装修设计所需考虑的地方较多,不可过于随心所欲的进行装饰,不过好在,这套房屋的结构相对比较合理,且没有存在各种难处理的小角落,因此设计师将设计的重点放在了如何满足业主及小孩起居需求以及如何营造空间的童心氛围上 6686官方版app


        玄关:


    2.jpg


        本案例的玄关其实就是一个迷你入户走廊,面积并不大,因此设计师仅选择了一幅趣味性十足的挂画作为装饰点缀,避免占用较多空间。


        客厅:


    3.jpg


    4.jpg


        大面积的白色点缀上色彩明快的黄色沙发,一种跳跃而又清新的浪漫之感呼之欲出。叶子形状的灯饰、简约的小绿植则为会客区域增添了一抹自然美。


        餐厅:


    5.jpg


        为了节约室内空间,餐厅被设计在厨房与客厅的拐角处,在满足使用需求的前提下有效节约了空间。卡通造型的门帘既能够保证厨房区域与就餐区域的分隔,又让整个空间多了一抹让人忍俊不禁的童真。


        厨房:


    6.jpg


        由于厨房空间不大,因此设计师在进行设计的时候选用了大量的收纳设计,如悬挂式橱柜、各类挂墙式收纳盒等等,以避免各类瓶瓶罐罐出现在明面上。而方形瓷砖则为空间增添了精致格调。


        卧室:


    151627320137.jpg


        为营造一种清新静谧的氛围,卧室选用了淡蓝色作为主基调色,搭配上质感温润的木质地板,一种温馨舒适感油然而生。


        卫生间:


    QQ截图20220127173636.jpg


        卫生间区域选用了趣味感十足的黑白墙纸进行装饰点缀,搭配以圆形梳妆镜,很好展现了一种超现代的时尚感,而带有粉色卡通造型的地毯则呼应了整个家居空间的童真氛围。


    "6686官方版app"
    6686官方版app - 在施工地
    • 开工
    • 前期
    • 中期
    • 后期
    • 竣工
    "6686官方版app" 预约设计师
    海量行家, 抢订6686注册设计服务
    每日前20名申请用户, 获3D装修设计图
    预约设计师
    姓名*
    楼盘*
    电话*
    *为了您的权益, 您的隐私将严格保密
    推荐相关案例
    6686注册获取同款设计方案 (6686官方版app)
    姓名*
    楼盘*
    电话*
    *为了您的权益, 您的隐私将严格保密
    6686官方版app - 预约成功
    您已报名成功, 稍后会有客服人员联系您。 您的隐私将被严格保密。
    关注二维码了解6686体育装修知识
    联系我们
    装修咨询电话 : 027-82411111
    售后服务电话 : 027-82866788
    公司地址 : 6686平台市江岸区澳门路232号金冠大厦 (6686官方版app)
    6686登录我们
    6686官方版app - 友情链接 :
      66866686官方版app下载官方版-6686官方版app下载2025最新 页面版权所有 jingyu-design.cn

      "6686官方版app" 算一算,您家装修需要花多少钱?

      知精准报价 避装修深坑

      686官方版app - 01/03

      选择您喜欢的风格

      • 现代轻奢

      • 现代美式

      • 北欧

      • 新中式

      • 欧式

      • 其他

      算一算,您家装修要花多少钱?

      知精准报价 避装修深坑

      "6686官方版app" 02/03

      选择房屋面积区间

      • 80-100㎡
      • 100-140㎡
      • 140-200㎡
      • 200-300㎡
      • 300㎡以上

      686官方版app - 03/03

      您的户型

      • 两居室

      • 三居室

      • 四居室

      • 五居室

      • 六居室

      "6686官方版app" 算一算,您家装修要花多少钱?

      知精准报价 避装修深坑

      0%

      稍等片刻,您的报价正在生中......

      686官方版app - 算一算,您家装修要花多少钱?

      知精准报价 避装修深坑

      您的完整报价已经生成

      报名成功享抢订优惠名额

      每日仅限前10名用户