24小时咨询电话 (6686官方版app)
027-82411111
当前位置 : 首页 > 6686官网网页版 > 许顺
找TA设计
细心耐心
DESIGNER
许顺 主任设计师
从业时间 : 2004 作品数量 :7套
司 : 总部旗舰店
业主评价 :
    • 设计非常走心
    • 沟通轻松
    • 建议很合理
    • 工作认真负责
    • 思路明确
    • 配色非常美
    轻奢,法式,美式,中古风,意式风
    • 个人简介
    • 设计理念
    • 经典楼盘
    • 中国建筑装饰协会注册室内高级设计师

      2014年度 美化家居设计大赛优秀设计奖

      2016年度 《筑巢奖》优秀设计奖

      2017年度 APDC亚太室内设计大赛优秀设计奖

      2018年度 IDEA-TOPS国际空间设计入围奖

    • 让艺术与生活零距离 6686官方版app,用设计诠释生活,用灵感点亮生活。


    • 同鑫花园 6686官方版app. 都会轩. 南国明珠. 福星华府. 华润翡翠城.


    相关案例
    户型解析
    在施工地
    其他案例推荐
    户型解析 (6686官方版app)
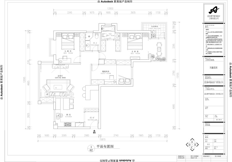
    同鑫花园159㎡三居室现代简约时尚家居户型解析
    "6686官方版app" 三居室
    6686官方版app - 159m²
    现代简约

        案例简介:本案例的业主是一对年轻的90后夫妻,家中的常住人口除了夫妻二人之外还有一个刚上小学的孩子,偶尔父母也会过来探望,因此设计师在进行规划设计的时候,优先考虑业主夫妇与孩子的起居使用需求 6686官方版app,同时为业主选择了简约时尚风进行装饰,借助各类现代化的元素打造出一个时尚而又不失品味的高级家居。


        户型解析:


    1.jpg


        同鑫花园这套159㎡的三居室房屋整个的户型结构并不规整,但也相对比较常见,整体呈现“L”形,因此需要设计师更加合理的进行空间规划,避免由于户型结构不够规整带来的压抑感与局限感,根据业主的需求,设计师将主卧外部空间与主卧区域直接打通,并改造成一个卧室内的卫浴空间,提升主人日常洗漱的便利性,而为了满足业主的阅读,办公需求以及老人偶尔过来探望的居住需求,设计师将一个次卧改造成书房 6686官方版app,同时搭配上可收缩式家具,以满足使用需求。


        客厅:


    2.jpg


        大面积的大理石背景墙与白色水泥墙相得益彰,既不会过于突兀又能够提升空间品质格调感 6686官方版app


        卧室:


    5.jpg


        菱形色彩构成的墙面简约而又不失浓烈的个人色彩,有效提升了空间的品味感与艺术氛围 6686官方版app


        卫生间:





        卫生间借助大面积白色进行装饰 6686官方版app,搭配上灰色储物柜,简约而又不失洁净清新感。


    "6686官方版app"
    "6686官方版app" 在施工地
    • 开工
    • 前期
    • 中期
    • 后期
    • 竣工
    "6686官方版app"
    6686官方版app - 预约设计师
    海量行家, 抢订6686注册设计服务
    每日前20名申请用户, 获3D装修设计图
    6686官方版app - 预约设计师
    姓名*
    楼盘*
    电话*
    *为了您的权益, 您的隐私将严格保密
    推荐相关案例
    6686注册获取同款设计方案
    姓名*
    楼盘*
    电话*
    *为了您的权益, 您的隐私将严格保密
    预约成功
    您已报名成功, 稍后会有客服人员联系您。 您的隐私将被严格保密。
    关注二维码了解6686体育装修知识
    联系我们
    装修咨询电话 : 027-82411111
    "6686官方版app" 售后服务电话 : 027-82866788
    公司地址 : 6686平台市江岸区澳门路232号金冠大厦
    6686登录我们 (6686官方版app)
    友情链接 :
      66866686官方版app下载官方版-6686官方版app下载2025最新 页面版权所有 jingyu-design.cn

      算一算,您家装修需要花多少钱?

      知精准报价 避装修深坑

      "6686官方版app" 01/03

      选择您喜欢的风格

      • 现代轻奢

      • 现代美式

      • 北欧

      • 新中式

      • 欧式

      • 其他

      算一算,您家装修要花多少钱?

      知精准报价 避装修深坑

      "6686官方版app" 02/03

      选择房屋面积区间

      • 80-100㎡
      • 100-140㎡
      • 140-200㎡
      • 200-300㎡
      • 300㎡以上

      "6686官方版app" 03/03

      您的户型

      • 两居室

      • 三居室

      • 四居室

      • 五居室

      • 六居室

      算一算,您家装修要花多少钱?

      知精准报价 避装修深坑

      0%

      稍等片刻,您的报价正在生中......

      算一算,您家装修要花多少钱?

      知精准报价 避装修深坑

      您的完整报价已经生成 (6686官方版app)

      报名成功享抢订优惠名额

      每日仅限前10名用户