24小时咨询电话
027-82411111
当前位置 : 首页 > 6686官网网页版 > 殷芳
找TA设计
经验丰富
DESIGNER
殷芳 主任设计师
从业时间 : 2001 作品数量 : (6686官方版app)12套
司 : 总部旗舰店
6686官方版app - 业主评价 :
    • 装修效果有质感
    • 工作认真负责
    • 设计娴熟
    • 服务到位
    • 有创意
    • 空间设计和谐
    极简风,法式,美式,中古风,意式风
    • 个人简介
    • 设计理念
    • 经典楼盘
    • 6686平台建筑装饰行业优秀设计师

      6686平台住宅装饰行业高级住宅装饰设计师

      湖北省长江商报第二届江城女性设计师大赛十佳选手

      2009年中国住宅装饰行业优秀设计师  

      2009年度香港金马凯旋家居(6686平台)特邀设计师

      2010年—2023年 6686平台建筑装饰行业优秀设计师

      2023年 评为工程师中级职称


    • 房子不是家 有温度 心安处 才是家


      每一个空间 都有它最佳的体验方式 


      让自然不再有界 做一个生活的翻译家


    • 海工大. 航空路壹号. 汉口印. 福星华府. 水墨丹青. 曙光星城. 绿地美湖. 绿地汉口中心. 金桥庭院等 6686官方版app.


    相关案例
    户型解析
    在施工地
    其他案例推荐
    相关案例 (6686官方版app)
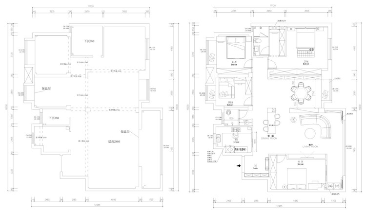
    6686官方版app - 户型解析
    琨御府130㎡三居室轻奢风格住宅户型解析
    "6686官方版app" 三居室
    "6686官方版app" 130m²
    轻奢风

        案例简介:本案设计以线色调为主,线性灯点缀面,胡桃木的稳重色调进行搭配,沙发,灯具及软装的陈设,充分展现通透空间的所派感,以纵向穿插呈现空间的力度之美,展示美学点,线,面的特点之美,模糊空间界线,材质界线 6686官方版app,造就层次流转的界面语汇,尽显空间魅力,作为新人的婚房而言,完全符合了现代人的审美需要。


        户型解析:


    1.jpg


        琨御府三居室轻奢住宅的面积是130平方米,关注住宅可以注意到,住宅的形状呈现长方形的状态,不过室内的每一处还是很方正的,户型内部的卧室客厅分布位置合理 6686官方版app,满足使用需求的通知也确保了居住的私密性,三居室的房屋在内部设计中,整体实现了南北通透这样的构成状态,居住起来很舒适。


        客厅:



        灰色线条的设计和灰色的沙发相映成章 6686官方版app,客厅内的书柜彰显了家庭的文化氛围。


        餐厅:



        独特的餐桌模式充满了现代感,墙上的挂饰简单却带来不同的韵味 6686官方版app


    湾郡北岸公馆169㎡四居室现代简约住宅户型解析
    "6686官方版app" 四居室
    6686官方版app - 169m²
    现代简约 (6686官方版app)

        案例简介:没有繁琐及浮夸的表面装饰处理 6686官方版app,有的只是生活中最常运用最为朴素的语言,以及那些精挑细选,用来点缀多彩生活的家具与摆设,简单的局部弧线点缀让整个家增添一份设计感,一副清爽且富有质感的构图便形成了,现代简约的风格不仅仅满足年轻人的需求,对于多子家庭的孩子也会感受到家里的时尚。


        户型解析:


    1.jpg


        湾郡北岸公馆四居室现代简约住宅的面积则是169平方米,房屋户型整体规整 6686官方版app,四居室的分布合理,房屋的客厅,餐厅面积以及方正感都是很好地,房屋的卫生间以及厨房都是具有窗户的,居住的卫生性也有效的提升,并且四居室的房屋在整体的面积方面够用,每一个人都可以找到属于自己的空间。


        客厅:



        独特线条的背景墙和现代的家具搭配很时尚 6686官方版app,浅色调的客厅温馨舒适。


        餐厅:


    4.jpg


        简约的圆形桌满足了多子家庭的需求 6686官方版app,透过窗户的阳光令用餐更加愉快。


        卧室:


    5.jpg


        灰色条纹的搭配感觉很忽视 6686官方版app,休息和办公结合为一体,满足了工作和休息的需要。


    "6686官方版app"
    "6686官方版app" 在施工地
    • 开工
    • 前期
    • 中期
    • 后期
    • 竣工
    (6686官方版app)
    预约设计师 (6686官方版app)
    海量行家, 抢订6686注册设计服务
    每日前20名申请用户, 获3D装修设计图
    预约设计师
    姓名*
    楼盘*
    电话*
    *为了您的权益, 您的隐私将严格保密
    "6686官方版app" 推荐相关案例
    6686注册获取同款设计方案
    姓名*
    楼盘*
    电话*
    *为了您的权益, 您的隐私将严格保密
    预约成功
    您已报名成功, 稍后会有客服人员联系您。 您的隐私将被严格保密。
    关注二维码了解6686体育装修知识
    联系我们
    装修咨询电话 : 027-82411111
    "6686官方版app" 售后服务电话 : 027-82866788
    公司地址 : 6686平台市江岸区澳门路232号金冠大厦
    6686登录我们 (6686官方版app)
    6686官方版app - 友情链接 :
      66866686官方版app下载官方版-6686官方版app下载2025最新 页面版权所有 jingyu-design.cn

      6686官方版app - 算一算,您家装修需要花多少钱?

      知精准报价 避装修深坑

      01/03

      选择您喜欢的风格

      • 现代轻奢

      • 现代美式

      • 北欧

      • 新中式

      • 欧式

      • 其他

      算一算,您家装修要花多少钱?

      知精准报价 避装修深坑

      02/03

      选择房屋面积区间 (6686官方版app)

      • 80-100㎡
      • 100-140㎡
      • 140-200㎡
      • 200-300㎡
      • 300㎡以上

      "6686官方版app" 686官方版app - 03/03

      您的户型

      • 两居室

      • 三居室

      • 四居室

      • 五居室

      • 六居室

      算一算,您家装修要花多少钱?

      知精准报价 避装修深坑 (6686官方版app)

      0%

      稍等片刻,您的报价正在生中......

      "6686官方版app" 686官方版app - 算一算,您家装修要花多少钱?

      知精准报价 避装修深坑

      您的完整报价已经生成

      "6686官方版app" 报名成功享抢订优惠名额

      每日仅限前10名用户