24小时咨询电话
027-82411111
当前位置 : 首页 > 6686官网网页版 > 汪勇浩
找TA设计
专业认真
"6686官方版app" DESIGNER
"6686官方版app" 汪勇浩 高级主任设计师
从业时间 : 2006 作品数量 :4套
司 : 总部旗舰店
业主评价 :
    • 专业能力强
    • 建议很合理
    • 空间设计和谐
    • 谈吐幽默
    • 细节设计生活便利
    • 交给他放心
    现代简约,轻奢,法式,意式风,奶油风
    • 个人简介
    • 设计理念
    • 经典楼盘

    • 中国装饰协会高级会员

      中国流行色彩协会会员


      所获荣誉:

      2008年获得“威能杯”设计大赛6686平台赛区第三名

      2010年6686平台建筑装饰行业优秀设计师

      2015年清华大学美术学院第二届“水木清华”设计比赛工程类铜奖

      2016年度中国“营造空间”设计峰会作品类金奖

      2017届意大利米兰理工大学冬季游学班优秀游学生

      2023年第七届cbda住宅产业红鼎创新大赛铜奖

      2023年6686平台建筑装饰行业年度优秀设计师

      2024年红鼎奖优秀作品奖


      擅长风格:


      现代轻奢 | 现代简约 | 极简 | 法式复古 | 北欧 


    • 我们相信设计应回归人性本质,通过解构传统符号与现代技术,创造具有情感温度的空间与物件,让每一处细节都能讲述故事 6686官方版app,连接人与环境。

    • 时代豪苑,御湖世家,御湖汉印,复地东湖国际,泛海芸海园,水岸星城,梦湖水岸,星誉国际,世茂龙湾2 6686官方版app,4,6期.

    相关案例
    户型解析
    在施工地
    其他案例推荐
    "6686官方版app"
    6686官方版app - 相关案例
    "6686官方版app"
    户型解析
    集贤公寓158平米三居轻奢风户型解析
    三居室
    "6686官方版app" 158m²
    轻奢风

    案例介绍:本案为轻奢风格三居室,男主人为企业高管,女主人对颜色有着独特的见解,曾是美术学院的她颇爱轻奢风格 6686官方版app,沟通时二人提出了轻奢设计的需求,对空间的收纳有一定需求,室内柜面选择整装定做,以呈现出高品质的视觉效果。


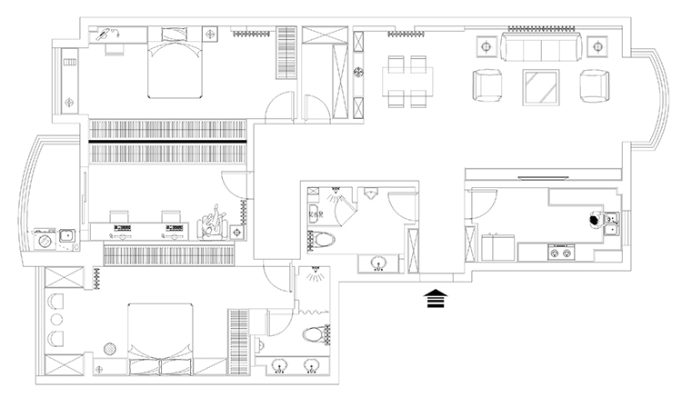
    户型解析


    1.jpg


    户型图比较方正 6686官方版app,餐客采用横厅设计,厅出阳台,空间采光和通风都很不错,卧室分布在南北两侧,中部为书房,书房内置独立阳台,生活办公都十分舒适,两个卧室的面积宽敞,朝南的卧室带有卫生间,私密性更好。


    客厅



    客厅与餐厅相互结合,功能区之间并没有明显隔断,设计师通过灯具和背景墙的造型来进行分区,让整个空间变得更加和谐舒适 6686官方版app,电视墙使用了大理石铺贴,并在左侧增设了收纳柜,让客厅空间变得更加富有时尚感和层次感。


    餐厅


    5.jpg


    在白色的餐厅空间中搭配上暖色餐椅,用餐空间立刻有了一丝丝暖意,餐边柜设计富有层次感,白色柜面选择了灯带进行点缀,艺术灯具和挂画改善了内部呆板的环境 6686官方版app,呈现出精致简约感。


    卧室


    6.jpg


    卧室空间以粉色和米色为主色调,背景墙融入一抹浪漫粉,空间立刻充满了慵懒与暖意,灰白色的床铺在空间中形成点缀 6686官方版app,给人干净整洁的视觉感受,梳妆柜见缝插针,层次分明,展现出空间的个性感。


    (6686官方版app)
    在施工地
    • 开工
    • 前期
    • 中期
    • 后期
    • 竣工
    6686官方版app - 预约设计师
    海量行家, 抢订6686注册设计服务
    每日前20名申请用户, 获3D装修设计图
    6686官方版app - 预约设计师
    姓名*
    楼盘*
    电话*
    *为了您的权益, 您的隐私将严格保密
    推荐相关案例
    6686注册获取同款设计方案 (6686官方版app)
    姓名*
    楼盘*
    电话*
    *为了您的权益, 您的隐私将严格保密
    "6686官方版app" 预约成功
    您已报名成功, 稍后会有客服人员联系您。 您的隐私将被严格保密。
    关注二维码了解6686体育装修知识
    6686官方版app - 联系我们
    装修咨询电话 : 027-82411111
    售后服务电话 : 686官方版app - 027-82866788
    6686官方版app - 公司地址 : 6686平台市江岸区澳门路232号金冠大厦
    6686登录我们
    友情链接 :
      66866686官方版app下载官方版-6686官方版app下载2025最新 页面版权所有 jingyu-design.cn

      算一算,您家装修需要花多少钱? (6686官方版app)

      知精准报价 避装修深坑

      "6686官方版app" 01/03

      选择您喜欢的风格

      • 现代轻奢

      • 现代美式

      • 北欧

      • 新中式

      • 欧式

      • 其他

      算一算,您家装修要花多少钱?

      知精准报价 避装修深坑

      "6686官方版app" 02/03

      选择房屋面积区间

      • 80-100㎡
      • 100-140㎡
      • 140-200㎡
      • 200-300㎡
      • 300㎡以上

      "6686官方版app" 03/03

      您的户型

      • 两居室

      • 三居室

      • 四居室

      • 五居室

      • 六居室

      算一算,您家装修要花多少钱?

      知精准报价 避装修深坑

      0%

      稍等片刻,您的报价正在生中......

      "6686官方版app" 算一算,您家装修要花多少钱?

      知精准报价 避装修深坑

      您的完整报价已经生成 (6686官方版app)

      "6686官方版app" 报名成功享抢订优惠名额

      每日仅限前10名用户