"6686官方版app" 24小时咨询电话
027-82411111
当前位置 : 首页 > 户型解析 > 集贤公寓158平米三居轻奢风户型解析
集贤公寓158平米三居轻奢风户型解析
发布时间 : 2022-04-09 17:30
查看数 : (6686官方版app)

案例介绍:本案为轻奢风格三居室,男主人为企业高管,女主人对颜色有着独特的见解,曾是美术学院的她颇爱轻奢风格 6686官方版app,沟通时二人提出了轻奢设计的需求,对空间的收纳有一定需求,室内柜面选择整装定做,以呈现出高品质的视觉效果。


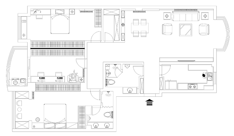
户型解析


1.jpg


户型图比较方正,餐客采用横厅设计,厅出阳台,空间采光和通风都很不错,卧室分布在南北两侧 6686官方版app,中部为书房,书房内置独立阳台,生活办公都十分舒适,两个卧室的面积宽敞,朝南的卧室带有卫生间,私密性更好。


客厅



客厅与餐厅相互结合,功能区之间并没有明显隔断,设计师通过灯具和背景墙的造型来进行分区,让整个空间变得更加和谐舒适,电视墙使用了大理石铺贴,并在左侧增设了收纳柜 6686官方版app,让客厅空间变得更加富有时尚感和层次感。


餐厅


5.jpg


在白色的餐厅空间中搭配上暖色餐椅,用餐空间立刻有了一丝丝暖意,餐边柜设计富有层次感,白色柜面选择了灯带进行点缀,艺术灯具和挂画改善了内部呆板的环境,呈现出精致简约感 6686官方版app


卧室


6.jpg


卧室空间以粉色和米色为主色调,背景墙融入一抹浪漫粉,空间立刻充满了慵懒与暖意,灰白色的床铺在空间中形成点缀,给人干净整洁的视觉感受,梳妆柜见缝插针,层次分明 6686官方版app,展现出空间的个性感。


"6686官方版app"
预约设计师 (6686官方版app)
海量行家, 抢订6686注册设计服务
每日前20名申请用户, 获3D装修设计图
686官方版app - 推荐相关案例
"6686官方版app" 6686注册获取同款设计方案
姓名*
楼盘*
电话*
*为了您的权益, 您的隐私将严格保密
预约成功
您已报名成功, 稍后会有客服人员联系您。 您的隐私将被严格保密。
关注二维码了解6686体育装修知识
"6686官方版app" 联系我们
装修咨询电话 : 027-82411111
售后服务电话 : 027-82866788
公司地址 : 6686平台市江岸区澳门路232号金冠大厦
6686登录我们
6686官方版app - 友情链接 :
    66866686官方版app下载官方版-6686官方版app下载2025最新 页面版权所有 jingyu-design.cn

    算一算,您家装修需要花多少钱?

    知精准报价 避装修深坑

    01/03

    选择您喜欢的风格 (6686官方版app)

    • 现代轻奢

    • 现代美式

    • 北欧

    • 新中式

    • 欧式

    • 其他

    "6686官方版app" 算一算,您家装修要花多少钱?

    知精准报价 避装修深坑

    686官方版app - 02/03

    选择房屋面积区间

    • 80-100㎡
    • 100-140㎡
    • 140-200㎡
    • 200-300㎡
    • 300㎡以上

    03/03 (6686官方版app)

    您的户型

    • 两居室

    • 三居室

    • 四居室

    • 五居室

    • 六居室

    算一算,您家装修要花多少钱? (6686官方版app)

    知精准报价 避装修深坑

    0%

    稍等片刻,您的报价正在生中......

    686官方版app - 算一算,您家装修要花多少钱?

    知精准报价 避装修深坑

    您的完整报价已经生成 (6686官方版app)

    "6686官方版app" 报名成功享抢订优惠名额

    每日仅限前10名用户