24小时咨询电话
027-82411111
当前位置 : 首页 > 6686官网网页版 > 李江波
找TA设计
空间规划
DESIGNER
李江波 主任设计师
"6686官方版app" 从业时间 : 2003 "6686官方版app" 作品数量 :3套
司 : 华中超级旗舰店
业主评价 : (6686官方版app)
    • 很有责任心
    • 对胃口
    • 设计实用又美观
    • 效果和预想一致
    • 审美品位高
    • 成熟稳重
    现代简约
    • 个人简介
    • 设计理念
    • 经典楼盘
    • 2008年6686平台地区优秀设计师

      2010年亚太双年设计大赛全国决赛入围奖

      2010年第7届中国室内设计大奖赛(6686平台赛区)江城年度优秀设计师

      2011年“东鹏杯幸福我家”全国设计大赛湖北赛区第二名

      2012年荣获IAI亚太双年设计大赛决赛入围奖等

      中国建筑装饰协会注册高级设计师

      IAI亚太室内设计师联盟会员

    • 以人为本,一切围绕为人的生活 6686官方版app,生产活动创造美好的室内环境。


    • 碧桂园. 泛海国际. 世纪江尚. 兴华御水澜湾 6686官方版app. 锦绣长江等.


    相关案例
    户型解析
    在施工地
    其他案例推荐
    相关案例 (6686官方版app)
    "6686官方版app"
    户型解析
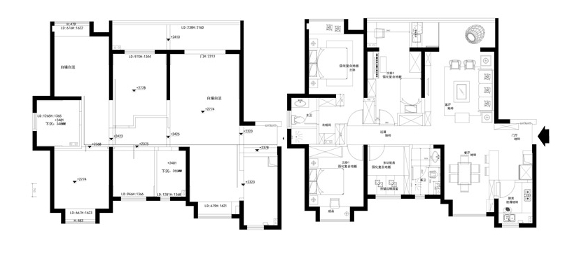
    招商樾望160平米四居室新中式风格户型解析
    "6686官方版app" 四居室
    160m²
    "6686官方版app" 新中式

    案例介绍:纵使脚步匆忙,也难抵业主对生活的向往,本案用横平竖直的线条来勾勒东方古风中神清气朗,干脆利落的气质,还通过家私配饰来描述东方人“知足常乐”,“民以食为天”的闲适自在的心态 6686官方版app


    户型解析


    1.jpg


    户型整体来看较为方正,纵深布局,南北通透,原始户型中,客餐空间墙体过多造成功能区分区明显,为提升空间的空气流通性,令客餐不显局促,设计师调整了结构问题,另外 6686官方版app,将主卧一侧的卫生间规划进主卧中,打造出套房空间,提升了主卧空间的私密感。


    客厅


    3.jpg


    客厅空间利用温润的家具搭配水墨画背景,展现出东方的禅意之美,传达出舒适素雅的格调,沙发,茶几 6686官方版app,灯具,地毯等家具装饰,既彰显了中式的儒雅,又满足现代生活的生活需求。


    餐厅


    4.jpg


    餐厅与客厅之间无明显隔断,背景设计素雅别致,储物柜采用嵌入式设计,餐桌椅造型充满中式气息,餐具,花卉等软装元素一如艺术展品,置身其中,即可慢享生活 6686官方版app


    卧室


    5.jpg


    6.jpg


    卧室的天花线条简约雅致,提升了空间的立体感,两个卧室背景墙都融入了中式画装饰,让卧室空间多了一丝宁静与优雅 6686官方版app


    其他


    151627320137.jpg


    走廊的设计主要在顶面和地面,吊顶与地砖都采用矩形线条勾勒 6686官方版app,提升了过道的空间感,在灯光的渲染下,为整个空间带来了中式格调。


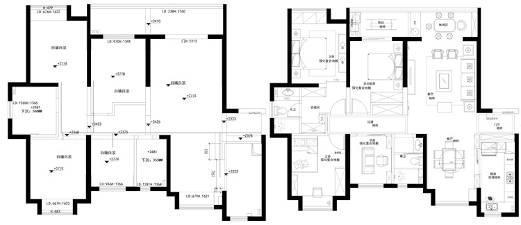
    招商樾望160平米四居室现代简约风格户型解析
    四居室 (6686官方版app)
    160m²
    "6686官方版app" 现代简约

        案例介绍:本案以简化整合,改变后的空间呈上升之势,置身其中给人积极向上之感,表现业主对快乐人生的追求,设计采用吧台把门厅与餐厅两个空间加以适当区分 6686官方版app,形成一个隔而不断,分而不离的互动空间,惬意的,时尚的,成功人士的品质生活体验尽在其中。


        户型解析


    1.jpg


        户型格局总体方正,原始户型中,客餐空间畸角处多,空间利用不合理,多处零碎空间没有得到规划,设计师将厨餐开放式设计,并通过过道划分出客厅与餐厅,功能区变得更加敞亮了,卧室虽然集中分布,但舒适度不高 6686官方版app,设计师在主卧中设计了卫生间,公卫干湿分离,提升了居住的舒适度。


        客厅


    3.jpg


        客厅以低饱和度的家具装饰为主,设计师选择了比较精致的沙发和地毯,同时在搭配上流利的装饰画,突出了客厅的简约与精致;电视墙的设计以功能性为主,黑白二色的相互融入,令室内变得更加高级。


        餐厅


    4.jpg


        餐厅的细节可以感受到现代简约风格自带的温馨之感,大理石餐桌搭配墨绿色餐椅,让空间变得更加时尚,装饰画、灯具和绿植的点缀,赋予了空间活力与生机。


        卧室


    5.jpg


        卧室中使用嵌入式衣柜,空间变得更加通透自然,不仅满足了收纳需求,也提升了卧室的空间感,冷色背景墙与暖色床品的相互结合,令空间变得更加富有艺术性。


    "6686官方版app"
    在施工地 (6686官方版app)
    • 开工
    • 前期
    • 中期
    • 后期
    • 竣工
    预约设计师
    海量行家, 抢订6686注册设计服务
    每日前20名申请用户, 获3D装修设计图
    "6686官方版app" 预约设计师
    姓名*
    楼盘*
    电话*
    *为了您的权益, 您的隐私将严格保密
    "6686官方版app" 推荐相关案例
    6686官方版app - 6686注册获取同款设计方案
    姓名*
    楼盘*
    电话*
    *为了您的权益, 您的隐私将严格保密
    预约成功
    您已报名成功, 稍后会有客服人员联系您。 您的隐私将被严格保密。
    关注二维码了解6686体育装修知识
    6686官方版app - 6686登录我们
    澳华历程
    官方微博 (6686官方版app)
    6686官方版app - 联系我们
    装修咨询电话 : 027-82411111
    售后服务电话 : 027-82866788 (6686官方版app)
    公司地址 : 6686平台市江岸区澳门路232号金冠大厦
    6686登录我们
    友情链接 :
      66866686官方版app下载官方版-6686官方版app下载2025最新 页面版权所有 jingyu-design.cn

      算一算,您家装修需要花多少钱?

      知精准报价 避装修深坑

      "6686官方版app" 01/03

      选择您喜欢的风格

      • 现代轻奢

      • 现代美式

      • 北欧

      • 新中式

      • 欧式

      • 其他

      算一算,您家装修要花多少钱? (6686官方版app)

      知精准报价 避装修深坑

      "6686官方版app" 02/03

      选择房屋面积区间

      • 80-100㎡
      • 100-140㎡
      • 140-200㎡
      • 200-300㎡
      • 300㎡以上

      686官方版app - 03/03

      您的户型

      • 两居室

      • 三居室

      • 四居室

      • 五居室

      • 六居室

      算一算,您家装修要花多少钱?

      知精准报价 避装修深坑 (6686官方版app)

      0%

      稍等片刻,您的报价正在生中......

      算一算,您家装修要花多少钱?

      知精准报价 避装修深坑

      您的完整报价已经生成

      "6686官方版app" 报名成功享抢订优惠名额

      每日仅限前10名用户