24小时咨询电话 (6686官方版app)
027-82411111
当前位置 : 首页 > 户型解析 > 招商樾望160平米四居室新中式风格户型解析
招商樾望160平米四居室新中式风格户型解析
"6686官方版app" 发布时间 : 2022-04-09 17:17
查看数 :

案例介绍:纵使脚步匆忙,也难抵业主对生活的向往,本案用横平竖直的线条来勾勒东方古风中神清气朗,干脆利落的气质 6686官方版app,还通过家私配饰来描述东方人“知足常乐”,“民以食为天”的闲适自在的心态。


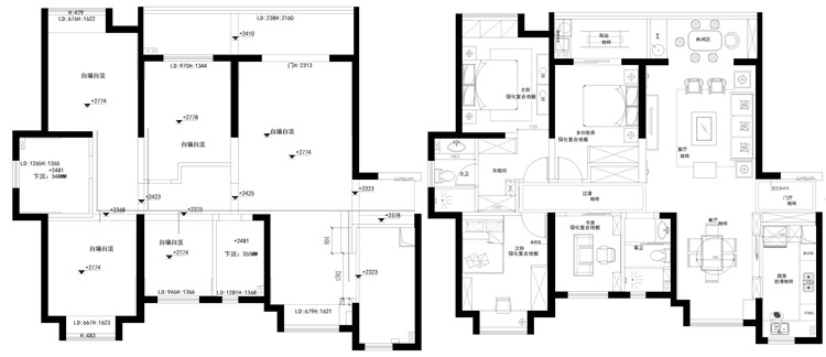
户型解析


1.jpg


户型整体来看较为方正,纵深布局,南北通透 6686官方版app,原始户型中,客餐空间墙体过多造成功能区分区明显,为提升空间的空气流通性,令客餐不显局促,设计师调整了结构问题,另外,将主卧一侧的卫生间规划进主卧中,打造出套房空间,提升了主卧空间的私密感。


客厅


3.jpg


客厅空间利用温润的家具搭配水墨画背景,展现出东方的禅意之美,传达出舒适素雅的格调,沙发,茶几,灯具 6686官方版app,地毯等家具装饰,既彰显了中式的儒雅,又满足现代生活的生活需求。


餐厅


4.jpg


餐厅与客厅之间无明显隔断,背景设计素雅别致,储物柜采用嵌入式设计,餐桌椅造型充满中式气息,餐具,花卉等软装元素一如艺术展品,置身其中 6686官方版app,即可慢享生活。


卧室


5.jpg


6.jpg


卧室的天花线条简约雅致,提升了空间的立体感 6686官方版app,两个卧室背景墙都融入了中式画装饰,让卧室空间多了一丝宁静与优雅。


其他


151627320137.jpg


走廊的设计主要在顶面和地面,吊顶与地砖都采用矩形线条勾勒,提升了过道的空间感,在灯光的渲染下 6686官方版app,为整个空间带来了中式格调。


"6686官方版app"
预约设计师
海量行家, 抢订6686注册设计服务
每日前20名申请用户, 获3D装修设计图
6686注册获取同款设计方案
姓名*
楼盘*
电话*
*为了您的权益, 您的隐私将严格保密
6686官方版app - 预约成功
您已报名成功, 稍后会有客服人员联系您。 您的隐私将被严格保密。
关注二维码了解6686体育装修知识
6686官方版app - 客户服务
在线预约
滴滴专车
售后服务
联系我们 (6686官方版app)
装修咨询电话 : 027-82411111
"6686官方版app" 售后服务电话 : 027-82866788
公司地址 : 6686平台市江岸区澳门路232号金冠大厦
6686登录我们
友情链接 :
    66866686官方版app下载官方版-6686官方版app下载2025最新 页面版权所有 jingyu-design.cn

    算一算,您家装修需要花多少钱?

    知精准报价 避装修深坑

    01/03

    选择您喜欢的风格

    • 现代轻奢

    • 现代美式

    • 北欧

    • 新中式

    • 欧式

    • 其他

    "6686官方版app" 算一算,您家装修要花多少钱?

    知精准报价 避装修深坑

    686官方版app - 02/03

    选择房屋面积区间

    • 80-100㎡
    • 100-140㎡
    • 140-200㎡
    • 200-300㎡
    • 300㎡以上

    03/03

    您的户型

    • 两居室

    • 三居室

    • 四居室

    • 五居室

    • 六居室

    算一算,您家装修要花多少钱?

    知精准报价 避装修深坑

    0%

    稍等片刻,您的报价正在生中......

    算一算,您家装修要花多少钱?

    知精准报价 避装修深坑

    您的完整报价已经生成 (6686官方版app)

    报名成功享抢订优惠名额

    每日仅限前10名用户