6686官方版app - 24小时咨询电话
027-82411111
当前位置 : 首页 > 6686官网网页版 > 程奇
找TA设计
空间规划
686官方版app - DESIGNER
程奇 主任设计师
从业时间 : 2004 作品数量 :4套
司 : 总部旗舰店
6686官方版app - 业主评价 :
    • 功底厚
    • 家庭设计美观
    • 效果和预想一致
    • 经验丰富
    • 造型新潮
    • 专业知识强
    现代简约,轻奢,法式,日式
    • 个人简介
    • 设计理念
    • 经典楼盘
    • 中国室内装饰协会(CIDA)-注册室内设计师

      中国精英设计师国际俱乐部-ICCED精英设计师成员

      6686平台建筑装饰行业优秀设计师2008年荣获6686平台建筑装饰行业优秀设计师

      2010年荣获谦亿杯超级设计师大奖赛最佳设计奖

      2012年获中国室内装饰协会(CIDA)-注册室内设计师

      2015年6686平台市建筑装饰行业优秀设计师

      2019年工匠杯职业技能大赛室内设计大赛优秀奖

      2022年获红鼎奖三等奖

      2023年获红鼎奖优秀奖

    • 设计源于生活,需要不断的沟通和交流,人才是空间的主角,完美的设计是将空间的功能 6686官方版app,先进的装饰材料,个性化的需求有机的结合起来,让生活中的主角能够自由自在的融入属于自己的独特空间。

    • 保利中央公馆. 顶琇国际公馆. 复地东湖国际. 光彩国际. 华发中央首府 6686官方版app. 华发外滩首府. 汉口印. 玖熙台.

    相关案例
    户型解析
    在施工地
    其他案例推荐
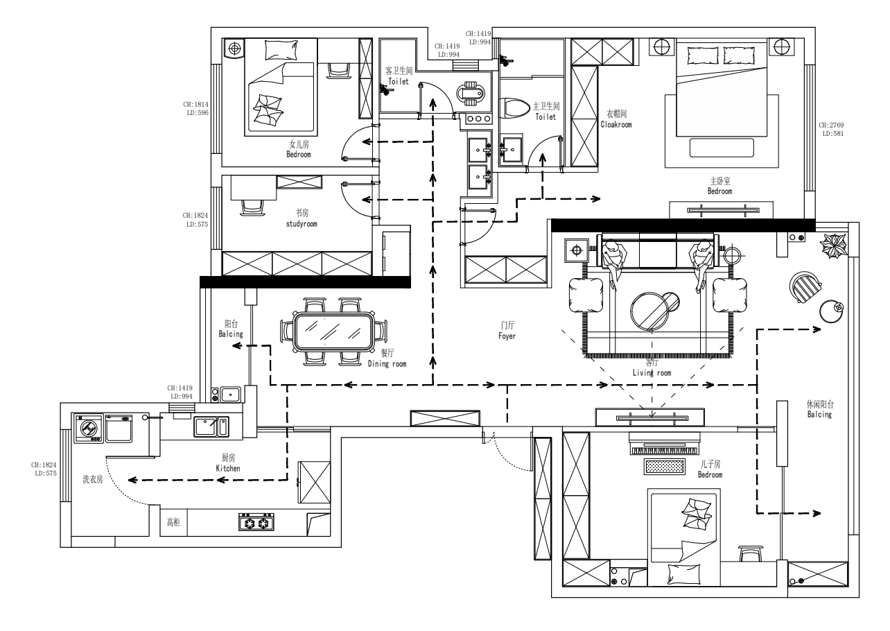
    户型解析 (6686官方版app)
    华发外滩首府180㎡四居室新中式雅苑户型解析
    "6686官方版app" 四居室
    180m²
    新中式

        案例简介:本案例的业主是一对75后夫妻,两个人育有一双儿女,他们对于家的期望就是足够干净整洁且易于打理,因为忙于工作的他们没有太多时间用于家居整理上,基于此 6686官方版app,设计师选择了相对比较耐看且不显脏的新中式装修风,同时融入各种现代化元素来提升空间的时尚气息,以保障家居空间能够更好的为业主服务。


        户型解析:




        华发外滩首府的这套180㎡的四居室住宅原有的户型结构符合业主一家人的起居生活习惯,因此设计师没有对户型进行过多的改动,而为了满足家庭孩子们的阅读,学习需求,设计师将房屋中原本的次卧改造成一个迷你小书房 6686官方版app,而走廊过道处则减少各种花里胡哨的设计,强调简洁,以便于后续生活的清洁打扫。


        客厅:





        优雅的灰色耐看且耐脏,搭配以简约的素雅山水画,让空间流淌着清新的古韵气息 6686官方版app,大面积的落地窗则让室外美景一览无余。


        厨房:


    厨房.jpg

        为了节约空间面积,设计师将厨房打造为开放式设计 6686官方版app,搭配以各种大收纳的橱柜,实用而又耐看。


        卧室:




        淡绿色墙面搭配上白色衣柜 6686官方版app,整体强调清新简洁感,而床头柜处则背带按照成一个迷你办公区,有效提升空间利用率。


        卫生间:


    卫生间.jpg


        大面积的白色简洁清新,搭配以线条深色处理 6686官方版app,勾勒出空间的框架感与结构感。


    (6686官方版app)
    6686官方版app - 在施工地
    • 开工
    • 前期
    • 中期
    • 后期
    • 竣工
    预约设计师
    海量行家, 抢订6686注册设计服务
    每日前20名申请用户, 获3D装修设计图
    预约设计师
    姓名*
    楼盘*
    电话*
    *为了您的权益, 您的隐私将严格保密
    686官方版app - 推荐相关案例
    6686注册获取同款设计方案
    姓名*
    楼盘*
    电话*
    *为了您的权益, 您的隐私将严格保密
    6686官方版app - 预约成功
    您已报名成功, 稍后会有客服人员联系您。 您的隐私将被严格保密。
    关注二维码了解6686体育装修知识
    联系我们
    装修咨询电话 : 027-82411111
    售后服务电话 : 027-82866788 (6686官方版app)
    公司地址 : 6686平台市江岸区澳门路232号金冠大厦
    6686登录我们 (6686官方版app)
    "6686官方版app" 友情链接 :
      66866686官方版app下载官方版-6686官方版app下载2025最新 页面版权所有 jingyu-design.cn

      "6686官方版app" 算一算,您家装修需要花多少钱?

      知精准报价 避装修深坑

      01/03

      选择您喜欢的风格 (6686官方版app)

      • 现代轻奢

      • 现代美式

      • 北欧

      • 新中式

      • 欧式

      • 其他

      "6686官方版app" 算一算,您家装修要花多少钱?

      知精准报价 避装修深坑

      686官方版app - 02/03

      选择房屋面积区间

      • 80-100㎡
      • 100-140㎡
      • 140-200㎡
      • 200-300㎡
      • 300㎡以上

      686官方版app - 03/03

      您的户型

      • 两居室

      • 三居室

      • 四居室

      • 五居室

      • 六居室

      算一算,您家装修要花多少钱?

      知精准报价 避装修深坑

      0%

      稍等片刻,您的报价正在生中......

      算一算,您家装修要花多少钱?

      知精准报价 避装修深坑

      您的完整报价已经生成

      报名成功享抢订优惠名额

      每日仅限前10名用户