"6686官方版app" 24小时咨询电话
027-82411111
当前位置 : 首页 > 6686官网网页版 > 彭军
找TA设计
风格设计
DESIGNER (6686官方版app)
彭军 主任设计师
6686官方版app - 从业时间 : 2008 "6686官方版app" 作品数量 :18套
司 : 总部旗舰店
6686官方版app - 业主评价 :
    • 设计思路明确
    • 成熟稳重
    • 经验丰富
    • 工作认真负责
    • 处理问题很满意
    • 服务到位
    现代简约,轻奢,法式,美式,新中式
    • 个人简介
    • 设计理念
    • 经典楼盘

    • 行业资质:


      中国装饰协会高级会员

      中国建筑装饰协会高级室内设计师

      中国建筑装饰协会高级陈设艺术设计师


      荣获奖项:


      2009年6686平台建筑装饰行业优秀设计师

      2011年6686平台住宅装饰行业资深设计师

      2011年荣获艺博中心白金设计师

      2014年6686平台建筑装饰行业优秀设计师

      6686平台小户型室内装饰设计大赛优秀奖


    • 借开合吐纳空间

      凭线条勾勒筋骨

      用色彩丰润肌理

      著以自然底色

      让万物以最恰当的方式相遇相悦



    • 中建御景星城. 中御公馆 6686官方版app. 三金华都. 美联时光里. 华发外滩首府. 幸福湾. 千禧城. 招商公园. 中建南湖一号. 金融街壹号. 金桥庭院.


    相关案例
    户型解析
    在施工地
    其他案例推荐
    "6686官方版app" 相关案例
    户型解析 (6686官方版app)
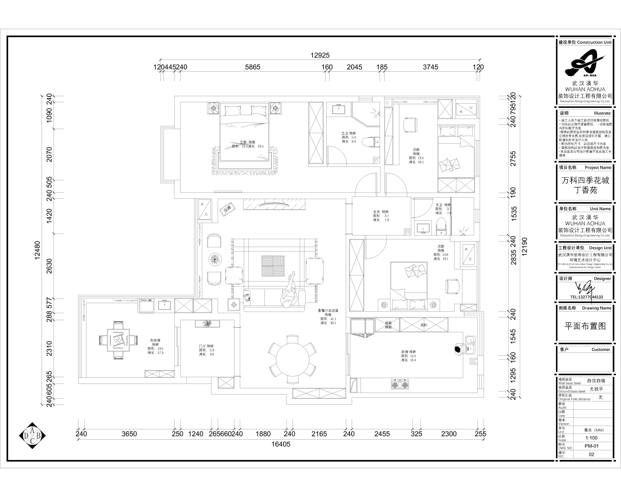
    万科四季花城140㎡三居室中式古韵雅苑户型解析
    三居室
    140m²
    "6686官方版app" 中式

        案例简介:传统中式风多给人以沉稳,大气浑厚感,因此多受老年群体的偏爱,而本案例的业主作为退休人士就对中国传统文化情有独钟,因此设计师在与业主交流后敲定以中式风装饰空间,大面积的核桃木搭配上简约优雅的洁净白,在平衡空间视觉效果的同时给人以清新的悠然古韵美感 6686官方版app


        户型解析:




        万科四季花城这套140㎡的三居室住宅整体结构近似正方形,因此设计师在进行空间规划设计的时候就将客厅作为核心店 6686官方版app,其他功能区域则围绕客厅展开设计,以确保整体空间的和谐感,由于房屋面积不算宽敞,因此设计师在进行装饰设计的时候舍弃了大量中式造型设计,而是借助色彩的搭配与传统韵味画来展示空间的清新古韵感。


        客厅:




        简约木质仿古家具与现代时尚感浓烈的大理石背景墙之间的碰撞,呈现了宜古宜今的独特时尚美 6686官方版app


        次卧:




        大面积的白色点缀山素雅的山水画挂画 6686官方版app,强调清幽雅致的艺术氛围。


        卫生间:


    客卫.jpg

        透明玻璃通透性强,既可以起到干湿分离作用又不会显得过于生硬,黑色镶边处理则为空间增添结构感 6686官方版app


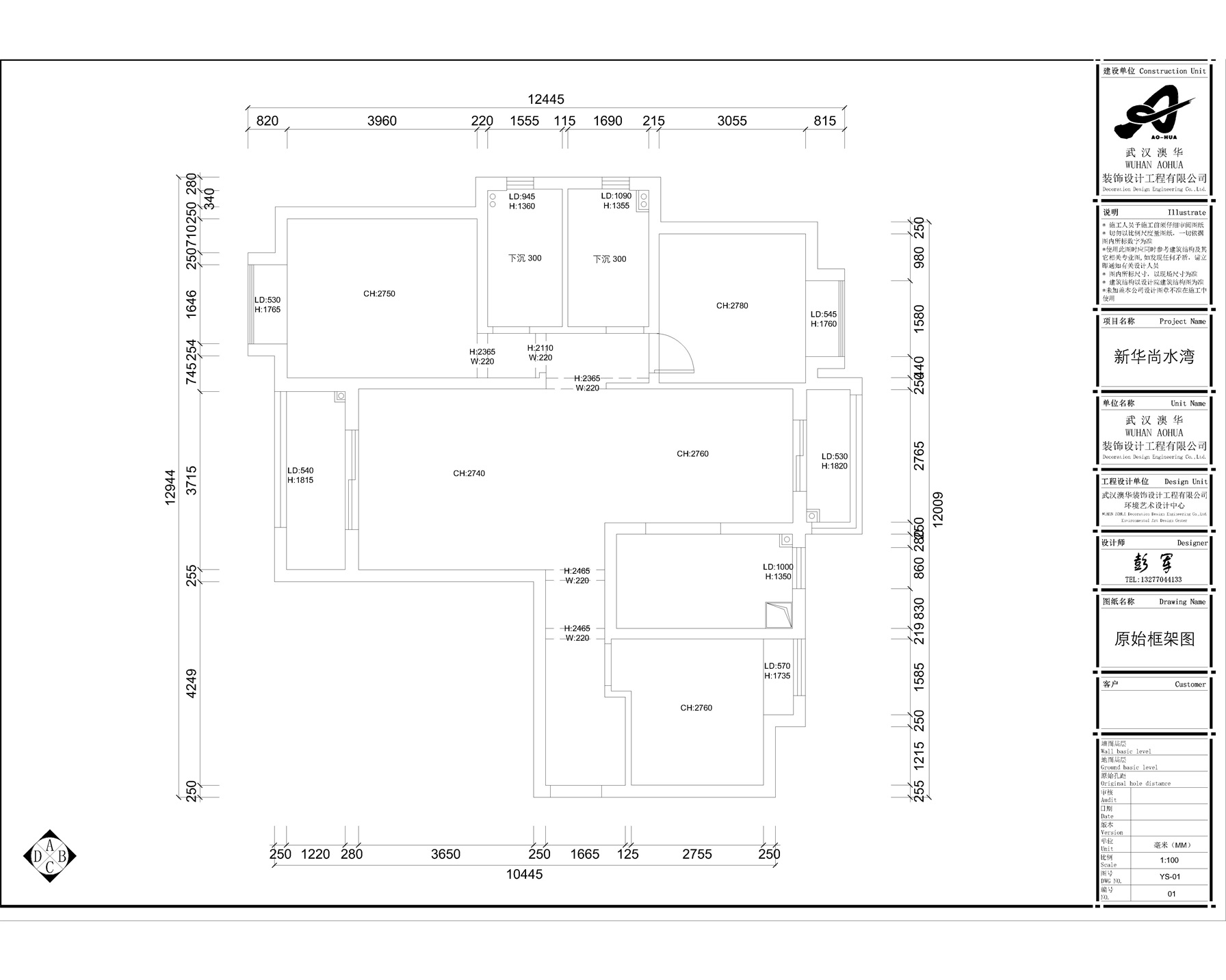
    新华尚水湾137㎡三居室极简个性家居户型解析
    三居室 (6686官方版app)
    137m² (6686官方版app)
    极简

        案例简介:其实对于绝大多数人而言,家不需要花里胡哨的设计,只需要能够给人一种踏实的归属感就足够了,也因此本案例的设计师在与业主进行沟通之后 6686官方版app,舍弃了各种华丽的设计,借助最为常见的灰白配色营造一种温馨舒适感,同时借助简单的墙面设计,在不会显得过于刻意的前提下装饰点缀空间,强调一种简约而又不简单的高级洁净美。


        户型解析:


    新华尚水湾平面布局图.jpg

        新华尚水湾这套137㎡的三居室住宅户型规整且采光好,原有功能分区上的劣势在于走廊过于狭长 6686官方版app,容易给人以闭塞感,因此设计师充分利用户型优势,借助双阳台设计引进自然光,而走廊处则借用吊灯,墙壁等设计提升丰富感,为便利主人日常起居生活,设计师在主卧区域改造出货一个迷你卫浴空间,以提升生活的私密感。


        客厅:


    客厅.jpg

        灰色墙面搭配上以色块组合而成的艺术挂画 6686官方版app,简约而又不失现代时尚氛围,大面积的灰色的配色浅褐色,给人以丰富的视觉效果。


        餐厅:




        就餐区域配色清新又柔和,木色与白色之间的组合营造空间温馨静谧感,墙面圆形艺术挂件简约清新而又不失艺术感 6686官方版app


        书房:


    书房.jpg

        褐色与白色构成的书柜艺术感十足,搭配上简单的圆形摆件,展示主人独特审美与品位。


        厨房:

    厨房.jpg

        大理石台面赋予空间沉稳大气感,半开放式设计让厨房空间更显宽敞大气。


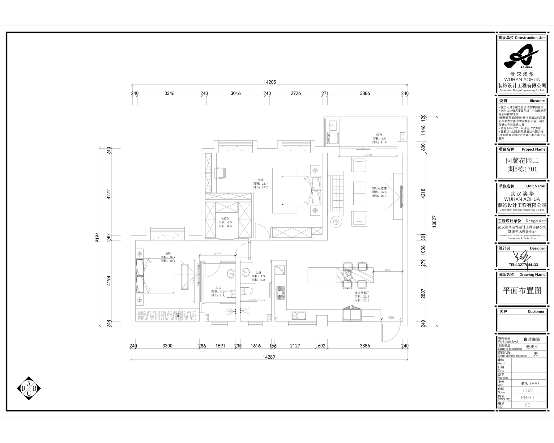
    同馨花园140㎡简约风三居室优雅住宅户型解析户型解析
    三居室
    140m²
    现代简约

        案例简介:在家装设计中有一种设计手法叫做留白,这指的是借助大面积的空白营造空间的韵味感,给人以无限遐想,这是简约风中最为常见的设计手法,能够让人在家居空间中更好的放空自己。而本案例的业主不喜欢设计繁琐的家居空间,希望通过最为简洁的元素打造出干净舒适的休憩空间,因此最终设计师为业主敲定了带有留白设计的简约风软装,通过合理的点缀搭配大面积留白来营造一种独特的优雅高级感。


        户型解析:



        同馨花园这套140㎡的三居室虽然原有的户型结构较为平整四方,且已经完成了基本的分区规划,但是由于不能满足业主日常起居使用需求,因此设计师根据业主个人使用需求将内部次卧区域直接打通,其中一部分向主卧延伸打造成衣帽间,而另外一部分则用于扩大另外一个次卧的面积,以提升生活品质感。厨房区域的墙面则直接打通,将厨房改造成为一个开放式设计,再借助软隔断融入就餐区域,提升空间的利用率。


        客厅:


    客厅.jpg

     

       摒弃各种花里胡哨的设计,借助大理石材质本身的质感提升空间品味。嵌入式背景墙设计既可以节省一定室内空间,又有效保障室内时尚感。


        书房:

    书房.jpg

        书房面积较小,因此仅摆放了简单的桌椅,再搭配上悬挂式收纳柜,满足日常办公、阅读需求。


        卧室




        卧室背景墙借用线条抒发空间简约洁净氛围,舒适柔软的床具搭配上简洁大方的设计,让人在素雅洁净中更好享受生活的宁静。


        卫生间:


    客卫.jpg

        卫生间借用透明玻璃门进行干湿分离,有效提升卫浴环境品质感。


    在施工地
    • 开工
    • 前期
    • 中期
    • 后期
    • 竣工
    "6686官方版app"
    "6686官方版app" 预约设计师
    海量行家, 抢订6686注册设计服务
    每日前20名申请用户, 获3D装修设计图
    预约设计师
    姓名*
    楼盘*
    电话*
    *为了您的权益, 您的隐私将严格保密
    686官方版app - 推荐相关案例
    6686官方版app - 6686注册获取同款设计方案
    姓名*
    楼盘*
    电话*
    *为了您的权益, 您的隐私将严格保密
    预约成功
    您已报名成功, 稍后会有客服人员联系您。 您的隐私将被严格保密。
    关注二维码了解6686体育装修知识
    6686官方版app - 联系我们
    "6686官方版app" 装修咨询电话 : 027-82411111
    售后服务电话 : 686官方版app - 027-82866788
    公司地址 : 6686平台市江岸区澳门路232号金冠大厦
    6686官方版app - 6686登录我们
    友情链接 :
      66866686官方版app下载官方版-6686官方版app下载2025最新 页面版权所有 jingyu-design.cn

      "6686官方版app" 算一算,您家装修需要花多少钱?

      知精准报价 避装修深坑

      "6686官方版app" 01/03

      选择您喜欢的风格

      • 现代轻奢

      • 现代美式

      • 北欧

      • 新中式

      • 欧式

      • 其他

      算一算,您家装修要花多少钱?

      知精准报价 避装修深坑

      "6686官方版app" 02/03

      选择房屋面积区间

      • 80-100㎡
      • 100-140㎡
      • 140-200㎡
      • 200-300㎡
      • 300㎡以上

      03/03

      您的户型

      • 两居室

      • 三居室

      • 四居室

      • 五居室

      • 六居室

      算一算,您家装修要花多少钱?

      知精准报价 避装修深坑

      0%

      稍等片刻,您的报价正在生中......

      算一算,您家装修要花多少钱?

      知精准报价 避装修深坑

      您的完整报价已经生成 (6686官方版app)

      报名成功享抢订优惠名额

      每日仅限前10名用户