24小时咨询电话
027-82411111
当前位置 : 首页 > 6686官网网页版 > 黄盼
找TA设计
风格设计
"6686官方版app" DESIGNER
黄盼 高级主任设计师 (6686官方版app)
从业时间 : 2009 作品数量 :6套
司 : 总部旗舰店
业主评价 :
    • 实用又美观
    • 风格创新前卫
    • 设计非常满意
    • 装修有质感
    • 有创意
    • 交给他放心
    法式,新中式,中古风,意式风,北欧
    • 个人简介
    • 设计理念
    • 经典楼盘
    • 中国装饰协会高级室内设计师

      6686平台建筑装饰协会注册高级室内设计师

      2010年深圳名雕优秀设计师

      2013年中国装饰协和住宅装饰资深设计师



    • 设计源于生活,改变生活,围绕核心“人”既是居住者的使用需求及个性化定制要求,用独特的视角和理念诠释艺术与生活的完美结合,打造恰到好处的宜居空间,以人为本用心营造 6686官方版app,做有温度的设计。



    • 华发外滩首府. 西北湖壹号. 洺悦府. 琨瑜府 6686官方版app. 世纪江尚等.


    相关案例
    户型解析
    在施工地
    其他案例推荐
    (6686官方版app)
    户型解析 (6686官方版app)
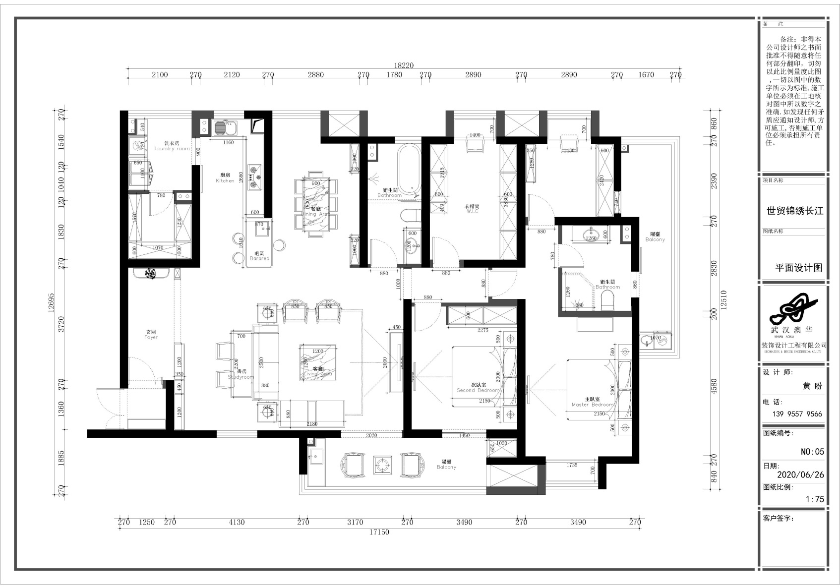
    世茂锦绣长江220㎡四居室新中式复古雅苑户型解析
    大平层
    "6686官方版app" 220m²
    6686官方版app - 新中式

        案例简介:本案例的业主作为一个教师,对于传统的中国文化有着浓厚的兴趣,因此在与设计师交流的时候强烈的表达了自己对中式元素的喜爱,因此在本案例设计过程中,设计师为业主选用了经典的新中式风,同时借助各类质感元素的杂糅使用,演绎了一个复古而又不失摩登时尚氛围的轻奢雅苑,简约的线条,传统的中式复古元素,让家居空间呈现出丰富的层次与艺术的格调 6686官方版app


        户型解析:




        世茂锦绣长江这套四居室的住宅面积大约在220㎡左右,整个户型结构十分方正平整,空间规划没有太大难度,设计师按照业主的需求将休憩空间设置在距离入户门最远的区域,以提升空间的私密感,同时,为满足女主人的起居搭配使用需求 6686官方版app,单独划分出一块衣帽区域,以提升整体的生活品质,整个空间的软装使用了大量的中式元素,以强调复古典雅的轻奢优雅气息。


        玄关:


    01玄关.jpg


        传统中式图案的地板搭配上韵味十足的清新山水画,营造一种温润投河夫人优雅深邃氛围,让人一进门就领略到主人的高雅情调 6686官方版app


        客厅:


    02客厅.jpg


        清冷的灰色暗纹大理石地板搭配上方正的深褐色木质家具,强调沉稳大气格调,对称式的软装设计 6686官方版app,则让整个空间更显优雅稳重气息。


        餐厅:


    03餐厅.jpg


        大面积的大理石瓷砖奠定了清冷通透的空间氛围,搭配以质感温润的木材,有效提升了空间的视觉平衡感 6686官方版app


        主卧:


    04主卧.jpg


        大面积的山水画配以对称式设计 6686官方版app,端庄而又不失典雅气息。


        衣帽间:


    05衣帽间.jpg


        禅意地毯碰上木质衣柜 6686官方版app,一种优雅的格调在空间中流淌,艺术的现代灯饰,则让空间多了一抹时尚气息。


    金悦天地140㎡三居室美式个性住宅户型解析
    "6686官方版app" 6686平台澳华装饰
    "6686官方版app" 140m²
    美式 (6686官方版app)

        案例简介:这套建筑面积140㎡房屋的业主是高阶层白领 6686官方版app,向往美好而又精致的家居生活,因此对于房屋装修设计有着较高的品质需求,一个好的房屋设计其实能够帮助业主选择更为舒适,高品质的生活,本案例的设计师结合业主的审美品位及生活习惯,以带有个性气息的美式风展开进行装修,充分的发挥了房屋的结构优势,打造了一套实用兼具美观的高性能住宅。


        户型解析:

        这套位于金悦天地的三居室住宅面积约为140㎡,业主对房屋原有的户型结构比较满意,因此设计师在对房屋进行规划设计时保留了房屋的原有结构,同时借助不同类型的隔断让各个功能空间分区更加明确,让整个房屋户型呈现出更加简洁舒适、干净利落的状态。再搭配以清新色彩、个性化装饰,让家居空间能够更具趣味感与精致感。


        玄关:


    玄关.jpg


        一个矮脚迷你沙发与深色地毯就构成了一个简单的玄关设计,此外由于空间面积有限,没有做过多装饰设计。


        客厅:


    客厅2.jpg

     

    客厅4.jpg


       客厅整体以温暖舒适的色调为主,融入复古造型的华丽吊灯,强调一种温馨愉悦的氛围感。


        餐厅:


    餐厅1.jpg


    餐厅3.jpg


        带有自然气息的擦座椅搭配上艺术感十足的挂画,清新而又不失精致美。一株简约的亮色花束,则让就餐氛围更加温馨。


        衣帽间:


    衣帽间.jpg


        白色的开放式衣柜搭配上光线明亮的灯具就构成了一个简约的衣帽间,空间没有过多的装饰,强调功能性。


        卧室:


    卧室3.jpg


    卧室2.jpg


       大面积的藕粉色搭配上柔软的床具勾勒出优雅而又柔和的调子,蕾丝边的窗帘设计既少女心十足的台灯,则为空间增添一抹甜美。


        卫生间:


    卫生间1.png


        卫生间沿用了与卧室一直的粉色,强调空间衔接感。温软柔和的冷白色暗纹瓷砖,则让卫生间区域多了一抹洁净冷冽的气息。


    "6686官方版app" 在施工地
    • 开工
    • 前期
    • 中期
    • 后期
    • 竣工
    "6686官方版app" 预约设计师
    海量行家, 抢订6686注册设计服务
    每日前20名申请用户, 获3D装修设计图
    预约设计师
    姓名*
    楼盘*
    电话*
    *为了您的权益, 您的隐私将严格保密
    6686官方版app - 6686注册获取同款设计方案
    姓名*
    楼盘*
    电话*
    *为了您的权益, 您的隐私将严格保密
    6686官方版app - 预约成功
    您已报名成功, 稍后会有客服人员联系您。 您的隐私将被严格保密。
    关注二维码了解6686体育装修知识
    "6686官方版app" 6686登录我们
    澳华历程
    官方微博 (6686官方版app)
    "6686官方版app" 联系我们
    装修咨询电话 : 027-82411111
    售后服务电话 : 027-82866788
    "6686官方版app" 公司地址 : 6686平台市江岸区澳门路232号金冠大厦
    6686官方版app - 6686登录我们
    "6686官方版app" 友情链接 :
      66866686官方版app下载官方版-6686官方版app下载2025最新 页面版权所有 jingyu-design.cn

      算一算,您家装修需要花多少钱?

      知精准报价 避装修深坑

      01/03

      选择您喜欢的风格

      • 现代轻奢

      • 现代美式

      • 北欧

      • 新中式

      • 欧式

      • 其他

      686官方版app - 算一算,您家装修要花多少钱?

      知精准报价 避装修深坑

      "6686官方版app" 02/03

      选择房屋面积区间

      • 80-100㎡
      • 100-140㎡
      • 140-200㎡
      • 200-300㎡
      • 300㎡以上

      "6686官方版app" 03/03

      您的户型

      • 两居室

      • 三居室

      • 四居室

      • 五居室

      • 六居室

      "6686官方版app" 686官方版app - 算一算,您家装修要花多少钱?

      知精准报价 避装修深坑

      0%

      稍等片刻,您的报价正在生中......

      算一算,您家装修要花多少钱?

      知精准报价 避装修深坑

      6686官方版app - 您的完整报价已经生成

      报名成功享抢订优惠名额

      每日仅限前10名用户