<kbd dir="j2eat3TF"></kbd>
6686官方版app - 24小时咨询电话
027-82411111
当前位置 : 首页 > 户型解析 > 世茂锦绣长江220㎡四居室新中式复古雅苑户型解析
6686官方版app - 世茂锦绣长江220㎡四居室新中式复古雅苑户型解析
"6686官方版app" 发布时间 : 2022-03-03 11:04
查看数 : (6686官方版app)

    案例简介:本案例的业主作为一个教师,对于传统的中国文化有着浓厚的兴趣,因此在与设计师交流的时候强烈的表达了自己对中式元素的喜爱,因此在本案例设计过程中,设计师为业主选用了经典的新中式风,同时借助各类质感元素的杂糅使用 6686官方版app,演绎了一个复古而又不失摩登时尚氛围的轻奢雅苑,简约的线条,传统的中式复古元素,让家居空间呈现出丰富的层次与艺术的格调。


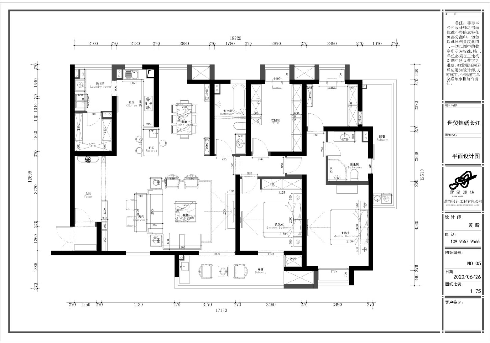
    户型解析:




    世茂锦绣长江这套四居室的住宅面积大约在220㎡左右,整个户型结构十分方正平整,空间规划没有太大难度,设计师按照业主的需求将休憩空间设置在距离入户门最远的区域,以提升空间的私密感,同时,为满足女主人的起居搭配使用需求,单独划分出一块衣帽区域 6686官方版app,以提升整体的生活品质,整个空间的软装使用了大量的中式元素,以强调复古典雅的轻奢优雅气息。


    玄关:


01玄关.jpg


    传统中式图案的地板搭配上韵味十足的清新山水画 6686官方版app,营造一种温润投河夫人优雅深邃氛围,让人一进门就领略到主人的高雅情调。


    客厅:


02客厅.jpg


    清冷的灰色暗纹大理石地板搭配上方正的深褐色木质家具 6686官方版app,强调沉稳大气格调,对称式的软装设计,则让整个空间更显优雅稳重气息。


    餐厅:


03餐厅.jpg


    大面积的大理石瓷砖奠定了清冷通透的空间氛围 6686官方版app,搭配以质感温润的木材,有效提升了空间的视觉平衡感。


    主卧:


04主卧.jpg


    大面积的山水画配以对称式设计 6686官方版app,端庄而又不失典雅气息。


    衣帽间:


05衣帽间.jpg


    禅意地毯碰上木质衣柜,一种优雅的格调在空间中流淌,艺术的现代灯饰,则让空间多了一抹时尚气息 6686官方版app


"6686官方版app" 预约设计师
海量行家, 抢订6686注册设计服务
每日前20名申请用户, 获3D装修设计图
推荐相关案例
6686注册获取同款设计方案
姓名*
楼盘*
电话*
*为了您的权益, 您的隐私将严格保密
预约成功
您已报名成功, 稍后会有客服人员联系您。 您的隐私将被严格保密。
关注二维码了解6686体育装修知识
6686官方版app - 6686登录我们
澳华历程
官方微博 (6686官方版app)
6686官方版app - 联系我们
装修咨询电话 : 027-82411111
售后服务电话 : 027-82866788
"6686官方版app" 公司地址 : 6686平台市江岸区澳门路232号金冠大厦
6686官方版app - 6686登录我们
友情链接 : (6686官方版app)
    66866686官方版app下载官方版-6686官方版app下载2025最新 页面版权所有 jingyu-design.cn

    算一算,您家装修需要花多少钱?

    知精准报价 避装修深坑

    "6686官方版app" 01/03

    选择您喜欢的风格

    • 现代轻奢

    • 现代美式

    • 北欧

    • 新中式

    • 欧式

    • 其他

    算一算,您家装修要花多少钱?

    知精准报价 避装修深坑 (6686官方版app)

    "6686官方版app" 02/03

    选择房屋面积区间

    • 80-100㎡
    • 100-140㎡
    • 140-200㎡
    • 200-300㎡
    • 300㎡以上

    03/03

    您的户型

    • 两居室

    • 三居室

    • 四居室

    • 五居室

    • 六居室

    算一算,您家装修要花多少钱?

    知精准报价 避装修深坑

    0%

    稍等片刻,您的报价正在生中......

    算一算,您家装修要花多少钱?

    知精准报价 避装修深坑

    您的完整报价已经生成

    报名成功享抢订优惠名额

    每日仅限前10名用户