<u lang="t0sj6"></u><center lang="80JaU"></center>
24小时咨询电话
027-82411111
当前位置 : 首页 > 户型解析 > 泛海国际175㎡四居室轻奢品质家居户型解析
"6686官方版app" 泛海国际175㎡四居室轻奢品质家居户型解析
发布时间 : 2022-03-14 12:25
查看数 :

    案例简介:本案例的客户是一口三家,其中男主人是大公司的高管,他希望家居空间能够呈现静谧的舒适感,以提升自己休憩质量,设计师在与业主一家三口进行深入的沟通之后,选择了轻奢风进行软装,同时借助深色系的色彩来营造一种空间的静谧氛围,为了给孩子营造一个充满童真感的休憩空间,儿童房则借助各类幼儿化的元素进行装饰点缀 6686官方版app,打造孩子的梦幻天堂。


    户型解析:


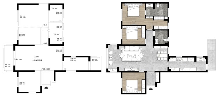
1.jpg


    这套位于泛海国际的四居室住宅建筑面积约为175㎡,户型结构虽然不算很规整,但是好在也没有各种难以设计处理的犄角空间,为了将空间更加合理的利用,设计师将房屋中相对比较突兀的区域改造成厨房,这样能够借助户型的结构将厨房油烟更好的释放出室外 6686官方版app,同时,为了提升主人的家居质量,内部两个小空间则直接融入主卧中改造成主卧附带的卫浴空间与迷你衣帽间。


    客厅:


    大面积的核桃木搭配上深灰色的暗纹地毯 6686官方版app,营造一种幽深的静谧感,大面积的落地窗则让城市的繁华景象成为室内装饰点缀。


    餐厅:


3.jpg


    简约的灰色餐桌椅强调实用性 6686官方版app,墙面处的壁画则为就餐区域增添艺术时尚氛围。


    厨房:


4.jpg


    厨房空间相对比较狭长,因此设计师没有做过多的设计,而是强调可能性,同时借助简约的暗纹瓷砖提升厨房空间的品质格调感 6686官方版app


    卧室:



    灰色背景墙搭配上嵌入式衣柜 6686官方版app,整体给人静谧柔和感,由线条组成的挂画简约清新而又不失个人色彩。


"6686官方版app"
(6686官方版app)
预约设计师
海量行家, 抢订6686注册设计服务
每日前20名申请用户, 获3D装修设计图
"6686官方版app" 推荐相关案例
6686注册获取同款设计方案
姓名*
楼盘*
电话*
*为了您的权益, 您的隐私将严格保密
"6686官方版app" 预约成功
您已报名成功, 稍后会有客服人员联系您。 您的隐私将被严格保密。
关注二维码了解6686体育装修知识
6686登录我们 (6686官方版app)
澳华历程
6686官方版app - 官方微博
联系我们
装修咨询电话 : 027-82411111
售后服务电话 : 027-82866788
公司地址 : 6686平台市江岸区澳门路232号金冠大厦
6686官方版app - 6686登录我们
"6686官方版app" 友情链接 :
    66866686官方版app下载官方版-6686官方版app下载2025最新 页面版权所有 jingyu-design.cn

    算一算,您家装修需要花多少钱?

    知精准报价 避装修深坑

    01/03

    选择您喜欢的风格

    • 现代轻奢

    • 现代美式

    • 北欧

    • 新中式

    • 欧式

    • 其他

    "6686官方版app" 算一算,您家装修要花多少钱?

    知精准报价 避装修深坑

    02/03

    选择房屋面积区间

    • 80-100㎡
    • 100-140㎡
    • 140-200㎡
    • 200-300㎡
    • 300㎡以上

    "6686官方版app" 03/03

    您的户型

    • 两居室

    • 三居室

    • 四居室

    • 五居室

    • 六居室

    "6686官方版app" 算一算,您家装修要花多少钱?

    知精准报价 避装修深坑

    0%

    稍等片刻,您的报价正在生中......

    算一算,您家装修要花多少钱?

    知精准报价 避装修深坑

    "6686官方版app" 您的完整报价已经生成

    报名成功享抢订优惠名额

    每日仅限前10名用户