<font draggable="A0IC7"></font><var lang="qhzCn"><style lang="f52W6"></style></var>
24小时咨询电话
027-82411111
当前位置 : 首页 > 户型解析 > 御江壹品·青山樽154㎡三居室现代时尚住宅户型解...
御江壹品·青山樽154㎡三居室现代时尚住宅户型解析
686官方版app - 686官方版app - 发布时间 : 2022-03-09 12:18
"6686官方版app" 查看数 :

    案例简介:现代低调奢华风格这种气质多数通过一些精致软装和材质的质感来体现,营造出舒适,通透,合理的使用空间,让整个空间透着一种清澈,静怡,宁和,雅致之美,现代轻奢风格强调简单中有奢华感受,看似简洁素净的外表之下融入时尚轻奢的特质,展示着精致优雅的生活态度,不需要走在前端,更不需要炫耀夸赞,低调,舒适,却无损高贵与雅致 6686官方版app,尽情享受生活的美好。


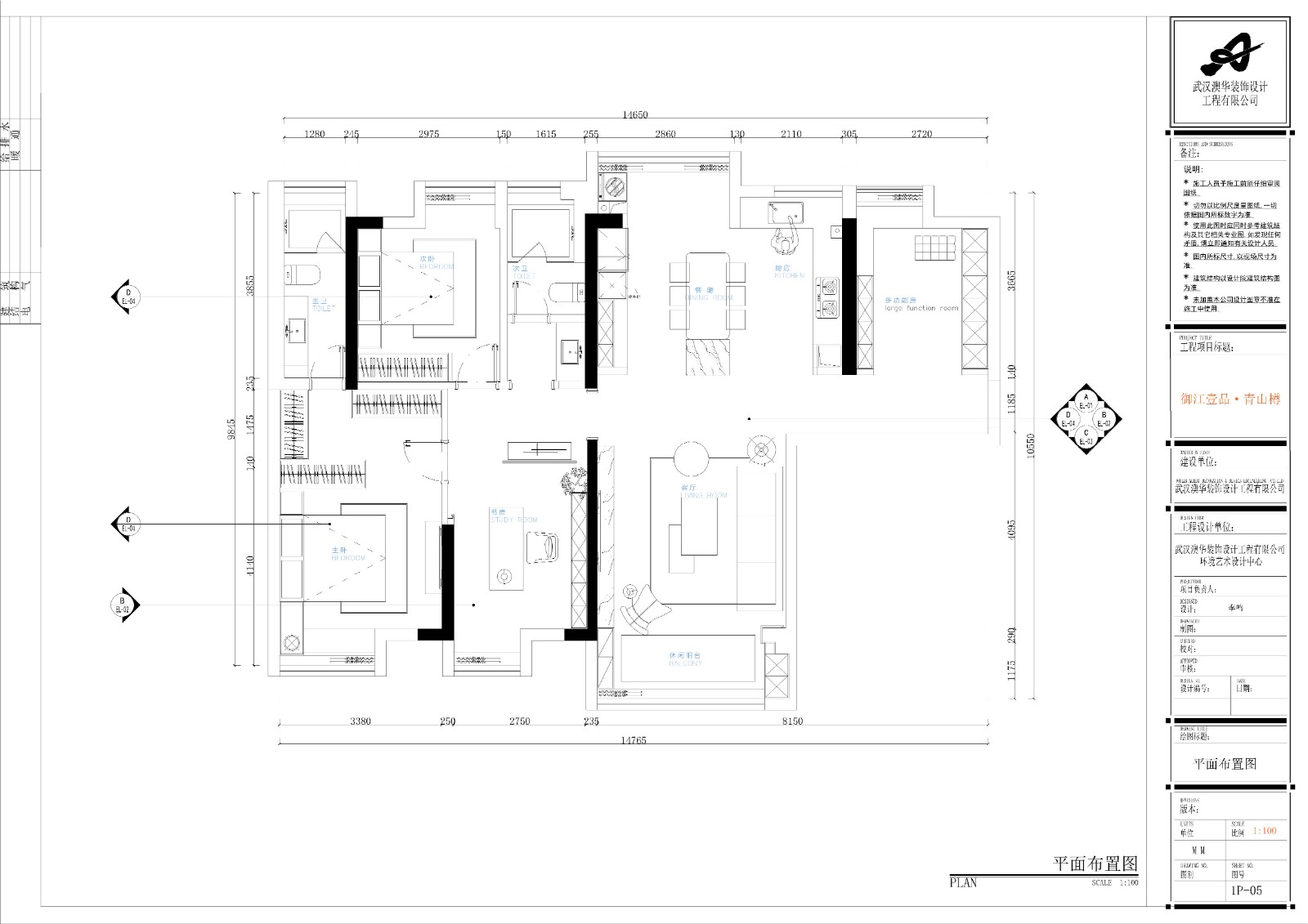
    户型解析:




    御江壹品·青山樽这套三居室的住宅建筑面积约为154㎡,原有的户型结构已经进行了基础的功能分区,而由于入户走廊尽头处的区域面积相对比较宽敞 6686官方版app,因此设计师将该区域纳入纳入主卧空间打造成一个迷你的的衣帽间,同时将旁边小空间的墙面打通设计为主卧区域的洗浴空间,有效提升空间利用率及主人的生活品质感。


    客厅:


客厅.jpg

    嵌入式背景墙设计让电视机“隐身”在墙面处 6686官方版app,有效提升了空间的现代时尚氛围。


    餐厅:


餐厅.jpg

    大面积的浅色大理石材质奠定洁净舒适的氛围感 6686官方版app,搭配以绿色植株,为空间引入自然清新风采。


    书房:




    书房借助木质栅栏进行隔断 6686官方版app,有效提升空间艺术氛围感的同时增添了区域通透感。


    衣帽间:


鞋帽间.jpg

    简单的白色储物柜搭配上灰色地毯,简约清新 6686官方版app,强调实用性。


    主卧:


主卧.jpg

    素色印花墙面清新又耐看,搭配上灰色地毯,增添空间结构感 6686官方版app


预约设计师
海量行家, 抢订6686注册设计服务
每日前20名申请用户, 获3D装修设计图
推荐相关案例
6686注册获取同款设计方案
姓名*
楼盘*
电话*
*为了您的权益, 您的隐私将严格保密
6686官方版app - 预约成功
您已报名成功, 稍后会有客服人员联系您。 您的隐私将被严格保密。
关注二维码了解6686体育装修知识
联系我们 (6686官方版app)
装修咨询电话 : 686官方版app - 027-82411111
售后服务电话 : 686官方版app - 027-82866788
公司地址 : 6686平台市江岸区澳门路232号金冠大厦
6686登录我们 (6686官方版app)
友情链接 :
    66866686官方版app下载官方版-6686官方版app下载2025最新 页面版权所有 jingyu-design.cn

    算一算,您家装修需要花多少钱? (6686官方版app)

    知精准报价 避装修深坑

    "6686官方版app" 01/03

    选择您喜欢的风格

    • 现代轻奢

    • 现代美式

    • 北欧

    • 新中式

    • 欧式

    • 其他

    686官方版app - 算一算,您家装修要花多少钱?

    知精准报价 避装修深坑

    02/03

    选择房屋面积区间

    • 80-100㎡
    • 100-140㎡
    • 140-200㎡
    • 200-300㎡
    • 300㎡以上

    03/03

    您的户型

    • 两居室

    • 三居室

    • 四居室

    • 五居室

    • 六居室

    算一算,您家装修要花多少钱?

    知精准报价 避装修深坑

    0%

    稍等片刻,您的报价正在生中......

    算一算,您家装修要花多少钱? (6686官方版app)

    知精准报价 避装修深坑

    您的完整报价已经生成

    报名成功享抢订优惠名额

    每日仅限前10名用户