24小时咨询电话
027-82411111
当前位置 : 首页 > 户型解析 > 百瑞景160㎡四居室清新自然风舒适家居户型解析
百瑞景160㎡四居室清新自然风舒适家居户型解析
发布时间 : 2022-03-08 11:28
查看数 :

    案例简介:对于在喧嚣闹市中待久了的人来说,自然舒适就成为了寻寻觅觅的心灵休憩,也因此简约的自然家居是大多业主所向往的,本案例的业主也同样不例外,为了给业主营造一个舒适的“室外桃园”,设计师借助大量不加装饰的自然元素进行空间软装 6686官方版app,强调一种“天然去雕饰”的清新自然氛围,为了提升空间的易打理程度,设计师选用了相对比较耐脏的木色与灰色作为主基调色,以提升生活舒适度。


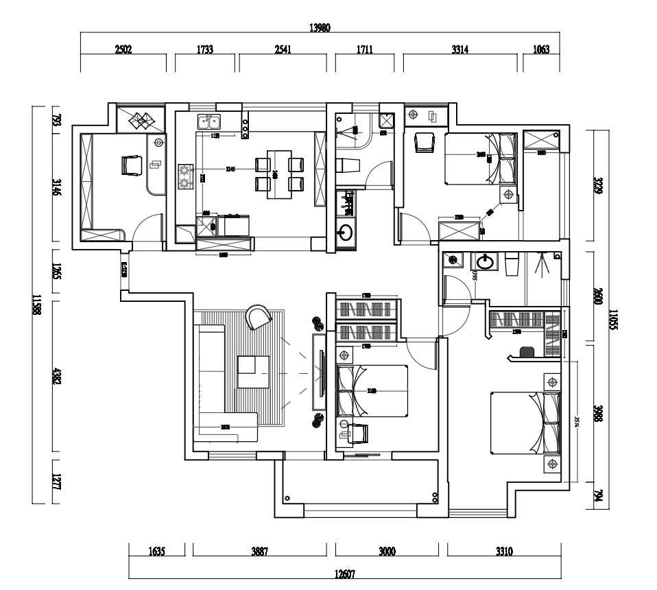
    户型解析:




    

    百瑞景的这套160㎡四居室住宅原有的户型结构相对比较正方平整,不过存在着部分难以利用的小空间,因此设计师在进行规划设计的时候将小空间打通改造,释放空间功能,如客厅区域与卧室区域的外部区域直接打通改造成一个大阳台,将两个小空间整合在一起以提升空间利用率,入户走廊尽头的空间则直接纳入主卧空间并改造成一个迷你的卫浴空间,提升主人日常起居生活的便利度 6686官方版app


    客厅:


客厅.png

图片5.png


    栅栏式的木质背景墙搭配上水泥墙面 6686官方版app,两种自然感元素的碰撞让家居空间更具设计美感。


    餐厅:


餐厅.png


    灰色的地板简约耐看且耐脏 6686官方版app,原木色的储物柜搭配上不规则的分隔,清新而又不失简约艺术美。


    卧室:


卧室.png


    嵌入式白色梳妆台提升空间美感,素色印花地毯则搭配了空间单调感,让休憩空间更具结构律动美 6686官方版app


"6686官方版app"
预约设计师
海量行家, 抢订6686注册设计服务
每日前20名申请用户, 获3D装修设计图
推荐相关案例
6686注册获取同款设计方案
姓名*
楼盘*
电话*
*为了您的权益, 您的隐私将严格保密
"6686官方版app" 预约成功
您已报名成功, 稍后会有客服人员联系您。 您的隐私将被严格保密。
关注二维码了解6686体育装修知识
联系我们
装修咨询电话 : 027-82411111
售后服务电话 : 686官方版app - 027-82866788
6686官方版app - 公司地址 : 6686平台市江岸区澳门路232号金冠大厦
6686登录我们
"6686官方版app" 友情链接 :
    66866686官方版app下载官方版-6686官方版app下载2025最新 页面版权所有 jingyu-design.cn

    算一算,您家装修需要花多少钱?

    知精准报价 避装修深坑

    01/03 (6686官方版app)

    选择您喜欢的风格

    • 现代轻奢

    • 现代美式

    • 北欧

    • 新中式

    • 欧式

    • 其他

    "6686官方版app" 算一算,您家装修要花多少钱?

    知精准报价 避装修深坑

    686官方版app - 02/03

    选择房屋面积区间

    • 80-100㎡
    • 100-140㎡
    • 140-200㎡
    • 200-300㎡
    • 300㎡以上

    "6686官方版app" 03/03

    您的户型

    • 两居室

    • 三居室

    • 四居室

    • 五居室

    • 六居室

    686官方版app - 算一算,您家装修要花多少钱?

    知精准报价 避装修深坑

    0%

    稍等片刻,您的报价正在生中......

    算一算,您家装修要花多少钱?

    知精准报价 避装修深坑

    您的完整报价已经生成 (6686官方版app)

    "6686官方版app" 报名成功享抢订优惠名额

    每日仅限前10名用户