24小时咨询电话
027-82411111
当前位置 : 首页 > 户型解析 > 盛观尚城150㎡四居室轻奢风高端雅苑户型解析
"6686官方版app" 盛观尚城150㎡四居室轻奢风高端雅苑户型解析
发布时间 : 2022-03-08 10:59 (6686官方版app)
查看数 :

    案例简介:本案例的主人公追求高品质生活,希望能够在结束忙碌工作之后尽情感受生活的美好,也因此在家装设计上更追求舒适感与品质感 6686官方版app,而由于平常过来一起闲聊的朋友比较多,因此业主还与设计师强调希望能够将休憩空间与活动空间进行一定隔断,以提升自己与家人生活的私密性,基于此,设计师为业主选择了相对经典耐看而又高级的现代轻奢风,同时借助功能空间的合理划分进行动静分离,提升生活品质。


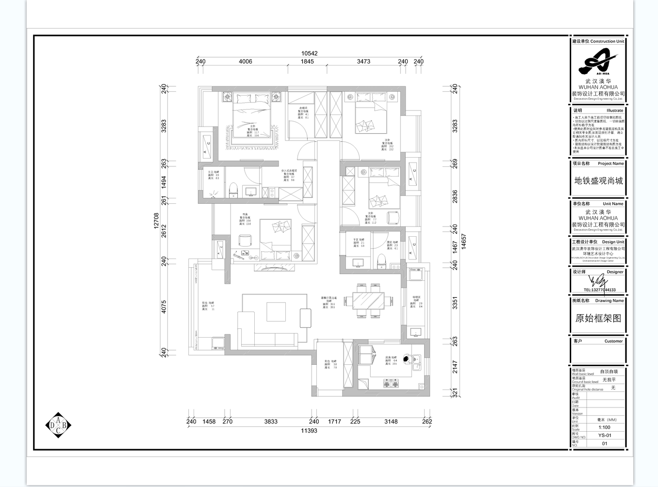
    户型解析:




   

    盛观尚城这套四居室的住宅面积约为150㎡,户型结构方正且平整,无需进行结构户型的大改动,根据业主的想法与需求 6686官方版app,设计师以入户门为分界线,将内部区域打造为卧室,书房等休憩空间,而其于空间则打造为会客区域,做饭区域等相对比较热闹的功能空间,以提升业主及家人休憩的实密度,由于主卧面积较大,因此设计师将主卧空间进行再分割,通过软隔断打造出一个迷你的衣帽间,以避免休憩空间面积过大而带来空荡感。


    客厅:




    几何挂画简约而又充满现代艺术感,搭配上黑色茶几,为空间增添摩登风情 6686官方版app


    餐厅:


餐厅.jpg

   

    就餐区域被设计在客厅区域的延长处,有效提升空间利用率 6686官方版app,镂空深木色橱柜简约而又不失自然风情。



    次卧:


次卧1.jpg

    淡蓝色墙面点缀上简约艺术挂画 6686官方版app,避免空间给人单调区域的视觉效果。


"6686官方版app"
预约设计师
海量行家, 抢订6686注册设计服务
每日前20名申请用户, 获3D装修设计图
"6686官方版app" 推荐相关案例
6686官方版app - 6686注册获取同款设计方案
姓名*
楼盘*
电话*
*为了您的权益, 您的隐私将严格保密
预约成功
您已报名成功, 稍后会有客服人员联系您。 您的隐私将被严格保密。
关注二维码了解6686体育装修知识
"6686官方版app" 联系我们
装修咨询电话 : 027-82411111
售后服务电话 : 686官方版app - 027-82866788
公司地址 : 6686平台市江岸区澳门路232号金冠大厦
6686官方版app - 6686登录我们
友情链接 :
    66866686官方版app下载官方版-6686官方版app下载2025最新 页面版权所有 jingyu-design.cn

    算一算,您家装修需要花多少钱?

    知精准报价 避装修深坑

    686官方版app - 01/03

    选择您喜欢的风格

    • 现代轻奢

    • 现代美式

    • 北欧

    • 新中式

    • 欧式

    • 其他

    "6686官方版app" 算一算,您家装修要花多少钱?

    知精准报价 避装修深坑

    02/03

    选择房屋面积区间

    • 80-100㎡
    • 100-140㎡
    • 140-200㎡
    • 200-300㎡
    • 300㎡以上

    03/03

    您的户型

    • 两居室

    • 三居室

    • 四居室

    • 五居室

    • 六居室

    "6686官方版app" 算一算,您家装修要花多少钱?

    知精准报价 避装修深坑

    0%

    稍等片刻,您的报价正在生中......

    算一算,您家装修要花多少钱?

    知精准报价 避装修深坑

    您的完整报价已经生成 (6686官方版app)

    "6686官方版app" 报名成功享抢订优惠名额

    每日仅限前10名用户