24小时咨询电话
027-82411111
当前位置 : 首页 > 户型解析 > 水岸国际·时代上城 120㎡三居室现代轻奢住宅户...
水岸国际·时代上城 120㎡三居室现代轻奢住宅户型解析
发布时间 : 2022-03-05 19:43
查看数 : 686官方版app -

    案例简介:本案例的业主是一位年轻的80后企业女领导,忙于工作的她对于家居生活空间有着更高的要求,希望能够让自己的心灵在家居空间中更好的得到休憩,因此,设计师在进行装修设计的时候,选用了相对比较柔和的色彩作为主基调色,以营造一种朦胧温馨的视觉效果,而各类材料则优先选用质感强的,以满足女业主的审美需求 6686官方版app


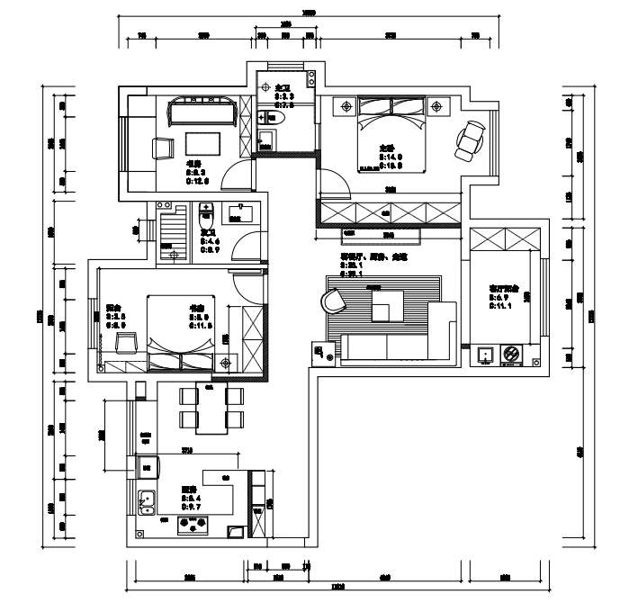
    户型解析:




    水岸国际·时代上城这套三居室的房屋占地面积约为120㎡,原有的户型结构已经进行了基本的功能分区,因此设计师更需要做的是整体的软装设计,根据业主的日常生活习惯及审美,设计师实用了大量少女感十足的元素,同时借助各类隐形收纳提升空间整洁度,而装修风格的选择上,则选用了相对比较素雅高级的现代轻奢风 6686官方版app,与女主人的职业相吻合。


    客厅:




    大面积的素色碰撞上暖色系灯具 6686官方版app,一种朦胧柔和的温馨质感油然而生。


    餐厅:




    浅色系的主基调色搭配上艺术感十足的灯饰 6686官方版app,简约清新而又不失时尚氛围,亮橘色的墙面装饰,则打破了空间的单调感。


    厨房:




    为提升厨房空间的清爽感,该区域选用了大面积的白色作为主基调色 6686官方版app,搭配上暖黄色的灯光,营造一种温馨而又洁净的舒适感。


    卧室:




    艺术挂画搭配上蕾丝边的空调罩,让整个休憩空间充分浓浓的少女感 6686官方版app


    卫生间:




    墙面借助不同色彩浓度的瓷砖进行铺设 6686官方版app,耐看的同时有效提升了空间的结构感。


预约设计师
海量行家, 抢订6686注册设计服务
每日前20名申请用户, 获3D装修设计图
6686官方版app - 6686注册获取同款设计方案
姓名*
楼盘*
电话*
*为了您的权益, 您的隐私将严格保密
预约成功
您已报名成功, 稍后会有客服人员联系您。 您的隐私将被严格保密。
关注二维码了解6686体育装修知识
6686登录我们 (6686官方版app)
澳华历程
官方微博
6686官方版app - 联系我们
装修咨询电话 : 027-82411111
售后服务电话 : 027-82866788
公司地址 : 6686平台市江岸区澳门路232号金冠大厦
6686登录我们
"6686官方版app" 友情链接 :
    66866686官方版app下载官方版-6686官方版app下载2025最新 页面版权所有 jingyu-design.cn

    "6686官方版app" 算一算,您家装修需要花多少钱?

    知精准报价 避装修深坑

    686官方版app - 01/03

    选择您喜欢的风格

    • 现代轻奢

    • 现代美式

    • 北欧

    • 新中式

    • 欧式

    • 其他

    算一算,您家装修要花多少钱?

    知精准报价 避装修深坑 (6686官方版app)

    "6686官方版app" 02/03

    选择房屋面积区间

    • 80-100㎡
    • 100-140㎡
    • 140-200㎡
    • 200-300㎡
    • 300㎡以上

    686官方版app - 03/03

    您的户型 (6686官方版app)

    • 两居室

    • 三居室

    • 四居室

    • 五居室

    • 六居室

    算一算,您家装修要花多少钱?

    知精准报价 避装修深坑

    0%

    稍等片刻,您的报价正在生中......

    算一算,您家装修要花多少钱?

    知精准报价 避装修深坑

    "6686官方版app" 您的完整报价已经生成

    报名成功享抢订优惠名额

    每日仅限前10名用户