24小时咨询电话
027-82411111
当前位置 : 首页 > 户型解析 > 银泰御华园150㎡三居室现代简雅家居户型解析
"6686官方版app" 银泰御华园150㎡三居室现代简雅家居户型解析
发布时间 : 2022-03-04 12:12
查看数 : 686官方版app -

    案例介绍:“做减法”是业主的人生信条,对于新家的定义,也以“简”字贯穿,业主希望自己及家人生活在简单舒适的环境中,不被风格形式所限制 6686官方版app,家具造型及配色历久弥新,能够展现出没有定义的简雅家居生活。


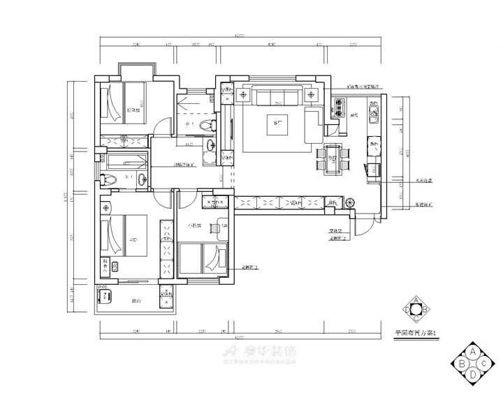
    户型解析

1.jpg


    户型整体方正,厨房靠近大门,是被不容易出现油烟问题,开放式厨房链接餐厅,并与客厅一体化衔接,令整个活动区域更加宽敞明亮,卧室集中分布,主卧带有阳台,方便晾晒衣物 6686官方版app,各个卧室到公卫的距离不远,日常使用方便。


    客厅






    整体以白色为主,顶面和电视墙灯带相互糅合后,呈现出独特的视觉观感,布艺沙发围合式放置,满足了家庭日常社交需求 6686官方版app,地面增置圆形地毯,与方形吊顶对立碰撞,提升了空间的层次感,沙发左侧空间设以收纳柜面,简单的线条勾勒出时尚沉稳的力量。


(6686官方版app)
(6686官方版app)
预约设计师
海量行家, 抢订6686注册设计服务
每日前20名申请用户, 获3D装修设计图
推荐相关案例
6686注册获取同款设计方案
姓名*
楼盘*
电话*
*为了您的权益, 您的隐私将严格保密
预约成功 (6686官方版app)
您已报名成功, 稍后会有客服人员联系您。 您的隐私将被严格保密。
关注二维码了解6686体育装修知识
6686官方版app - 6686登录我们
澳华历程
官方微博 (6686官方版app)
联系我们
装修咨询电话 : 027-82411111
售后服务电话 : 686官方版app - 027-82866788
公司地址 : 6686平台市江岸区澳门路232号金冠大厦 (6686官方版app)
6686官方版app - 6686登录我们
友情链接 :
    66866686官方版app下载官方版-6686官方版app下载2025最新 页面版权所有 jingyu-design.cn

    6686官方版app - 算一算,您家装修需要花多少钱?

    知精准报价 避装修深坑

    01/03

    选择您喜欢的风格

    • 现代轻奢

    • 现代美式

    • 北欧

    • 新中式

    • 欧式

    • 其他

    "6686官方版app" 算一算,您家装修要花多少钱?

    知精准报价 避装修深坑

    "6686官方版app" 686官方版app - 02/03

    选择房屋面积区间

    • 80-100㎡
    • 100-140㎡
    • 140-200㎡
    • 200-300㎡
    • 300㎡以上

    686官方版app - 03/03

    您的户型

    • 两居室

    • 三居室

    • 四居室

    • 五居室

    • 六居室

    "6686官方版app" 算一算,您家装修要花多少钱?

    知精准报价 避装修深坑

    0%

    稍等片刻,您的报价正在生中......

    6686官方版app - 算一算,您家装修要花多少钱?

    知精准报价 避装修深坑

    您的完整报价已经生成

    报名成功享抢订优惠名额

    每日仅限前10名用户