6686官方版app - 24小时咨询电话
027-82411111
当前位置 : 首页 > 户型解析 > 华侨城300㎡五居室欧式品质家居户型解析
"6686官方版app" 华侨城300㎡五居室欧式品质家居户型解析
发布时间 : 2022-03-02 09:41 (6686官方版app)
"6686官方版app" 查看数 :

    案例介绍:女业主是一家上市企业的高管 6686官方版app,夫妻二人都是80后,有一双可爱的子女,二人对生活品质均有较高要求,对这套300㎡的华侨城别墅有较高的装修期待,女业主青睐欧式风格,希望呈现出富丽高雅的视觉氛围,也希望设计师在进行设计时能满足不同年龄段的生活需求,为孩子提供一个足够静谧舒适的学习生活空间。


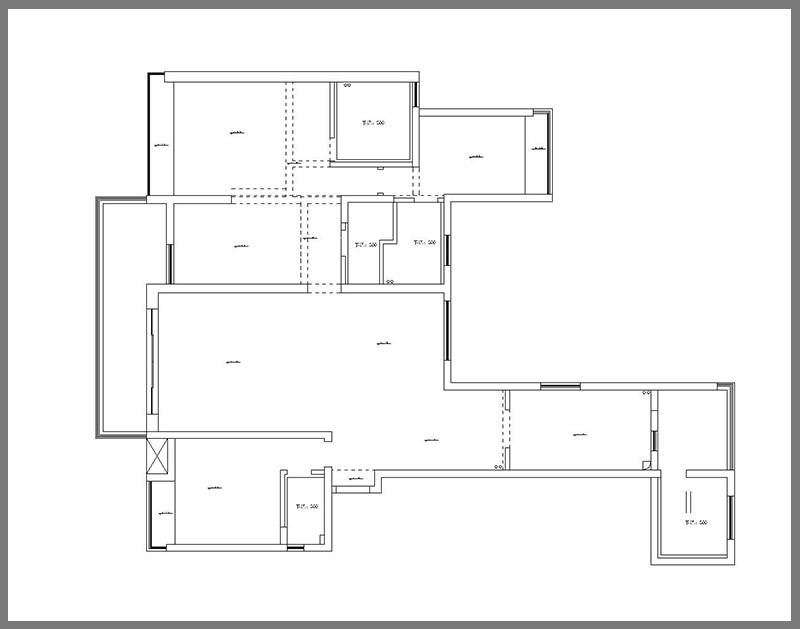
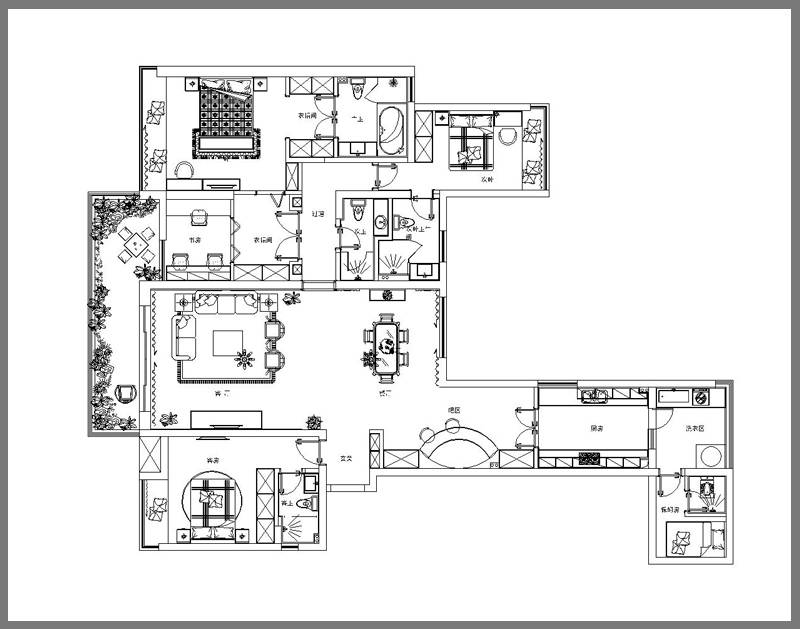
    户型解析


1.jpg


微信图片_20220210151505.jpg


    这套位于华侨城的300平方米五居室户型整体方正归整,客餐一体 6686官方版app,横厅大,公共活动空间宽敞,主次卧带有卫生间,生活舒适度高,户型缺点在于,右下角空间呈手枪型,餐厅到厨房的距离有些狭长,拐角处容易出现采光死角,在这个部分增置了一些软装设计,缓解了空间带来的压抑之感。


    客厅


2.jpg


3.jpg


    客厅吊顶精雕细琢,造型上极为讲究 6686官方版app,整体空间以香槟色为主调,白色,棕色搭配其中,欧式典雅的家具和软装提升了空间层次感,步入空间,瞬间就能感受到这份华丽高贵的空间氛围。


    餐厅


4.jpg


    餐厅位于客厅一侧,菱形砖面的延伸,延续了高贵华丽的调性,左侧墙面增置了镜面装饰,令用餐氛围更加明亮精致 6686官方版app


    卧室


5.jpg


    卧室墙面采用对称手法设计,镜面装饰令空间丰富不失主次,灯光的点缀下,空间显得更为宽敞明亮,背景墙中部采用软包隔音设计 6686官方版app,为主人提供一种安静舒适的生活体验。


"6686官方版app"
"6686官方版app"
"6686官方版app" 预约设计师
海量行家, 抢订6686注册设计服务
每日前20名申请用户, 获3D装修设计图
"6686官方版app" 推荐相关案例
6686注册获取同款设计方案
姓名*
楼盘*
电话*
*为了您的权益, 您的隐私将严格保密
预约成功 (6686官方版app)
您已报名成功, 稍后会有客服人员联系您。 您的隐私将被严格保密。
关注二维码了解6686体育装修知识
6686官方版app - 联系我们
"6686官方版app" 装修咨询电话 : 027-82411111
"6686官方版app" 售后服务电话 : 027-82866788
公司地址 : 6686平台市江岸区澳门路232号金冠大厦 (6686官方版app)
6686登录我们 (6686官方版app)
友情链接 :
    66866686官方版app下载官方版-6686官方版app下载2025最新 页面版权所有 jingyu-design.cn

    "6686官方版app" 算一算,您家装修需要花多少钱?

    知精准报价 避装修深坑

    686官方版app - 01/03

    选择您喜欢的风格 (6686官方版app)

    • 现代轻奢

    • 现代美式

    • 北欧

    • 新中式

    • 欧式

    • 其他

    算一算,您家装修要花多少钱?

    知精准报价 避装修深坑

    02/03

    选择房屋面积区间 (6686官方版app)

    • 80-100㎡
    • 100-140㎡
    • 140-200㎡
    • 200-300㎡
    • 300㎡以上

    686官方版app - 03/03

    您的户型

    • 两居室

    • 三居室

    • 四居室

    • 五居室

    • 六居室

    算一算,您家装修要花多少钱? (6686官方版app)

    知精准报价 避装修深坑

    0%

    稍等片刻,您的报价正在生中......

    算一算,您家装修要花多少钱?

    知精准报价 避装修深坑

    6686官方版app - 您的完整报价已经生成

    6686官方版app - 报名成功享抢订优惠名额

    每日仅限前10名用户