24小时咨询电话
027-82411111
当前位置 : 首页 > 户型解析 > 同馨花园120㎡三居室欧式典雅住宅户型解析
同馨花园120㎡三居室欧式典雅住宅户型解析
发布时间 : 2022-02-28 10:03
"6686官方版app" 查看数 :

    案例简介:


    该房屋装修主要将重点放在了房屋的使用性能及装饰上,因此设计师在进行装饰设计的时候优先业主的起居使用需求与整体装饰效果 6686官方版app,利用紧凑的空间划分来满足业主一家三口的起居使用需求,而在装修风格上,则尊重业主的喜好选择了典雅的欧式风,同时利用各种带有欧式风情的小元素进行空间装饰点缀,以从细节上提升整个房屋空间的装饰美感度。


    户型分析:


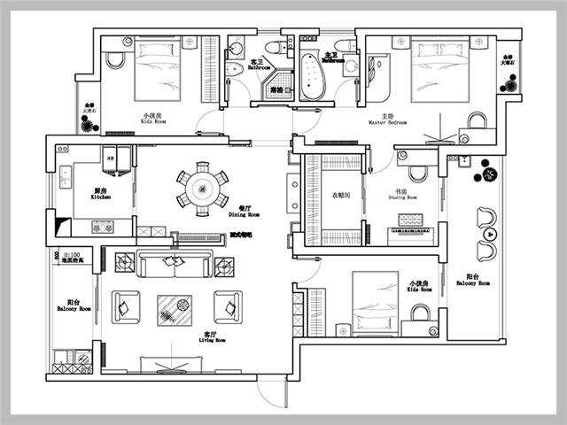
1.jpg


    这套同馨花园三居室住宅面积约为120㎡,虽然房屋空间面积比较大,但是由于所选用的是欧式风格装修空间,对于空间的宽敞度有着较高的要求,因此设计师在对房屋进行装饰设计的时候,扩大了空间的整体采光,让空间从视觉上看起来更加宽敞大气,能够更好呈现欧式风的华贵气息,而衣帽间则与书房设计在同一个空间中 6686官方版app,采用了隔而未隔的软隔断设计,有效的提升的整体空间的使用率。


    客厅1:


2.jpg


    客厅区域选用的是经典的欧式配色,即暖黄色与白色的搭配,通过暖黄色来强调空间的富丽堂皇感,而带有暗纹处理的大理石背景墙搭配上造型华丽的复古吊灯,则让增添了整个空间的欧式风情美 6686官方版app


    客厅2:


3.jpg


    客厅区域的走廊处利用凹陷吊顶设计搭配暖黄色的圆形灯具营造一种简约而又不失典雅的华贵美 6686官方版app,走廊镜头则使用深黄色暗纹的墙纸进行装饰,搭配以清新油画,让空间区域更显明快清新。


"6686官方版app"
6686官方版app - 预约设计师
海量行家, 抢订6686注册设计服务
每日前20名申请用户, 获3D装修设计图
推荐相关案例
6686注册获取同款设计方案
姓名*
楼盘*
电话*
*为了您的权益, 您的隐私将严格保密
预约成功
您已报名成功, 稍后会有客服人员联系您。 您的隐私将被严格保密。
关注二维码了解6686体育装修知识
联系我们 (6686官方版app)
装修咨询电话 : 027-82411111
售后服务电话 : 027-82866788
公司地址 : 6686平台市江岸区澳门路232号金冠大厦
6686登录我们
友情链接 : (6686官方版app)
    66866686官方版app下载官方版-6686官方版app下载2025最新 页面版权所有 jingyu-design.cn

    "6686官方版app" 算一算,您家装修需要花多少钱?

    知精准报价 避装修深坑

    "6686官方版app" 01/03

    选择您喜欢的风格

    • 现代轻奢

    • 现代美式

    • 北欧

    • 新中式

    • 欧式

    • 其他

    算一算,您家装修要花多少钱? (6686官方版app)

    知精准报价 避装修深坑

    "6686官方版app" 02/03

    选择房屋面积区间

    • 80-100㎡
    • 100-140㎡
    • 140-200㎡
    • 200-300㎡
    • 300㎡以上

    03/03

    您的户型

    • 两居室

    • 三居室

    • 四居室

    • 五居室

    • 六居室

    算一算,您家装修要花多少钱?

    知精准报价 避装修深坑 (6686官方版app)

    0%

    稍等片刻,您的报价正在生中......

    算一算,您家装修要花多少钱?

    知精准报价 避装修深坑

    您的完整报价已经生成 (6686官方版app)

    报名成功享抢订优惠名额

    每日仅限前10名用户