<u lang="2RRROZ4"></u><center lang="A2dTC"></center>
"6686官方版app" 24小时咨询电话
027-82411111
当前位置 : 首页 > 6686官网网页版 > 李凡
找TA设计
设计新颖
DESIGNER
李凡 主任设计师
6686官方版app - 从业时间 : 2009 6686官方版app - 作品数量 :9套
司 : 华中超级旗舰店
业主评价 : (6686官方版app)
    • 色彩搭配和谐
    • 易于沟通
    • 设计实用又美观
    • 收纳设计很赞
    • 非常注重细节
    • 注重实用性
    极简风,法式,中古风,意式风,北欧
    • 个人简介
    • 设计理念
    • 经典楼盘
    • 6686平台市装饰协会注册高级设计师

      5+设计会精英设计师协会会员

      6686平台市“金意·陶”杯十佳新锐设计师

      2012年“特地杯”设计优胜奖

      2014年全国“红点”设计奖

      2017年“红鼎设计奖”

      2019年“红棉设计奖”


    • 设计必须来源于生活,服务于生活,高于生活,设计不是单纯的材质的堆砌和传统意义的叠加,也不是一味的借鉴与模仿,我们需要的是与人内心的交融和感情的碰撞 6686官方版app,设计需要情感,摒弃传统的加法,适当的做减法,一样也能与众不同。

    • 汉宫一号,碧桂园别墅,恒大首府,东澜岸别墅,复地东湖国际,当代国际花园别墅,绿地国际金融城,世茂锦绣长江,百瑞景,恒大华府,依山龙郡 6686官方版app,天赋半岛别墅,蓝晶绿洲。

    相关案例
    户型解析
    在施工地
    其他案例推荐
    相关案例
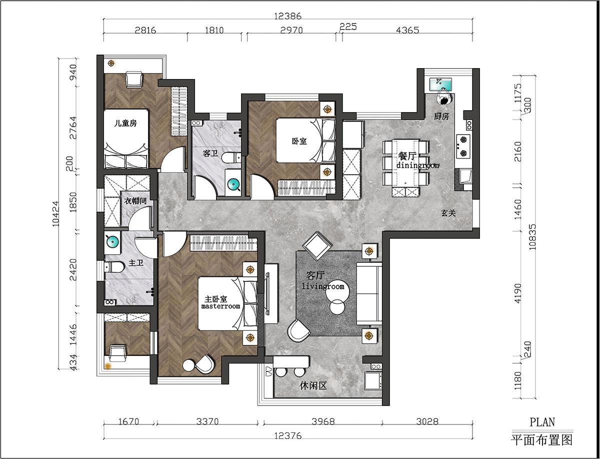
    "6686官方版app" 户型解析
    蓝晶绿洲129㎡三居室美式风户型解析
    686官方版app - 三居室
    129m² (6686官方版app)
    美式 (6686官方版app)

    案例介绍:本案以美式风为硬装基础,合理规划室内空间,并通过软装搭配,将温馨,浪漫的氛围融入居家环境 6686官方版app,让家居生活更幸福。


    户型解析


    6686平台装修公司


    原户型餐厨空间较小,厨房旁小阳台利用率不高,业主希望通过户型改造,增大餐厨空间 6686官方版app,且有做西餐的位置,业主家一儿一女,希望在保持三卧室结构不变的情况下,增加一间书房。


    6686平台装修公司


    对此,设计师选择打开厨房,将空间扩大,形成餐厨一体结构,并于餐厅增设西厨台面,解决台面和冰箱问题 6686官方版app,玄关处用鞋柜隔开过道和餐厅,形成双动线,让空间更加通透和有趣,主卧室把衣帽间和阳台书房利用进来,使空间更合理,功能更强大。


    客厅


    6686平台装修公司


    阳台客厅选用大块地砖通铺,让二者空间合并,形成功能空间和休闲空间,增大室内活动区域 6686官方版app,让生活更便捷。


    顶面的石膏线条简约干练,加以局部金属线条点缀,勾勒出空间层次,提升了整体质感,墙面以实木墙板和墙布搭配铺陈,简单置入一幅装饰画,凝练出温馨雅致的空间语言,造型古朴的电视柜搭配有质感的皮沙发与柔软的细麻布艺窗帘,意外的美观和谐,呈现出温馨的家居氛围 6686官方版app,更透露出一丝文化底蕴。


    餐厅


    6686平台装修公司


    餐厅和玄关形成双动线 6686官方版app,隔断的鞋柜做成通透的感觉,除了阻隔视线还有收纳功能,起到一定的装饰效果。


    餐厨一体设计,让有限的空间得到了更充分的使用,原有小阳台融入厨房使用,厨房呈L型布局 6686官方版app,上下做橱柜,提升了收纳能力,冰箱纳入餐边柜,柜体增设操作台,形成了一个西厨区。


    主卧


    6686平台装修公司


    原有结构的横梁较为突兀,设计师以层级吊顶设计,完美衔接墙体与顶面,让横梁结构更美观和谐 6686官方版app,床头硬包造型线条简洁流畅,再以金色线框勾勒点缀,简约不失质感,主卧整体的配色以清浅柔和为主,营造出温馨舒适的就寝氛围。


    女儿房


    6686平台装修公司


    床头以深浅粉色木饰板材拼接而成,寥寥几笔线条勾勒出层次,使空间协调不沉闷。搭配上造型别致、充满童趣的星月灯、花环灯,为此方空间注入了一丝浪漫情怀,满足孩子的公主梦。


    儿子房


    6686平台装修公司


    业主家的小男孩较为活泼,墙面选用了他喜欢的宇航员遨游太空墙布,满足其对未知探索的好奇心。没有过多的装饰点缀,整体的材质搭配简洁富有层次,让人更好的放松下来,轻松入眠。


    卫生间


    6686平台装修公司


    极窄金属边框玻璃门隔断出淋浴区,美观又实用。深灰瓷砖通铺,更显大气风范;注入一丝格栅元素,提升了时尚精致感。镜柜、吊柜的安装,则提升了生活便捷性。


    "6686官方版app" 在施工地
    • 开工
    • 前期
    • 中期
    • 后期
    • 竣工
    "6686官方版app" 预约设计师
    海量行家, 抢订6686注册设计服务
    每日前20名申请用户, 获3D装修设计图
    预约设计师
    姓名*
    楼盘*
    电话*
    *为了您的权益, 您的隐私将严格保密
    6686注册获取同款设计方案 (6686官方版app)
    姓名*
    楼盘*
    电话*
    *为了您的权益, 您的隐私将严格保密
    预约成功
    您已报名成功, 稍后会有客服人员联系您。 您的隐私将被严格保密。
    关注二维码了解6686体育装修知识
    6686登录我们 (6686官方版app)
    6686官方版app - 澳华历程
    官方微博
    联系我们
    装修咨询电话 : 027-82411111
    售后服务电话 : 686官方版app - 027-82866788
    公司地址 : 6686平台市江岸区澳门路232号金冠大厦 (6686官方版app)
    6686登录我们
    友情链接 :
      66866686官方版app下载官方版-6686官方版app下载2025最新 页面版权所有 jingyu-design.cn

      算一算,您家装修需要花多少钱?

      知精准报价 避装修深坑

      "6686官方版app" 01/03

      选择您喜欢的风格

      • 现代轻奢

      • 现代美式

      • 北欧

      • 新中式

      • 欧式

      • 其他

      "6686官方版app" 算一算,您家装修要花多少钱?

      知精准报价 避装修深坑

      02/03

      选择房屋面积区间

      • 80-100㎡
      • 100-140㎡
      • 140-200㎡
      • 200-300㎡
      • 300㎡以上

      "6686官方版app" 03/03

      您的户型

      • 两居室

      • 三居室

      • 四居室

      • 五居室

      • 六居室

      "6686官方版app" 算一算,您家装修要花多少钱?

      知精准报价 避装修深坑

      0%

      稍等片刻,您的报价正在生中......

      "6686官方版app" 算一算,您家装修要花多少钱?

      知精准报价 避装修深坑

      您的完整报价已经生成

      报名成功享抢订优惠名额 (6686官方版app)

      每日仅限前10名用户