"6686官方版app" 24小时咨询电话
027-82411111
当前位置 : 首页 > 6686官网网页版 > 刘伊琳
找TA设计
细心耐心
DESIGNER
6686官方版app - 刘伊琳 高级主任设计师
从业时间 : 2008 作品数量 :6套
司 : 华中超级旗舰店
业主评价 :
    • 色彩搭配新颖
    • 装修有质感
    • 满足设计需求
    • 经验丰富
    • 专业可靠
    • 服务到位
    现代简约,轻奢,极简风,中古风,意式风
    • 个人简介
    • 设计理念
    • 经典楼盘
    • 中国装饰协会高级会员

      中国建筑装饰协会高级室内设计

      2016年6686平台建筑装饰行业优秀设计师

      2021年空间环境大赛设计优秀作品

      2022年6686平台建筑装饰行业优秀设计师

      2023年人居空间优秀设计师

      2023年6686平台建筑装饰行业优秀设计师

      2024年CBDA住宅产业(红鼎)创新大赛优秀作品


    • 设计是生活的需要,为生活带来方便与情趣 6686官方版app,创造出符合人类生理,心理需求的环境,生活是设计的基础,为设计提供源泉与素材。

    • 中建大公馆. 琨瑜府. 百瑞景 6686官方版app. 华侨城红坊.


    相关案例
    户型解析
    在施工地
    其他案例推荐
    "6686官方版app" 相关案例
    (6686官方版app)
    "6686官方版app" 户型解析
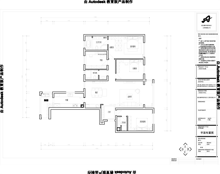
    泛海国际206㎡四居室轻奢格调住宅户型解析
    686官方版app - 四居室
    206m²
    轻奢风 (6686官方版app)

        案例简介:本案例的客户从事教育工作,喜欢家里简单整洁但是要有格调,因此设计师在进行装饰设计的时候,选用了相对比较低调而又不失内含的轻奢风进行软装,同时借助各类细节的装饰点缀提升空间的品质 6686官方版app,彰显主人的高雅审美与情趣。


        户型解析:


    1.jpg


        泛海国际这套四居室的住宅面积约为206㎡,虽然整体面积较为宽敞,但是户型结构并不规整,尤其是一块突兀的狭长型空间需要进行合理的规划设计,否则整个家居空间就会给人强烈的违和感,而本案例的设计师则是直接利用狭长型空间内部空间改造成使用频率并不高的储物间,外部区域则借助本身的结构打造成厨房 6686官方版app,通过户型本身结构起到降低室内油烟的效果,将空间劣势转化为优势。


        玄关:


    2.jpg


        简单的白色木质储物柜搭配上绿植 6686官方版app,简约又清新。


        客厅:


    3.jpg


        木质与大理石材质的碰撞让空间在温润舒适中多了一抹优雅的高级品质感。


        餐厅:


    4.jpg


        嵌入式橱柜隐形感强而又不失实用性 6686官方版app,椭圆形灯饰清新而又不失轻奢时尚感。


        卧室:



        对称式床头设计给人以沉稳典雅气息 6686官方版app,放射式灯饰既吊顶处的金色镶边处理则平添高级格调。


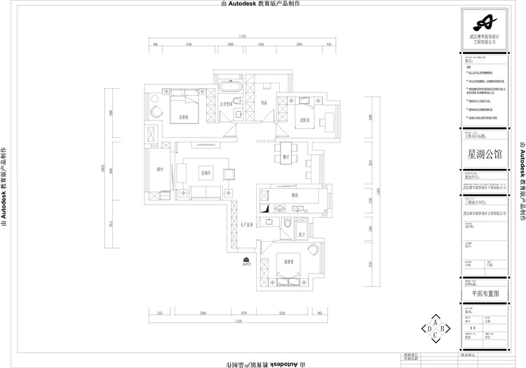
    华润悦府192㎡四居室欧式典雅住宅户型解析
    四居室
    192m² (6686官方版app)
    欧式风 (6686官方版app)

        案例简介:本案例的业主是一个经商商人,平时经常会有好友以及客户来访,因此他希望家装设计能够突出档次感与个人品味,设计师通过与业主进行深入交流后,决定选用华贵气息较为浓烈的欧式风装饰房屋,同时借助大理石打造背景墙,让整个家居空间能够更好的彰显雍容华贵的高级品质感 6686官方版app


        户型解析:


    1.jpg


        华润悦府这套四居室的住宅占地面积约为192㎡,虽然整体的户型面积比较大,但是由于整体结构并不规整且功能空间较多,因此在进行装饰设计的时候就需要设计师合理进行空间规划,同时避免各类繁琐精致的欧式元素造成空间压迫感,为了化解空间户型劣势,设计师将外部存在犄角的区域与阳台直接打通,通过扩大阳台面积合理利用犄角区域 6686官方版app


        玄关:


    2.jpg


        巨型清新欧式油画打造的背景墙搭配上金碧辉煌的吊顶 6686官方版app,让人入门即可感受到欧式贵族气息。


        客厅:



        大面积的大理石材料强调高级品质感,金色吊顶搭配上华丽吊灯,强调格调与档次。


        餐厅:


    6.jpg


        造型精致的木质桌椅搭配上复古窗帘,营造典雅欧式风情美。


        卧室:



        暗纹浅色壁纸简约清新而又不失格调感,复古灯饰与床具则强调空间欧式风情。


        阳台:



        深色复古窗帘营造贵族古韵美,嵌入式灯具即可满足使用需求又不会喧宾夺主。


    东湖城126㎡四居室现代简约优雅住宅户型解析
    四居室
    126m²
    现代简约

        案例简介:本案例的业主是一位90后银行工作职员,对待工作严谨的他对于生活也同样是如此,因此在进行家装过程中他更重视细节的强调,希望能够通过细节强调空间的品质感。设计师在与业主进行深入沟通后,为业主选择了相对比较强调质感的现代简约风,同时借助不同质感的材料装饰空间,强调细节处的高级感。


        户型解析:


    1.jpg


        东湖城这套四居室的住宅占地面积约为126㎡,户型结构并不规整,尤其是入户区域向外延伸的空间显得过于突兀。因此设计师在进行规划设计的时候,重新进行了功能分区的划分,同时考虑到主人生活的私密度与空间实用性,设计师将入户区域的空间直接改造成一个客房,满足客人过夜使用需求。而就餐区域则被设计在厨房尾部与客厅的延伸处,避免整个空间看起来过于空荡的同时有效提升空间利用率。


        玄关:


    2.jpg


        木质储物柜简约又耐看,无灯具式照明强调空间清新优雅高级感。


        客厅:



        简约的灰色点缀上亮橘色皮质沙发,清新而又不失活泼自由感。


        餐厅:


    6.jpg


        就餐区域借助灰色的桌椅进行打造,强调实用性。


        厨房:


    7.jpg


        利用大面积浅色系装饰空间,奠定清爽洁净氛围,木质橱柜门则为空间增添自然温润气息。


        卧室:



        借助不同深度的灰色装饰空间,节约又不失层次感。


        书房:


    11.jpg


        借助储物门做隔断,既可以提升空间利用率,又可以借助各类摆件与书籍进行书房装饰。


    "6686官方版app"
    在施工地
    • 开工
    • 前期
    • 中期
    • 后期
    • 竣工
    预约设计师
    海量行家, 抢订6686注册设计服务
    每日前20名申请用户, 获3D装修设计图
    预约设计师 (6686官方版app)
    姓名*
    楼盘*
    电话*
    *为了您的权益, 您的隐私将严格保密
    推荐相关案例
    6686官方版app - 6686注册获取同款设计方案
    姓名*
    楼盘*
    电话*
    *为了您的权益, 您的隐私将严格保密
    预约成功
    您已报名成功, 稍后会有客服人员联系您。 您的隐私将被严格保密。
    关注二维码了解6686体育装修知识
    6686官方版app - 6686登录我们
    6686官方版app - 澳华历程
    官方微博
    联系我们
    装修咨询电话 : 027-82411111 (6686官方版app)
    "6686官方版app" 售后服务电话 : 027-82866788
    公司地址 : 6686平台市江岸区澳门路232号金冠大厦
    6686登录我们
    友情链接 :
      66866686官方版app下载官方版-6686官方版app下载2025最新 页面版权所有 jingyu-design.cn

      算一算,您家装修需要花多少钱? (6686官方版app)

      知精准报价 避装修深坑

      01/03

      选择您喜欢的风格

      • 现代轻奢

      • 现代美式

      • 北欧

      • 新中式

      • 欧式

      • 其他

      算一算,您家装修要花多少钱?

      知精准报价 避装修深坑

      02/03

      选择房屋面积区间

      • 80-100㎡
      • 100-140㎡
      • 140-200㎡
      • 200-300㎡
      • 300㎡以上

      03/03

      您的户型

      • 两居室

      • 三居室

      • 四居室

      • 五居室

      • 六居室

      算一算,您家装修要花多少钱?

      知精准报价 避装修深坑 (6686官方版app)

      0%

      稍等片刻,您的报价正在生中......

      算一算,您家装修要花多少钱? (6686官方版app)

      知精准报价 避装修深坑

      "6686官方版app" 您的完整报价已经生成

      报名成功享抢订优惠名额

      每日仅限前10名用户