24小时咨询电话
027-82411111
当前位置 : 首页 > 6686官网网页版 > 汪海
找TA设计
经验丰富
DESIGNER
汪海 主任设计师
从业时间 : 2002 6686官方版app - 作品数量 :6套
司 : 总部旗舰店
6686官方版app - 业主评价 :
    • 设计构思巧妙
    • 做事认真
    • 方案规划合理
    • 有创意
    • 专业可靠
    • 交给他放心
    法式,新中式,中古风,意式风,奶油风
    • 个人简介
    • 设计理念
    • 经典楼盘
    • 中国装饰协会高级会员

      中国建筑装饰协会高级室内设计师

      2016筑巢杯全国优秀作品奖

      2017红玺杯最佳优秀表现奖

      2018筑巢杯全国优秀作品奖

      2019欧亚达杯DK设计大赛银奖

      2020年红鼎奖优秀作品

      2021中国室内设计年度评选设计优秀奖

    • 设计来源于生活,服务于生活。

    • 华润悦府,一江璟城,中建大公馆


    相关案例
    户型解析
    在施工地
    其他案例推荐
    "6686官方版app" 相关案例
    "6686官方版app" 户型解析
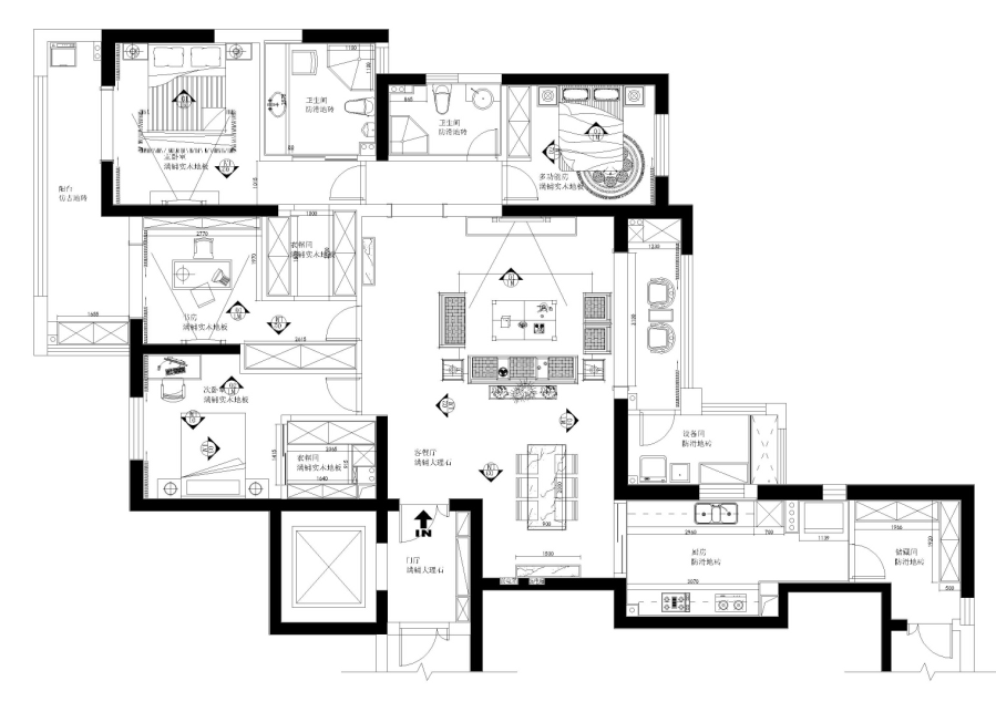
    绿地金融国际城220㎡ 四居室中式雅苑户型解析
    大平层
    220m²
    中式

        案例简介:基于本案例业主的背景 6686官方版app,喜好还有个人追求,设计师选用了中式风格打造空间,从典雅的山水画意境入手,搭配以传统中式住宅设计手法,杂糅现代时尚元素,将传统古风韵味与现代都市生活相融合,呈现出带有现代时尚气息的特色复古住宅,让业主能够在喧嚣的城市中,获得一个心灵栖息之所。


        案例解析:


    QQ截图20190327092653.png


    QQ截图20190327092734.png

        这套位于绿地金融国际城的四居室房屋面积虽然在220㎡左右,但是由于户型并不方正平整,且存在着零碎角落,因此存在着较大的设计难题 6686官方版app,为了让所有的空间都得到合理的充分利用,化解户型缺陷,设计师对空间进行了再规划,将入户处左边的狭长条区域打造成厨房,利用户型的转折减少油烟进入生活空间的概率,同时将该区域进行一定的再切割,规划出一块置物空间,有效提升了家居空间的利用率。


        客厅:




        对称式的设计搭配上带有传统结构制造的木质家具,一种清新典雅的复古韵味在空间中悠然流淌 6686官方版app


        餐厅




        餐厅区域借用淡雅的水墨画起到视觉延伸的作用,搭配以各类带有木材纹理的木质家具 6686官方版app,强调一种空灵的自然典雅之美。


        厨房:




        长条形的厨房空间面积相对比较狭小,因此设计上使用了大量的收纳元素 6686官方版app,减少各类琐碎物件出现在明面上的概率。


        卧室:




        古色古香的卧室门 6686官方版app,做旧复古的吊灯,镶边处理的吊灯让卧室洋溢着一股古韵气息,而淡蓝色的床具则让空间多一抹轻快明丽的气息。


        卫生间:


    卫生间.jpg

        暗纹的灰色瓷砖墙面为卫生间空间营造了一种清冷洁净的氛围,而带有传统总是元素的镜子则让卫生间区域与整个家居空间更加契合 6686官方版app


    "6686官方版app" 在施工地
    • 开工
    • 前期
    • 中期
    • 后期
    • 竣工
    "6686官方版app" 预约设计师
    海量行家, 抢订6686注册设计服务
    每日前20名申请用户, 获3D装修设计图
    预约设计师
    姓名*
    楼盘*
    电话*
    *为了您的权益, 您的隐私将严格保密
    6686注册获取同款设计方案
    姓名*
    楼盘*
    电话*
    *为了您的权益, 您的隐私将严格保密
    "6686官方版app" 预约成功
    您已报名成功, 稍后会有客服人员联系您。 您的隐私将被严格保密。
    关注二维码了解6686体育装修知识
    "6686官方版app" 联系我们
    装修咨询电话 : 027-82411111
    售后服务电话 : 027-82866788
    公司地址 : 6686平台市江岸区澳门路232号金冠大厦
    6686登录我们
    友情链接 :
      66866686官方版app下载官方版-6686官方版app下载2025最新 页面版权所有 jingyu-design.cn

      算一算,您家装修需要花多少钱?

      知精准报价 避装修深坑 (6686官方版app)

      01/03

      选择您喜欢的风格

      • 现代轻奢

      • 现代美式

      • 北欧

      • 新中式

      • 欧式

      • 其他

      算一算,您家装修要花多少钱? (6686官方版app)

      知精准报价 避装修深坑

      02/03

      选择房屋面积区间

      • 80-100㎡
      • 100-140㎡
      • 140-200㎡
      • 200-300㎡
      • 300㎡以上

      "6686官方版app" 03/03

      您的户型

      • 两居室

      • 三居室

      • 四居室

      • 五居室

      • 六居室

      6686官方版app - 算一算,您家装修要花多少钱?

      知精准报价 避装修深坑

      0%

      稍等片刻,您的报价正在生中......

      6686官方版app - 算一算,您家装修要花多少钱?

      知精准报价 避装修深坑

      6686官方版app - 您的完整报价已经生成

      报名成功享抢订优惠名额

      每日仅限前10名用户