24小时咨询电话
027-82411111
当前位置 : 首页 > 6686官网网页版 > 杨帆
找TA设计
认真负责
DESIGNER
杨帆 主任设计师
6686官方版app - 从业时间 : 2006 作品数量 :12套
司 : 华中超级旗舰店
6686官方版app - 业主评价 :
    • 装修有品质
    • 谈话沉稳
    • 设计功底厚
    • 经验丰富
    • 构思巧妙
    • 亲自指导施工
    法式,新中式,中古风,意式风,北欧
    • 个人简介
    • 设计理念
    • 经典楼盘
    • 20076686平台DK设计师银奖

      2008“威能杯”中国室内设计明星博客大赛6686平台赛区银奖

      2012年被评为6686平台建筑装饰行业优秀设计师

      2017年获6686平台市空间环境艺术设计大赛二等奖

      2019年被评为6686平台建筑装饰行业优秀设计师

    • 设计师在考虑空间风格的同时,最重要是遵从主人的生活习惯 6686官方版app,不仅要考虑到空间的视觉效果,更重要的是空间的合理安排,打造舒适的居家环境。


    • 高尔夫别墅,碧海花园别墅,广电兰亭时代,葛洲坝国际花园,泛海国际,星悦城,融创观澜府,顶绣晶城,华润翡翠城,远洋万和四季,华润中央花园 6686官方版app,幸福湾。

    相关案例
    户型解析
    在施工地
    其他案例推荐
    "6686官方版app"
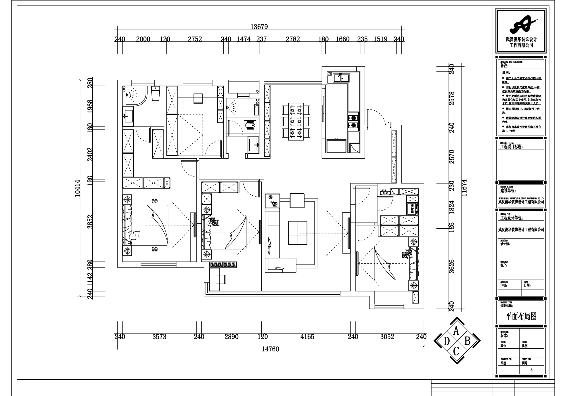
    户型解析 (6686官方版app)
    融创观澜府 143㎡ 四居室现代轻奢格调雅居户型解析
    四居室
    143m² (6686官方版app)
    "6686官方版app" 轻奢风

        案例简介:本案例的业主是一对年轻的夫妇,两人均喜欢简洁干净的元素,不喜欢各类繁琐而又负责的设计,因此设计师在对本案例房屋进行规划设计的时候,选择了简约感较为浓烈的现代轻奢风格,同时减少空间的造型设计,色彩也优先选择各类素雅洁净的色调,以满足两位业主的审美 6686官方版app,同时,为满足女主人的使用需求,设计师还单独规划出一个迷你的衣帽间,以起到衣服替换,放置的使用需求。


        户型解析:









        这套融创观澜府的四居室房屋建筑面积在143㎡左右,房屋的结构已经有了雏形,且业主为了节约装修花销,提议设计师在原有的户型结构上进行装修设计,因此设计师保留了原有的功能结构,同时借助色彩,材质等软装元素为房屋进行“包装” 6686官方版app,以保障装修效果,同时,为提升空间质感,设计师选用了大量“隐形”设计,如材质本身的纹理等,以起到在无形中装饰空间的作用。


        客厅:









        借用隐形门作为电视背景墙 6686官方版app,艺术感十足而又有效提升了艺术墙面的利用度。


        餐厅:




        嵌入式的“隐形”置物柜有效提升了空间利用率,亮橘色的椅子则有效提升了空间的跳跃感与视觉舒适度 6686官方版app


        厨房:




        简约的木材搭配上清冷感十足的藕色瓷砖 6686官方版app,清爽中又透露着一抹自然气息。


        儿童房:



        带有童真感的衣柜利用镂空设计起到造型打造的作用 6686官方版app,趣味性十足而又不失去实用性。


    • 开工
    • 前期
    • 中期
    • 后期
    • 竣工
    (6686官方版app)
    预约设计师
    海量行家, 抢订6686注册设计服务
    每日前20名申请用户, 获3D装修设计图
    "6686官方版app" 预约设计师
    姓名*
    楼盘*
    电话*
    *为了您的权益, 您的隐私将严格保密
    686官方版app - 推荐相关案例
    "6686官方版app" 6686注册获取同款设计方案
    姓名*
    楼盘*
    电话*
    *为了您的权益, 您的隐私将严格保密
    预约成功
    您已报名成功, 稍后会有客服人员联系您。 您的隐私将被严格保密。
    关注二维码了解6686体育装修知识
    6686官方版app - 6686登录我们
    "6686官方版app" 澳华历程
    官方微博
    联系我们
    装修咨询电话 : 027-82411111
    售后服务电话 : 027-82866788
    公司地址 : 6686平台市江岸区澳门路232号金冠大厦
    6686登录我们
    6686官方版app - 友情链接 :
      66866686官方版app下载官方版-6686官方版app下载2025最新 页面版权所有 jingyu-design.cn

      6686官方版app - 算一算,您家装修需要花多少钱?

      知精准报价 避装修深坑

      01/03 (6686官方版app)

      选择您喜欢的风格

      • 现代轻奢

      • 现代美式

      • 北欧

      • 新中式

      • 欧式

      • 其他

      6686官方版app - 算一算,您家装修要花多少钱?

      知精准报价 避装修深坑

      "6686官方版app" 02/03

      选择房屋面积区间

      • 80-100㎡
      • 100-140㎡
      • 140-200㎡
      • 200-300㎡
      • 300㎡以上

      "6686官方版app" 03/03

      您的户型

      • 两居室

      • 三居室

      • 四居室

      • 五居室

      • 六居室

      算一算,您家装修要花多少钱?

      知精准报价 避装修深坑

      0%

      稍等片刻,您的报价正在生中......

      算一算,您家装修要花多少钱?

      知精准报价 避装修深坑

      您的完整报价已经生成 (6686官方版app)

      报名成功享抢订优惠名额

      每日仅限前10名用户