24小时咨询电话 (6686官方版app)
027-82411111
当前位置 : 首页 > 6686官网网页版 > 毛伟
找TA设计
设计独特
DESIGNER
毛伟 主任设计师 (6686官方版app)
从业时间 : (6686官方版app) 2001 作品数量 :13套
司 : 华中超级旗舰店
"6686官方版app" 业主评价 :
    • 专业可靠
    • 很有责任心
    • 设计实用性强
    • 满足功能需求
    • 风格创新前卫
    • 交给他放心
    现代简约,极简风,新中式,意式风,欧式
    • 个人简介
    • 设计理念
    • 经典楼盘
    • 中国装饰协会高级会员

      中国建筑装饰协会高级室内设计师

      2016年黄鹤杯设计大赛一等奖

    • 优秀的设计是尊重使用者的生活方式和情趣,用自己的专业权衡实际环境及功能,兼顾视觉和实用性 6686官方版app,结合氛围,意境等心理环境和文化内涵打造一个美观和人性化的宜居空间。

    • 恒大城 6686官方版app. 南德国际城. 招商1872. 顶琇国际公馆. 复地东湖国际. 华润置地橡树湾. 联投花山郡别墅. 幸福时代. 金地圣爱米伦. 世茂锦绣长江.

    相关案例
    户型解析
    在施工地
    其他案例推荐
    相关案例
    户型解析 (6686官方版app)
    中建御景星城151㎡二居室现代简约高档住宅户型解析
    二居室 (6686官方版app)
    "6686官方版app" 151m²
    现代简约

        案例简介:作为一个幸福的三口之家,本案例业主在进行空间装饰的时候没有提出过多的要求,只强调整体以简约为主 6686官方版app,且需要满足孩子的审美,因此设计师在与业主进行深入交流,在充分了解孩子审美的前提下对空间进行了一定的装饰设计,整体选择现代简约风进行软装,通过材料本身的质感对空间进行一定的装饰,强调低调轻奢美。


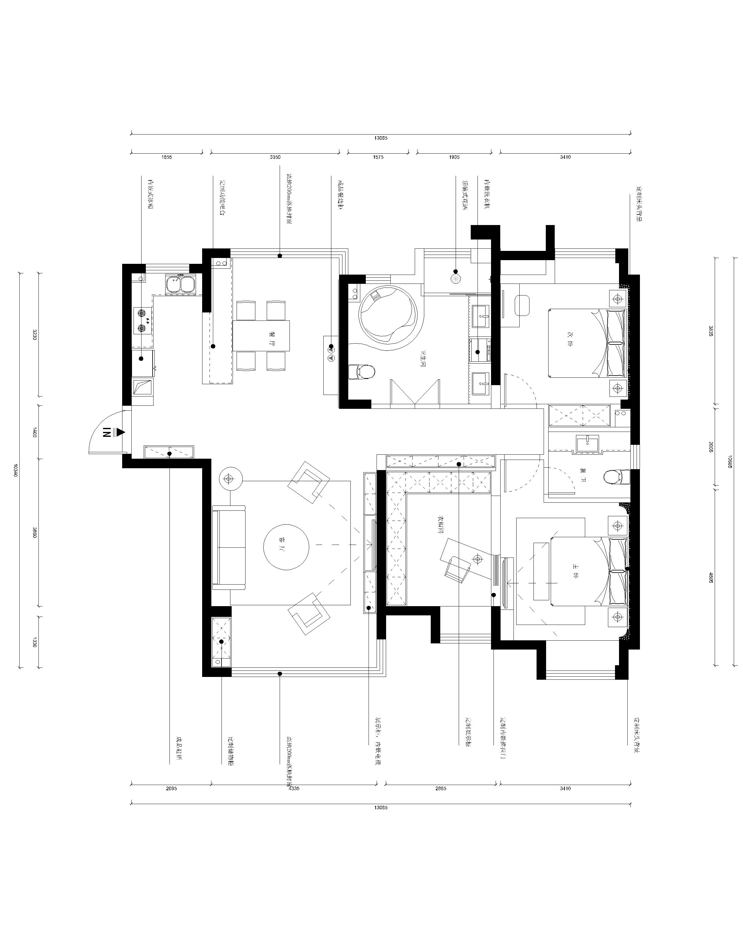
        户型解析:


    平面布局图.jpg

        中建御景星城这套151㎡的二居室住宅原本的户型结构就足够方正,因此设计师无需改拆原有的前提,而根据女主人的需求,设计师在主卧区域单独划分出一块衣帽间,以满足衣物放置与女主人更换衣服的需求,而为了提升空间的通透感 6686官方版app,厨房区域则打造为半开放设计,减少硬隔断出现,避免空间产生压抑感。


        客厅:




        客厅区域借用侧面房屋的墙面打造背景墙,提升空间利用率,黑白灰的经典配色耐看而又时尚感十足 6686官方版app


        餐厅:

    餐厅.png

        餐厅区域设置在半开放式厨房的外部,同时运用与厨房一致的浅色系色彩进行软装,强调空间整体的和谐感 6686官方版app


    (6686官方版app)
    在施工地
    • 开工
    • 前期
    • 中期
    • 后期
    • 竣工
    "6686官方版app" 预约设计师
    海量行家, 抢订6686注册设计服务
    每日前20名申请用户, 获3D装修设计图
    "6686官方版app" 预约设计师
    姓名*
    楼盘*
    电话*
    *为了您的权益, 您的隐私将严格保密
    推荐相关案例
    6686官方版app - 6686注册获取同款设计方案
    姓名*
    楼盘*
    电话*
    *为了您的权益, 您的隐私将严格保密
    预约成功
    您已报名成功, 稍后会有客服人员联系您。 您的隐私将被严格保密。
    关注二维码了解6686体育装修知识
    联系我们
    装修咨询电话 : 027-82411111
    售后服务电话 : 027-82866788
    公司地址 : 6686平台市江岸区澳门路232号金冠大厦
    "6686官方版app" 6686登录我们
    6686官方版app - 友情链接 :
      66866686官方版app下载官方版-6686官方版app下载2025最新 页面版权所有 jingyu-design.cn

      6686官方版app - 算一算,您家装修需要花多少钱?

      知精准报价 避装修深坑

      "6686官方版app" 01/03

      选择您喜欢的风格

      • 现代轻奢

      • 现代美式

      • 北欧

      • 新中式

      • 欧式

      • 其他

      "6686官方版app" 算一算,您家装修要花多少钱?

      知精准报价 避装修深坑

      686官方版app - 02/03

      选择房屋面积区间

      • 80-100㎡
      • 100-140㎡
      • 140-200㎡
      • 200-300㎡
      • 300㎡以上

      03/03

      您的户型

      • 两居室

      • 三居室

      • 四居室

      • 五居室

      • 六居室

      686官方版app - 算一算,您家装修要花多少钱?

      知精准报价 避装修深坑

      0%

      稍等片刻,您的报价正在生中......

      算一算,您家装修要花多少钱?

      知精准报价 避装修深坑

      您的完整报价已经生成

      报名成功享抢订优惠名额

      每日仅限前10名用户