24小时咨询电话
027-82411111
当前位置 : 首页 > 6686官网网页版 > 张凯
找TA设计
经验丰富
DESIGNER
张凯 设计总监
从业时间 : (6686官方版app) 2000 作品数量 : (6686官方版app)14套
司 : 总部旗舰店
"6686官方版app" 业主评价 :
    • 设计画龙点睛
    • 风格鲜明
    • 配色非常美
    • 细心耐心
    • 工作认真负责
    • 有创意
    法式,中古风,意式风,侘寂风,宋氏美学
    • 个人简介
    • 设计理念
    • 经典楼盘

    • 中国装饰协会高级会员

      中国建筑装饰协会高级室内设计

      6686平台室内装饰协会优秀设计师

      APDF-亚太设计师联盟会员

      2003年北京室内设计风采大赛一等奖

      2005年6686平台长江杯设计大赛二等奖

      2009年红鼎奖优秀设计作品

      2012年中国装饰协会授予全国资深设计师

      2015年中国室内设计年度评选设计优秀奖

      2019年APDF-亚太设计师精英赛优秀作品

      2023年6686平台市空间环境艺术设计优秀作品


      擅长风格:


      新中式 | 意式极简 | 意式轻奢 | 北欧 | 简欧 | 法式轻奢 | 法式中古 | 美式等


    • 用共情力打造差异化竞争力,专注情感化 6686官方版app,个性化设计.

    • F天下 6686官方版app. 西北湖壹号. 同济专家社区. 珑璟轩. 保利中央公馆. 复地东湖国际. 华润置地橡树湾. 九龙仓月玺. 联投花山郡别墅. 金地圣爱米伦. 世茂锦绣长江. 华润置地中央公园. 城投瀚城. 东湖壹号. 华侨城-纯水岸东湖. 龙阳一号. 保利城.

    相关案例
    户型解析
    在施工地
    其他案例推荐
    (6686官方版app)
    相关案例
    户型解析 (6686官方版app)
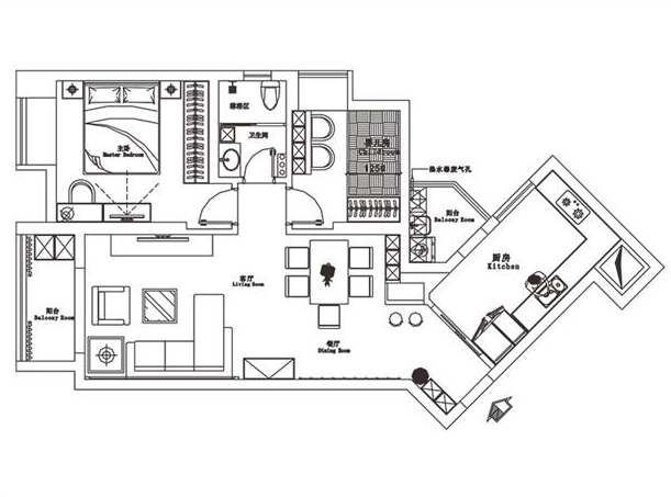
    华发外滩首府190㎡三居室现代风住宅户型解析
    大平层
    190m² (6686官方版app)
    现代简约

    轻法式的家 6686官方版app,宛如一幅流动的画卷,随时间缓缓舒展,又似一曲未竟的乐章,始终萦绕着温柔的旋律,轻轻吟唱…….


    本期的家居设计,紧密贴合屋主的需求与喜好,以淡雅的法式风为设计基石,进行了细致入微的润色与打造 6686官方版app,这里远离喧嚣,摒弃纷扰,只留下一抹淡雅的法式风情,以及家中那份独一无二的温馨与舒适。


    户型解析


    华发外滩首府190㎡轻法式


    1、餐厨空间小,收纳稍显不足


    2、主卫不能兼顾浴缸与独立淋浴间


    3、女儿房规划书房后,收纳功能不足


    优化改造


    华发外滩首府190㎡轻法式


    1 6686官方版app,厨房改为开放式,与餐厅相连通,增设餐边高柜与餐岛一体设计,以补充厨房功能。


    2,主卫适度外扩 6686官方版app,融入浴缸与独立淋浴间,主卧增设整墙衣柜在床尾,优化收纳空间。


    3,在女儿房规划独立书房 6686官方版app,房门向外扩展,利用过道增设L型衣帽间,实现空间高效利用。



    华发外滩首府190㎡轻法式



    华发外滩首府190㎡轻法式


    华发外滩首府190㎡轻法式


    淡雅的奶油色在空间中悠然弥漫,轻柔地调和客厅的氛围,使之更显柔和与恬静,墙面则巧妙地运用拼色设计,结合经典的法式雕花与流畅线条 6686官方版app,勾勒出丰富而独具匠心的纹理与层次,为整个空间增添了一抹优雅与精致的气息。


    华发外滩首府190㎡轻法式


    华发外滩首府190㎡轻法式


    家居生活的柔软温和之处,藏匿于生活的点滴细节之中 6686官方版app,沙发如同云朵般柔软,轻柔地拥抱着每一个静坐其上的人,给予他们无尽的舒适与宁静。


    华发外滩首府190㎡轻法式


    华发外滩首府190㎡轻法式


    阳台被改造为茶室,随手取下一本书 6686官方版app,静静阅读,间或品上几口香茗,一幅如丝绸般流畅舒适的浪漫画卷便缓缓展开。



    华发外滩首府190㎡轻法式


    华发外滩首府190㎡轻法式


    华发外滩首府190㎡轻法式


    重新排布家居空间的功能形式,矫正其表现形态以完善公共区域的融洽相处。通过客餐厅一体化结合餐岛一体的设计,令家人间的互动更为亲密直接。同时,精细调配空间需求,确保功能与居住舒适感达到完美平衡,营造张弛有度的家居氛围。


    华发外滩首府190㎡轻法式


    华发外滩首府190㎡轻法式


    岛台旁,一列高挑的法式橱柜展现着非凡的气度,定制设计将恒温酒柜、管线机完美嵌入,同时保留了充裕的收纳空间,让厨房用具井然有序。背景墙上,湖蓝色瓷砖如同法式庄园中的静谧湖泊,将用餐氛围渲染得更为宁静与优雅。


    华发外滩首府190㎡轻法式


    以美感与功能为首要考量,同时兼顾空间的开阔感和强大的储物需求,厨房采用了开放式设计,与餐厅相连通,内部布局呈U型,相邻空间的功能互补足以满足生活中的各种需求。


    华发外滩首府190㎡轻法式



    华发外滩首府190㎡轻法式


    个性化气球灯、法式雕花墙板、鱼骨拼木地板与浅咖乳胶漆墙面的完美结合,将法式的优雅气质贯穿整个卧室空间,赋予空间强烈的时尚魅力,烘托出如诗的惬意。


    华发外滩首府190㎡轻法式


    套房自带干湿分离的卫生间设计,显著提升了整体空间的使用体验。优雅的洗手台、舒适的浴缸、精致的玻璃淋浴房和便捷的智能马桶,每一处细节都经过精心雕琢,为居者带来更为舒适的居住体验。


    华发外滩首府190㎡轻法式


    木质地板散发着温暖的气息,拼色雕花墙板则勾勒出一份慵懒浪漫的情怀。女儿房的设计温柔而不失俏皮,将储物柜设计成拱门造型,既满足了储物需求,又激发了孩子的探索欲。


    华发外滩首府190㎡轻法式


    重新梳理平面布局并强化功能设计,以储物柜、学习桌将书房与休憩区隔断,空间的密切联系与区域下的独立感都得以满足。书房内既有电脑桌面空间,又摆放有钢琴,同时运用弧形元素来柔化空间结构,将居者的空间诉求与当下氛围妥善安排。


    华发外滩首府190㎡轻法式


    床尾融入独立卫浴空间,通过巧妙的层次感设计,将各大功能区划分得井井有条,完美塑造出独具魅力的生活质感,令人陶醉。


    世纪江尚120㎡四居室简约风温馨小家户型解析
    四居室
    120m²
    现代简约

        案例简介:


        本案例的业主为年轻的夫妇且有一个两岁的婴儿,根据房屋的结构特点与业主的实际需求,空间的实际设计重点放在了如何化解空间犄角及如何满足一家三口居住使用上。整个房屋选用了耐看的现代简约风,同时借助各类现代化的时尚元素装饰空间,以起到较好的点缀效果。色彩的则使用了业主偏爱的暖黄色,通过暖黄色的搭配使用来突出空间的温馨时尚气息。


        户型分析:


    1.jpg


        世纪江尚的这套150㎡的四居室房屋,空间户型结构相对比较复杂,如何将处于非正位置上的空间区域进行合理高效的利用成为了该户型房屋的设计难度。设计师根据业主的实际需求将两个卧室设计于对门处,以满足业主照看孩子的需求。而房屋相对比较犄角的区域则设置为厨房,如此即可将空间合理利用,又能够避免厨房区域的油烟进入生活区域空间,


        客厅:


    2.jpg


        客厅区域使用了相对比较清新柔和的暖黄色作为主基调色,以营造家的温馨感。带有珠光质感的大理石材质背景墙搭配上生命力旺盛的绿植,一种典雅而又清新自然的活力美油然而生。深棕色地毯搭配上白色布艺沙发,则强调了一种碰撞时尚气息。


        餐厅:


    3.jpg


        餐厅区域设置在客厅区域的同一直线上,且两个空间之间没有使用硬隔断,有效保障了整个空间的通透感。而餐厅侧面的玻璃墙面设置,则从视觉上起到放大空间的作用,让整个空间更显现代时尚气息的同时更具大气美。


    (6686官方版app)
    在施工地 (6686官方版app)
    • 开工
    • 前期
    • 中期
    • 后期
    • 竣工
    预约设计师
    海量行家, 抢订6686注册设计服务
    每日前20名申请用户, 获3D装修设计图
    预约设计师
    姓名*
    楼盘*
    电话*
    *为了您的权益, 您的隐私将严格保密
    686官方版app - 推荐相关案例
    "6686官方版app" 6686注册获取同款设计方案
    姓名*
    楼盘*
    电话*
    *为了您的权益, 您的隐私将严格保密
    6686官方版app - 预约成功
    您已报名成功, 稍后会有客服人员联系您。 您的隐私将被严格保密。
    关注二维码了解6686体育装修知识
    6686登录我们 (6686官方版app)
    澳华历程
    官方微博
    "6686官方版app" 联系我们
    装修咨询电话 : 027-82411111
    售后服务电话 : 027-82866788 (6686官方版app)
    "6686官方版app" 公司地址 : 6686平台市江岸区澳门路232号金冠大厦
    "6686官方版app" 6686登录我们
    6686官方版app - 友情链接 :
      66866686官方版app下载官方版-6686官方版app下载2025最新 页面版权所有 jingyu-design.cn

      算一算,您家装修需要花多少钱?

      知精准报价 避装修深坑 (6686官方版app)

      01/03

      选择您喜欢的风格

      • 现代轻奢

      • 现代美式

      • 北欧

      • 新中式

      • 欧式

      • 其他

      算一算,您家装修要花多少钱?

      知精准报价 避装修深坑

      "6686官方版app" 02/03

      选择房屋面积区间

      • 80-100㎡
      • 100-140㎡
      • 140-200㎡
      • 200-300㎡
      • 300㎡以上

      03/03

      您的户型

      • 两居室

      • 三居室

      • 四居室

      • 五居室

      • 六居室

      算一算,您家装修要花多少钱?

      知精准报价 避装修深坑

      0%

      稍等片刻,您的报价正在生中......

      算一算,您家装修要花多少钱?

      知精准报价 避装修深坑

      您的完整报价已经生成 (6686官方版app)

      报名成功享抢订优惠名额

      每日仅限前10名用户